В продаже 2х этажный дом с гаражом 170 кв.м. на участке 10 сот. прямоугольной формы . д. Березовка Богородский район ул. Добрая.
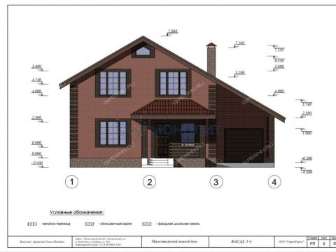
Железобетонные перекрытия.
- Газ в границах
- Септик переливной
- Скважина 55 м. установлены.
Облицовочный кирпич на весь дом на территории дома остается новому собственнику
Без обременений .Быстрый выход на сделку
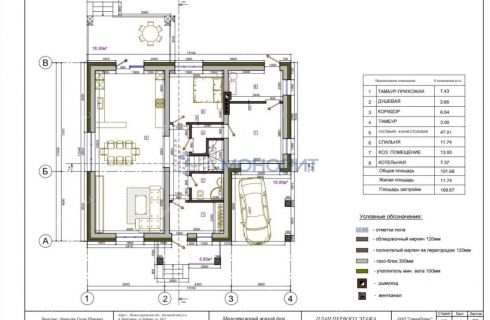
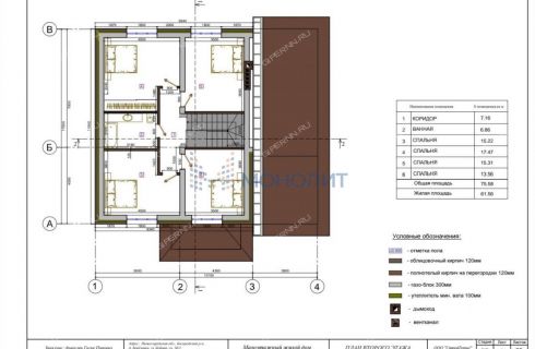
Просторный двухэтажный жилой дом площадью 170 квадратных метров с отдельным гаражом, расположенный на ухоженном земельном участке размером 10 соток правильной прямоугольной формы в живописном месте деревни Березовка, Богородского района, улица Добрая.
- подведён газопровод непосредственно к границам участка,
- обустроены система водоснабжения посредством глубокой скважины глубиной 55 метров,
- установлена автономная канализационная система в виде переливного септика.
Участок ровный, удобный для организации сада или огорода, территория свободна от любых юридических ограничений и готова к быстрой передаче новому владельцу.
Идеальное предложение для тех, кто ценит комфорт загородной жизни, уют собственного жилья и возможность быстрого оформления сделки.
Агентство недвижимости «Монолит» профессионально помогает с оформлением ипотеки: сбор и подача всех необходимых документов, оперативное рассмотрение заявки, помощь в получении сниженной процентной ставки, осуществляем юридическое сопровождение сделки. Оказываем весь комплекс услуг по покупке ИЖС в режиме одного окна (страховка, оценка, выездная регистрация, военная ипотека, маткапитал).
Номер объекта: #41/1633140/11523
Продажа дома (деревня Берёзовка, Добрая улица, 36/1)Богородский муниципальный округ, Нижегородская область
4 700 000 руб.
№ | 2957077 |
---|---|
Район | Богородский муниципальный |
Адрес | деревня Берёзовка, Добрая улица, 36/1 |
Объект | дом |
Площадь | 170 / |
Площадь участка | 10 соток |
Количество этажей | 2 |
Материал стен | блоки |
Контакты:
Подробное описание:
Добрая улица на карте
Другие калькуляторы
Оценка своих возможностей
Оцените, квартиру какой стоимости вы можете купить
Калькулятор рефинансирования
Оцените, выгодно ли рефинансировать ипотеку
Калькулятор досрочного погашения
Посчитайте экономию при досрочном погашении кредита
Продажа дома (деревня Берёзовка, Добрая улица, 36/1)


















