В таунхаусе выполнена предчистовая отделка "White box":
- отштукатуренные стены
- натяжные потолки
- выполнена стяжка на полу
- установлены окна, подоконники и откосы
- установлены радиаторы и газовый котёл
- плитка на полу в с\у
- установлена сантехника
- бетонные перекрытия между этажами
- лестница на 2-ой этаж
- выполнена электропроводка
- установлены входная и межкомнатные двери
В таунхаусах центральные коммуникации.
Свой участок от 2-х соток.
Собственная парковка и крытая терраса.
Низкие коммунальные платежи по сельским тарифам.
Благоустроенная территория: детские и спортивные площадки, сквер, асфальтированное покрытие и освещение.
В шаговой доступности магазины, аптеки, банкоматы, детские сады, школа, стадион.
На территории посёлка находится школа и детский сад!
Продажа дома (Коттеджный посёлок Фрегат, Донская)Кстовский район, Нижегородская область
10 950 000 руб.
| № | 2898377 |
|---|---|
| Район | Кстовский |
| Адрес | Коттеджный посёлок Фрегат, Донская |
| Объект | дом |
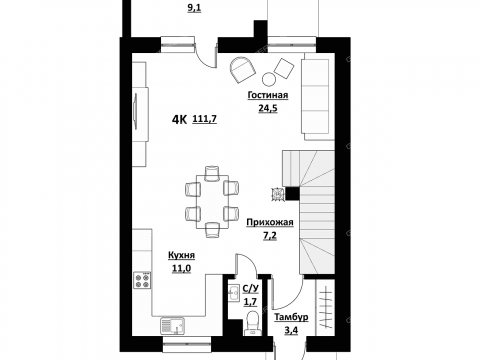
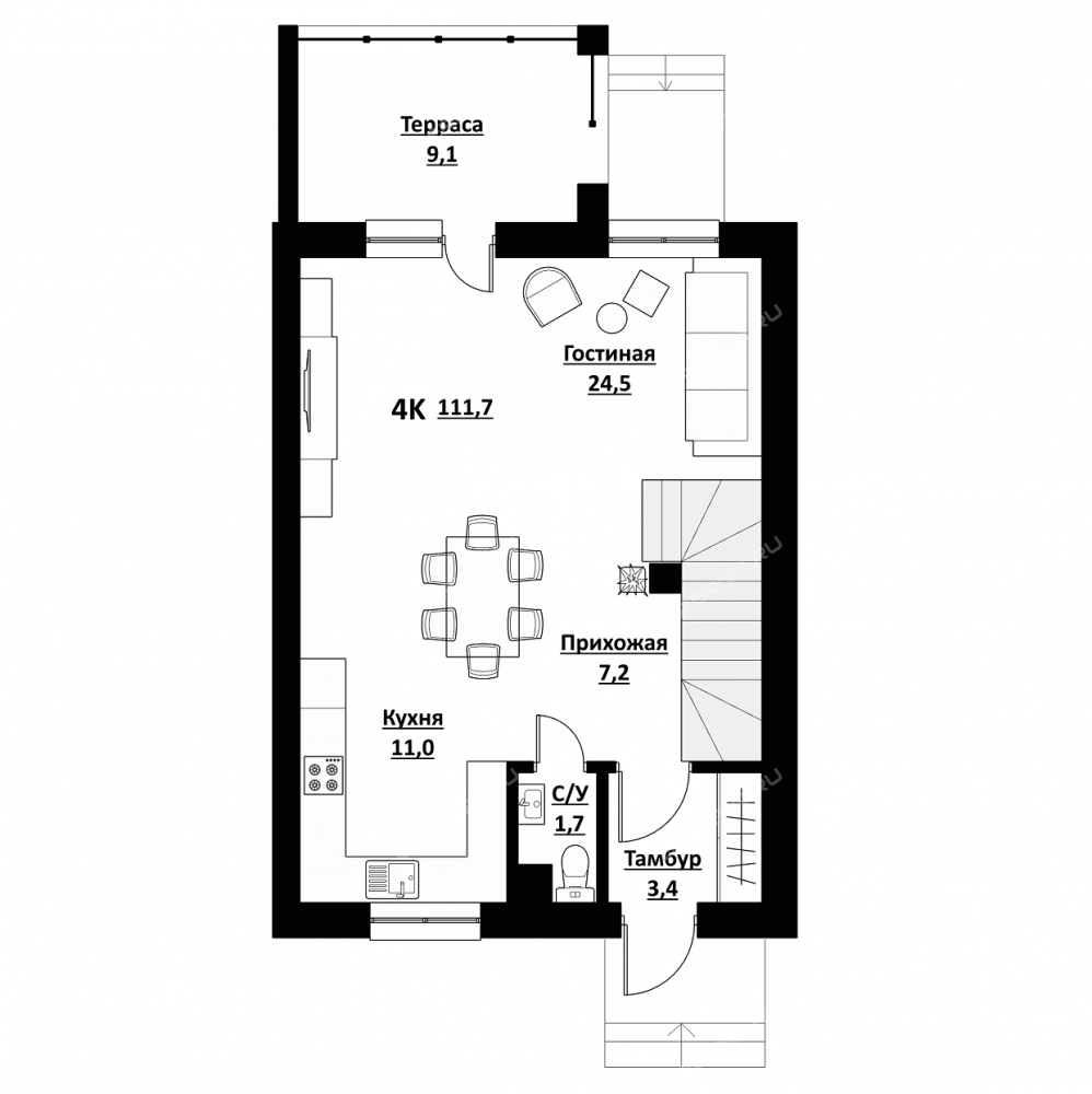
| Площадь | 111,7 / 75 / 11 |
| Площадь участка | 2 сотки |
| Количество этажей | 2 |
| Материал стен | блоки |
Контакты:
Сергей
8-831-262-
Подробное описание:
Стадия строительства
сдан в эксплуатацию
Отопление
есть
Электричество
есть
Водопровод
есть
Газ
есть
Канализация
есть
Туалет
в доме
Ипотека
да
Коттеджный посёлок Фрегат на карте
Другие калькуляторы
Оценка своих возможностей
Оцените, квартиру какой стоимости вы можете купить
Калькулятор рефинансирования
Оцените, выгодно ли рефинансировать ипотеку
Калькулятор досрочного погашения
Посчитайте экономию при досрочном погашении кредита
Продажа дома (Коттеджный посёлок Фрегат, Донская)




















