Новый жилой комплекс бизнес-класса Бетанкур расположен в границах улиц С.Акимова, Бетанкура и Мещерского бульвара. Комплекс состоит из двух многоквартирных домов переменной этажности. Жилой комплекс оснащен подземным паркингом, закрытой благоустроенной территорией и собственный тренажерным залом. Он станет видовой доминантой и настоящим украшением города.
Жилой комплекс Бетанкур находится в районе с развитой инфраструктурой. В непосредственной близости от него расположены детские сады, школы, вузы, медицинские учреждения, аптеки, продуктовые магазины, кафе, рестораны, салоны красоты, фитнес-центры и торговые центры.
Эргономика квартир в комплексе продумана до мелочей, а концептуальное благоустройство территории создает все условия для комфортной жизни. Расположение комплекса делает его центром притяжения для жителей города. Бетанкур - это проект, сочетающий в себе лучшие девелоперские практики и исторические традиции
градостроительства.
Если остались вопросы звоните буду рада помочь!
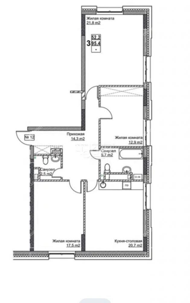
Продажа 3-комнатной квартиры в новостройке на ул. БетанкураКанавинский район, Нижний Новгород
21 590 000 руб.
№ | 2957885 |
---|---|
Район | Канавинский |
Адрес | ул. Бетанкура |
Комнат | 3 комнаты |
Площадь | 95,4 / 52,2 / 20,7 |
Этаж / этажность | 3 / 25 |
Срок сдачи | 4 кв. 2026 г. |
Материал стен | блок+утеплитель |
Контакты:
Подробное описание:
улица Бетанкура на карте
Другие калькуляторы
Оценка своих возможностей
Оцените, квартиру какой стоимости вы можете купить
Калькулятор рефинансирования
Оцените, выгодно ли рефинансировать ипотеку
Калькулятор досрочного погашения
Посчитайте экономию при досрочном погашении кредита






