Двухкомнатная квартира в новом современном доме с новым ремонтом. Полностью укомплектована мебелью и техникой. Огромная кухня 15 м, которая по сути является кухней-гостиной. Есть отапливаемая лоджия, которую можно использовать как "еще одно отдельное помещение". Во дворе суперская детская площадка. На ней также есть спортивные тренажеры. Очень близко от центра (10 мин до площади Минина на автомобиле, до пл. Сенной 3 остановки). Район с развитой инфраструктурой- магазины, ТЦ (рядом Ганза и Фантастика).
Аренда 2-комнатной квартиры на ул. Родионова, д. 31Нижегородский район, Нижний Новгород
52 000 руб./мес.
| № | 2963140 |
|---|---|
| Район | Нижегородский |
| Адрес | ул. Родионова, д. 31 |
| Комнат | 2 комнаты |
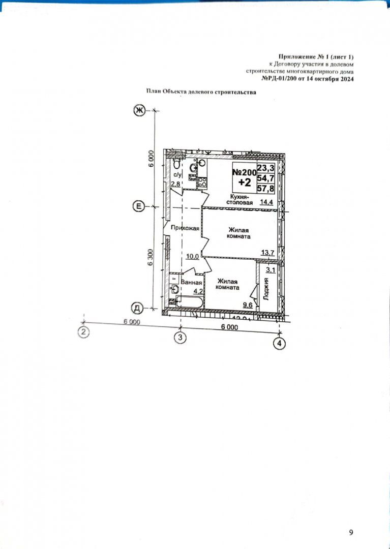
| Площадь | 57,8 / 23,3 / 14,4 |
| Этаж / этажность | 3 / 20 |
Контакты:
Светлана
+7-920-077-
Подробное описание:
Тип жилья
другой
Год постройки дома
2025
Тип комнат
раздельные
Ремонт
евроремонт
Санузел
раздельный
Лоджия
есть
Лифт
пассажирский, грузовой
Интернет
есть
Мебель в комнатах
есть
Мебель на кухне
есть
Кухонная плита
электрическая
Горячая вода
центральное водоснабжение
Парковка
во дворе
Холодильник
есть
Стиральная машина
есть
Можно с детьми
да
Дом 31 на ул. Родионова
| Район | Нижегородский район |
|---|---|
| Адрес | ул. Родионова, д. 31 |
| Год постройки | 2025 |
| Этажность | 24 |
| Материал стен | блок |
| Высота потолков | 2,7 м (средняя) |
| Средняя цена за м2 | 223 991 руб. |
| Подъездов | 2 |
| Квартир | 336 |
| Лифт | 2 пассажирских, 3 грузовых |
| Парковка | наземная, подземная |
| Школа по прописке | Школа №30 им. Л.Л. Антоновой |
Магазины
Офисмаг442м
Fix Price442м
М.Косметик442м
КуулКлевер МясновЪ Отдохни442м
Пятёрочка442м
Почта
Почта России688м
Почта России688м
Школы
Школа № 35927м
Детские сады
Детский сад № 432822м
Детский сад № 477828м
Детский сад № 445831м
























