Продается 2х‑этажный коттедж 140 м² на этапе отделки фасада на 5 сотках земли в деревне Афонино с потрясающим видом на Артемовские луга.
О доме
- Площадь дома 140 м²
- Фундамент – монолитная плита.
- Стены - керамический блок 250 мм, утеплитель 50 мм, декоративная штукатурка.
- Межэтажные перекрытия и лестница - железобетонные.
- Кровля – ПВХ мембрана,
- Окна ПВХ с двойным стеклопакетом,
- Входная дверь с терморазрывом,
Очень удобная современная планировка включает:
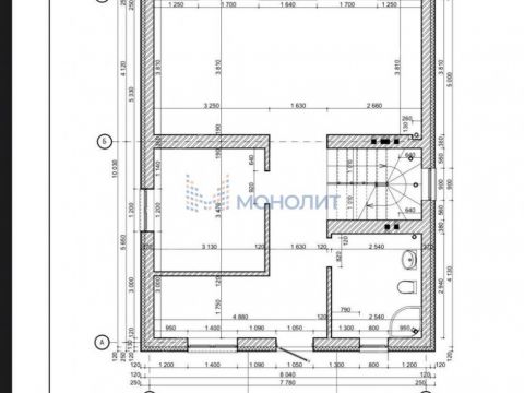
- Первый этаж: просторная кухня-гостиная 29 м² с выходом на террасу, кабинет(спальня) - 11 м², большой санузел – 7,5 м², гардеробная – 5,9 м², холл – 9,3 м².
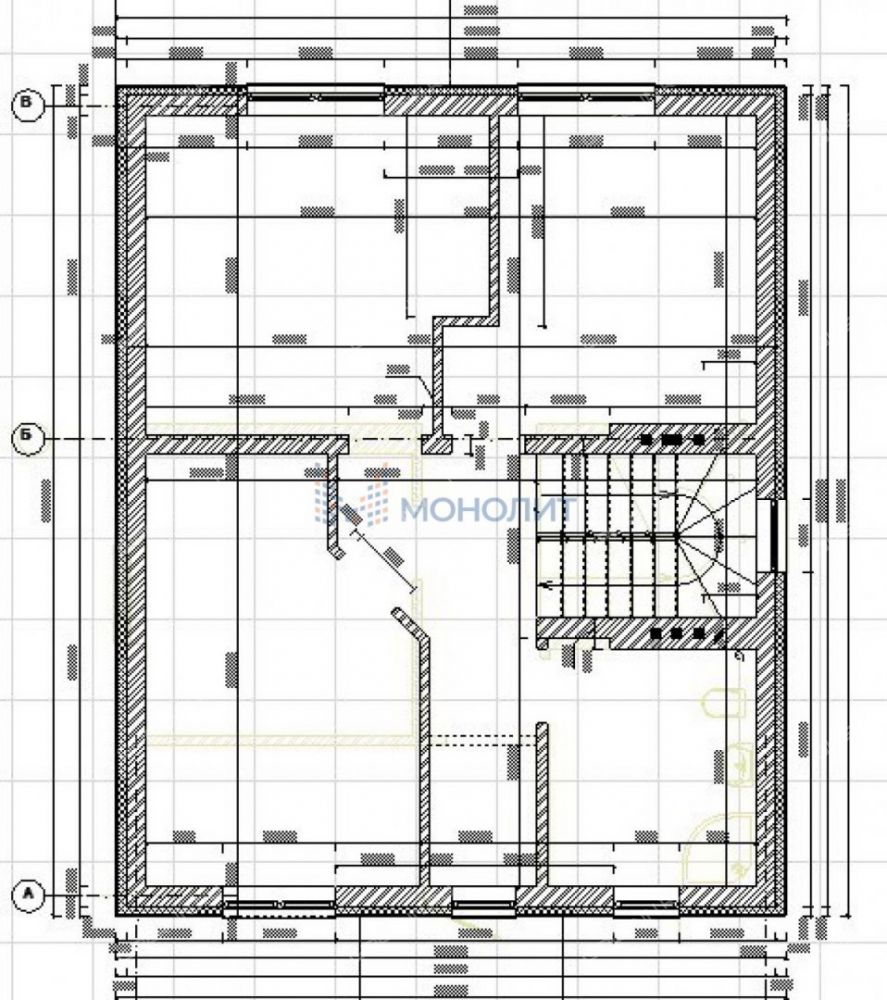
- Второй этаж: 4 спальни, холл, санузел.
Коммуникации в доме
- Газ.
- Электричество 15 кВт.
- Водопровод – центральный,
- Канализация - септик.
Дом продается без внутренней отделки.
Предчистовая внутренняя отделка обговаривается отдельно.
Земельный участок ровный, состоит из территории вокруг дома и въездной группы. На краю участка, который заканчивается откосом, можно обустроить беседку с зоной барбекю, чтобы наслаждаться видом и во время приготовления пищи, и во время застолья.
Предчистовая внутренняя отделка обговаривается отдельно.
Дом пока не поставлен на кадастровый учет, поэтому есть возможность оформить его от ИП под семейную или IT ипотеку.
Инфраструктура
Деревня «Афонино» граничит с микрорайоном Верхние Печоры и относится к административному округу Кстово. Всего 20 минут на транспорте от исторического центра, и вы в собственном доме на волжском откосе с потрясающим видом с высоты птичьего полета.
В то же время вы можете без труда добраться в любую часть города, минуя большинство пробок. Буквально пятнадцать минут понадобится, чтобы оказаться в ТЦ «Мега» или ТЦ «Индиго Life» и насладиться шопингом. Вся необходимая инфраструктура находится в шаговой доступности или в 5-и минутах езды.
Мы оказываем помощь в оформлении ипотеки от всех ведущих банков по выгодным ставкам.
Полный комплекс услуг при покупке ИЖС.
В Подарок - Сертификат с 3-х летней гарантией на юридическое сопровождение.
Агентство недвижимости «Монолит» профессионально помогает с оформлением ипотеки: сбор и подача всех необходимых документов, оперативное рассмотрение заявки, помощь в получении сниженной процентной ставки, осуществляем юридическое сопровождение сделки. Оказываем весь комплекс услуг по покупке ИЖС в режиме одного окна (страховка, оценка, выездная регистрация, военная ипотека, маткапитал).
Номер объекта: #41/1640361/11523
Продажа дома (деревня Афонино, Магистральная улица, 126)Кстовский район, Нижегородская область
16 800 000 руб.
| № | 2960487 |
|---|---|
| Район | Кстовский |
| Адрес | деревня Афонино, Магистральная улица, 126 |
| Объект | дом |
| Площадь | 140 / |
| Площадь участка | 5 соток |
| Количество этажей | 2 |
| Материал стен | кирпич |
Контакты:
Стрелков Андрей
+7-920-034-
Подробное описание:
Дом д. 126 на ул. Магистральная
Другие калькуляторы
Оценка своих возможностей
Оцените, квартиру какой стоимости вы можете купить
Калькулятор рефинансирования
Оцените, выгодно ли рефинансировать ипотеку
Калькулятор досрочного погашения
Посчитайте экономию при досрочном погашении кредита
Продажа дома (деревня Афонино, Магистральная улица, 126)











































