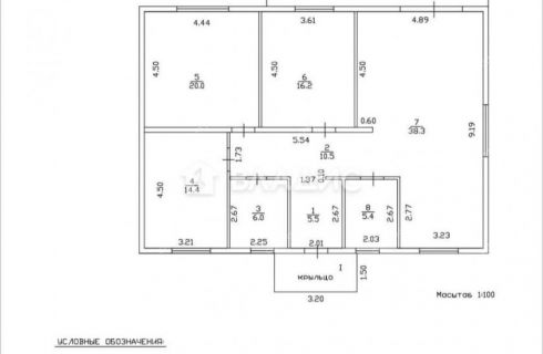
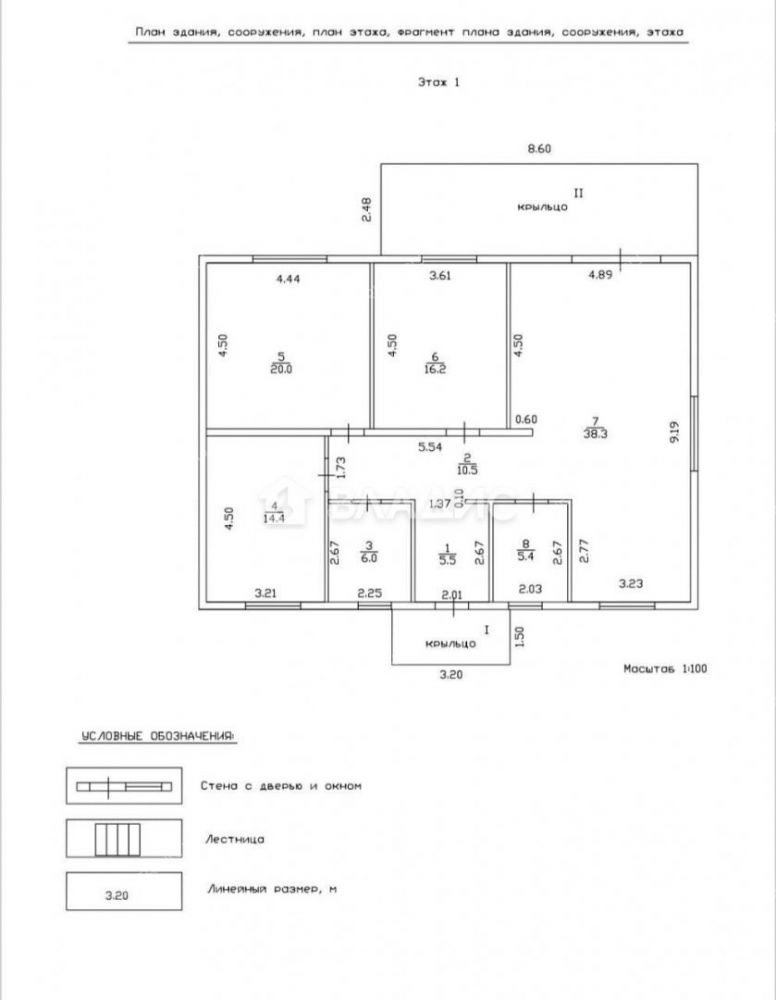
Код объекта: 1804818.Продаётся одноэтажный дом в Борском районе 🏡 Материалы строительства:- Газосиликатный блок с утеплением- Декоративная штукатурка и плитка под кирпич Планировка:- Кухня-гостиная- 3 спальни- Санузел и котельная с доп. санузлом- Холл, коридор, выход на веранду Инженерия:- Свайно-ленточный фундамент с монолитной плитой- Электричество, газ, тёплый пол, радиаторы - все подключено Отделка:- Полусухая стяжка тёплых полов- Оштукатуренные стены-Разводка электричества - Готов к финишному дизайну (осталось положить покрытие полов, поклеить обои, натянуть потолки) Расположение:- 10 минут от города НН и Бор- Озера, природа, рыбалка в пешей доступности - Автобусы, магазины, инфраструктура рядом Условия покупки:- Любые формы расчета. Под льготные ипотеки не подходит, только обычная ипотека. Запись на просмотр доступна сейчас, ждём вашего звонка❤️
Продажа дома (деревня Борисовка, улица Луговая, 12)городской округ Бор, Нижегородская область
9 900 000 руб.
| № | 2957477 |
|---|---|
| Район | городской округ Бор |
| Адрес | деревня Борисовка, улица Луговая, 12 |
| Объект | дом |
| Площадь | 120 / 80 / 35 |
| Площадь участка | 7 соток |
| Количество этажей | 1 |
| Материал стен | блоки |
Контакты:
Цветкова Елена Александровна
+7-906-615-
Подробное описание:
Телефон
нет
Интернет
нет
Отопление
есть
Электричество
есть
Водопровод
есть
Газ
есть
Канализация
есть
Наличие бани/сауны
нет
Ипотека
да
улица Луговая на карте
Другие калькуляторы
Оценка своих возможностей
Оцените, квартиру какой стоимости вы можете купить
Калькулятор рефинансирования
Оцените, выгодно ли рефинансировать ипотеку
Калькулятор досрочного погашения
Посчитайте экономию при досрочном погашении кредита
Продажа дома (деревня Борисовка, улица Луговая, 12)







































