Номер объекта: 1836596. Представляем вашему вниманию уникальный загородный дом площадью 132,9 м² на 6,9 сотках земли в ТСН «Чистые Ключи», что обеспечивает легкий доступ к городской инфраструктуре, сохраняя при этом уединение и спокойствие загородной жизни.
О ДОМЕ
Этот барнхаус, воплощение современных технологий энергосбережения, экологичности и продвинутого дизайна. Потери тепла в таком доме минимальны, а передовые методы строительства обеспечивают надежность и комфорт:
- Фундамент из железобетонных свай с ростверком из деревянного бруса,
- Стены и пол и потолок многослойные, состоящую из бруса, мембран ветро и влаго защиты с утеплителем 200 мм. Стены снаружи с торцов обшиты металлическим сайдингом и профлистом с боков. Внутри стены - доска с имитацией бруса.
- Кровля двускатная с профлистом,
- Окна ПВХ из качественного профиля с двухкамерными стеклопакетами,
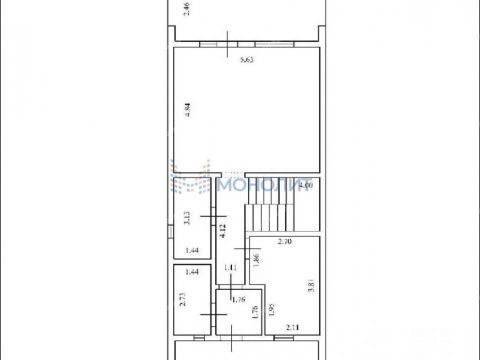
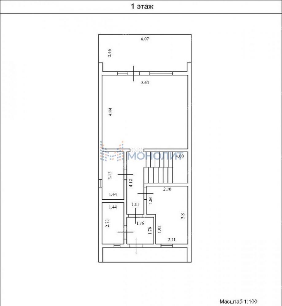
На первом этаже имеются: кухня-гостиная 27,2 м² с выходом на террасу 15 м², кабинет 9,3 м², холл 4,57 м², прихожая 3.1 м², санузел 4,5 м² и техническая комната 3,93 м².
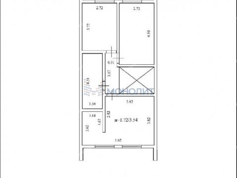
На втором этаже: мастер спальня 18 м² с гардеробной, две спальни 13,6 м² и10,12 м², просторный санузел 6,8 м² и холл 2.9 м².
В доме выполнена полная чистовая отделка, которая включает:
- разводку теплого пола на 2-х этажах,
- покрытие пола – ламинат с ПВХ плитнусом под цвет ламината,
- разводку электричества с розетками и выключателями,
- разводку канализации и водоснабжения,
- натяжные потолки с потолочными светильниками,
- межкомнатные двери и откосы, декорированные деревом,
- лестницу на второй этаж из хвойных пород,
- входную дверь с терморазрывом.
В доме имеются все необходимые коммуникации:
- Система электроснабжения с укомплектованными электрощитом 15 кВт,
- Водоснабжение – скважина,
- Канализация – септик,
- Отопления водяное – электрокотел/газовый котел,
- Газ по границе участка (программа догазификации)
- Высокоскоростной интернет с оптоволокном.
Выгодное угловое расположение земельного участка с видом на лес, позволяет на законных основаниях увеличить площадь до необходимых размеров, а также сделать индивидуальный заезд.
Инфраструктура
ТСН «Чистые Ключи» - это коттеджный поселок закрытого типа с КПП, охраной и видеонаблюдением, находящийся в 20 км от Нижнего Новгорода по Арзамасской трассе с асфальтированными дорогами, детской и спортивной площадками, зонами отдыха, магазинами. Школа и детский сад в 5 км. До школы ходит школьный автобус.
Дом продается юридического лица и подходит под все виды льготных ипотек: семейную и IT.
Свяжитесь с нами для организации просмотра и узнайте, как этот коттедж может стать вашим новым домом.
Агентство недвижимости «Монолит» профессионально помогает с оформлением ипотеки: сбор и подача всех необходимых документов, оперативное рассмотрение заявки, помощь в получении сниженной процентной ставки, осуществляем юридическое сопровождение сделки. Оказываем весь комплекс услуг по покупке ИЖС в режиме одного окна (страховка, оценка, выездная регистрация, военная ипотека, маткапитал).
Продажа дома (деревня Бугры, -)Дальнеконстантиновский район, Нижегородская область
7 300 000 руб.
| № | 2972553 |
|---|---|
| Район | Дальнеконстантиновский |
| Адрес | деревня Бугры, - |
| Объект | дом |
| Площадь | 132,9 / |
| Площадь участка | 6,9 сотки |
| Количество этажей | 2 |
| Материал стен | дерево |
Контакты:
Стрелков Андрей
+7-920-034-
Подробное описание:
деревня Бугры на карте
Другие калькуляторы
Оценка своих возможностей
Оцените, квартиру какой стоимости вы можете купить
Калькулятор рефинансирования
Оцените, выгодно ли рефинансировать ипотеку
Калькулятор досрочного погашения
Посчитайте экономию при досрочном погашении кредита
Продажа дома (деревня Бугры, -)

































