Продам 2х.эт дом хорошего качества.
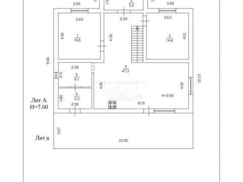
Дом 122м2 изготовлен из арболитовых блоков, стены снаружи утеплены на 100мм и заштукатурены.
Пол внутри дома бетонный.
Пластиковые окна дорогие и качественные.
В доме 3 комнаты, кухня и 2 с/у, прихожая, холл.
Фундамент ленточный.
Второй этаж утеплен, стены обшиты ГВЛ.
Крыша утеплена на 200 мм, покрыта многослойной мягкой черепицей.
Водосточная система Docke.
Отмостки по периметру дома шириной 1метр.
Дренажная система состоит из двух колодцев.
Веранда 3х12 на ленточном фундаменте сбоку у дома, на неё выход из кухни.
Септик двойной переливной.
Электричество 380Вт, счетчик на столбе у дома.
Так же сделана разводка электричества, в соответствии с дизайн-проектом.
Своя скажина с чистейшей питьевой 32 - 35м.
Дом газифицирован.
Отопление от газового котла.
Дом 2023 года постройки!!!
Нужна внутренняя отделка дома.
Земельный участок 10 соток, ИЖС, межевание сделано.
Подъезд хороший.
Соседи замечательные. Соседняя улица с домами построена для работников Курцевской сыроварни.
Месторасположение дома очень удобное, вся инфраструктура в шаговой доступности, садик, школа, магазины, фельдшерский пункт, пункты выдачи интернет магазинов.......
Аргументированный торг.
До Городца 10 минут на машине.
Автобус из Городца ходит несколько раз в день.
Долгов и обременений нет, один взрослый собственник.
Помощь в одобрении ипотеки, работаем со всеми видами сертификатов, сотрудничаем со всеми ведущими банками России.
Деятельность агентства Чекни застрахована.
Продажа дома (деревня Ковригино, Смольковский сельсовет, Луговая, 5)Городецкий район, Нижегородская область
6 200 000 руб.
| № | 2933739 |
|---|---|
| Район | Городецкий |
| Адрес | деревня Ковригино, Смольковский сельсовет, Луговая, 5 |
| Объект | дом |
| Площадь | 122 / |
| Площадь участка | 10 соток |
| Материал стен | комб. |
Контакты:
Суханова Светлана Николаевна
+7-987-752-
Подробное описание:
деревня Ковригино на карте
Другие калькуляторы
Оценка своих возможностей
Оцените, квартиру какой стоимости вы можете купить
Калькулятор рефинансирования
Оцените, выгодно ли рефинансировать ипотеку
Калькулятор досрочного погашения
Посчитайте экономию при досрочном погашении кредита

















































