Номер объекта: 1833550. Дом 85 кв.м в деревне Крутaя на улице Приозерной на участке 5 соток.
Одна из лучших транспортных развязок рядом с городом. В 600 метрах пешей доступности живописное озеро с пляжем. Рядом заповедник Зеленый город.
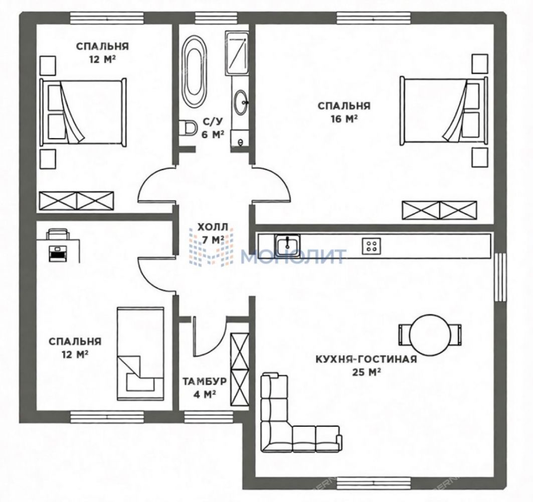
Очень удобная планировка 1-этажного дома с 3-мя спальнями, большой кухней-гостиной, санузлом, прихожей, большим холлом.
Особенность дома высокие потолки - 3 метpа, благодаря чему в доме много воздуха и свободного пространства. На чердаке возможно сделать дополнительный мансардный этаж 30 кв.м.
Из кухни-гостиной - выход на участок, возможно обустроить террасу. Установлены опоры-столбы для навеса и парковки авто.
По периметру дома установлен забор с воротами и калиткой. По фасаду дома установлены фонари освещения с датчиками.
Удобное расположение дома на участке для организации веранды, навеса для авто, зеленой зоны. Большая часть участка на южной стороне, хорошо освещается, высыхает после дождей, способствует росту садовых растений.
В доме свежий ремонт - теплые полы, керамогранит, кварц-винил, ламинат, натяжные потолки, свет, установлен кухонный гарнитур с посудомоечной машиной. Остается только поклеить обои и сделать санузел (минимальные вложения). Дом новый, эксплуатировался как загородный не более 2-х лет. Дом построен в 2023 году, около года делался ремонт.
Конструктив дома: фундaмент плита, стены газосиликатный блок утеплением, монолитный арм.пояс, керамический кирпич, кровля мягкая черепица, бетонная отмостка вокруг дома.
Все коммуникации заведены в дом и подключены: газ с двухконтурным газовым котлом Ferolli, электричество 15кВт 3 фазы, вода – скважина, канализация – септик.
Агентство недвижимости «Монолит» профессионально помогает с оформлением ипотеки: сбор и подача всех необходимых документов, оперативное рассмотрение заявки, помощь в получении сниженной процентной ставки, осуществляем юридическое сопровождение сделки. Оказываем весь комплекс услуг по покупке ИЖС в режиме одного окна (страховка, оценка, выездная регистрация, военная ипотека, маткапитал).
Продажа дома (деревня Крутая, Приозёрная улица, 22Б)Кстовский район, Нижегородская область
11 500 000 руб.
| № | 2972613 |
|---|---|
| Район | Кстовский |
| Адрес | деревня Крутая, Приозёрная улица, 22Б |
| Объект | дом |
| Площадь | 85 / |
| Площадь участка | 5 соток |
| Количество этажей | 1 |
| Материал стен | кирпич |
Контакты:
Карманов Антон
+7-920-034-
Подробное описание:
Приозёрная улица на карте
Другие калькуляторы
Оценка своих возможностей
Оцените, квартиру какой стоимости вы можете купить
Калькулятор рефинансирования
Оцените, выгодно ли рефинансировать ипотеку
Калькулятор досрочного погашения
Посчитайте экономию при досрочном погашении кредита
Продажа дома (деревня Крутая, Приозёрная улица, 22Б)



























