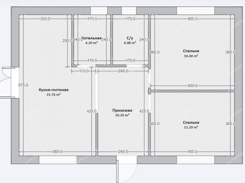
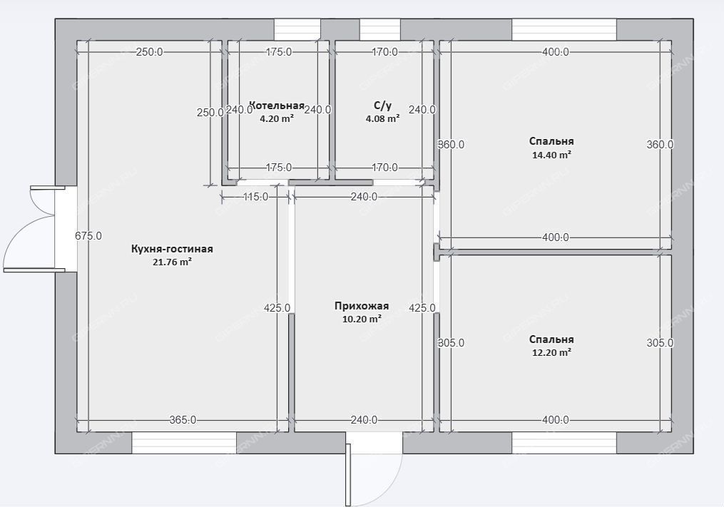
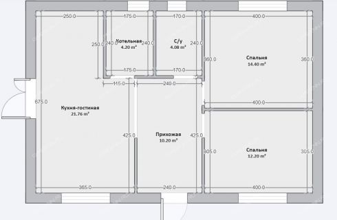
Участок 10 сотoк: 25 минут от Канатной дороги и Нижнего Новгорода
ГАЗ уже запущен в доме!
Асфальтный до Дома
Дом в ПРЕДЧИСТОВОЙ ОТДЕЛКЕ
-----
Электричество – 15 кВТ;
Газоснабжение – запущено / работает;
Водоснабжение – скважина;
Канализация – сэптик;
Отопление – от газового котла
-----
Разводка электрики;
Шпатлеванные стен;
Стяжка под финишн;
Разводка холодного и горячего водоснабжения с отоплением;
-----
Фундамент - монолитная плита с утеплением ЭППС 100мм;
Кровля - Grand Line 0.5 мм, чердачное утепление 200 мм;
Стены - блок Poritep 400 мм;
Окна - Rеhаu 70 мм.
-----
Так же возможно строительство дома на вашем / нашем участке
Продажа дома (деревня Матвеевка, деревня Матвеевка)городской округ Бор, Нижегородская область
5 850 000 руб.
| № | 2967443 |
|---|---|
| Район | городской округ Бор |
| Адрес | деревня Матвеевка, деревня Матвеевка |
| Объект | дом |
| Площадь | 70 / 48 / 22 |
| Площадь участка | 10 соток |
| Количество этажей | 1 |
| Материал стен | блоки |
Контакты:
Руслан
+7-930-705-
Подробное описание:
Стадия строительства
сдан в эксплуатацию
Торг уместен
да
Ипотека
да
деревня Матвеевка на карте
Другие калькуляторы
Оценка своих возможностей
Оцените, квартиру какой стоимости вы можете купить
Калькулятор рефинансирования
Оцените, выгодно ли рефинансировать ипотеку
Калькулятор досрочного погашения
Посчитайте экономию при досрочном погашении кредита
Продажа дома (деревня Матвеевка, деревня Матвеевка)














