Продается загородный дом с участками общей площадью около 21,5 соток, расположенный вдали от городского шума, рядом с лесом и прудом. Участок готов принять новые идеи владельца: здесь можно воплотить любые мечты о собственном уголке природы и творческом дизайне интерьера.
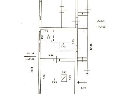
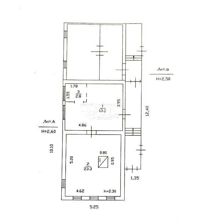
На участке имеется просторная жилая постройка (четыре комнаты), два окна уже остеклены, сделан косметический ремонт в двух комнатах, что значительно упрощает дальнейшее переустройство дома. Для удобства обеспечены общие деревенские коммуникации: скважина и электроснабжение.
Кроме основного участка, предлагается еще один дополнительный надел площадью 14 соток с готовым хозяйственным строением, баней, отдельной скважиной и насосом. Это позволяет расширить владения и свободно реализовать самые смелые строительные проекты.
Дом расположен всего в 15 минутах ходьбы от асфальтированной дороги, идеально подходит для желающих отдохнуть от городской жизни, насладиться свежим воздухом леса и вдохновляющей красотой природы.
Это предложение прекрасно подойдет людям, ценящим творческий подход к оформлению жилья, любовь к природе и стремление жить гармонично с окружающей средой.
Продажа дома (деревня Сорокоумово, 8)Городецкий район, Нижегородская область
950 000 руб.
| № | 2951433 |
|---|---|
| Район | Городецкий |
| Адрес | деревня Сорокоумово, 8 |
| Объект | дом |
| Площадь | 53 / 34 / 19 |
| Площадь участка | 7,5 сотки |
| Материал стен | дерево |
Контакты:
Сомов Михаил Юрьевич
+7-902-304-
Подробное описание:
деревня Сорокоумово на карте
Другие калькуляторы
Оценка своих возможностей
Оцените, квартиру какой стоимости вы можете купить
Калькулятор рефинансирования
Оцените, выгодно ли рефинансировать ипотеку
Калькулятор досрочного погашения
Посчитайте экономию при досрочном погашении кредита


































