Продаю новый дом в дер.Зелецино Кстовского района
Отличное предложение по привлекательной цене. Дом построен в 2024 году, выполнен из самого современного экологического и теплого материала - керамических блоков. Все коммуникации заведены в дом. Газ, электричество, вода - центральные, канализация- септик с переливом, а это значит, что не требует особо обслуживания.
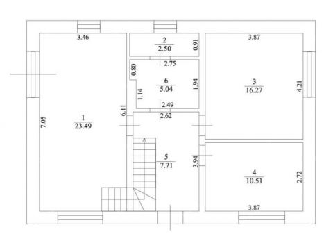
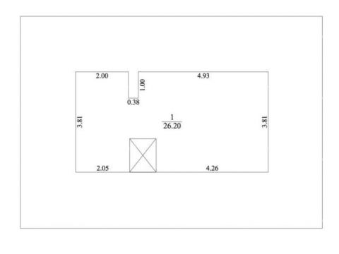
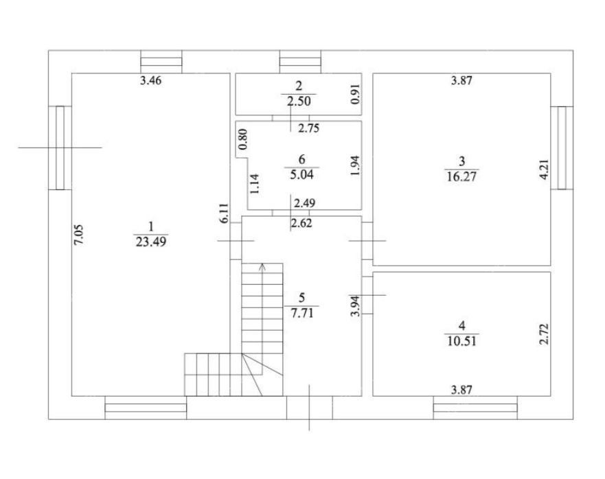
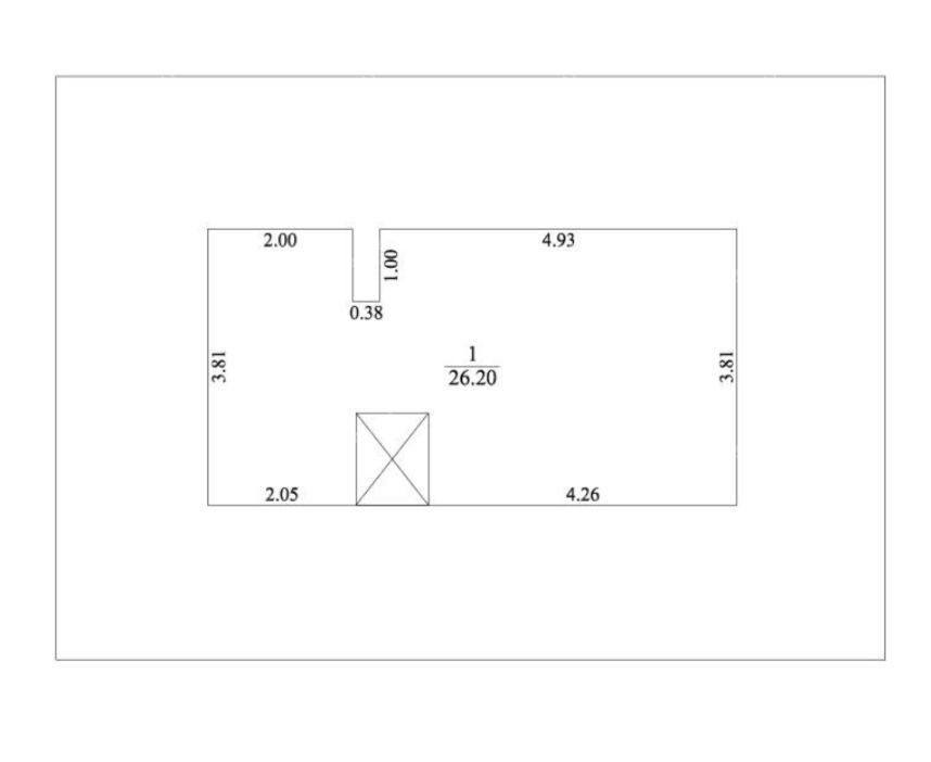
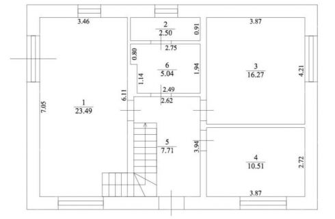
Площадь первого этажа составляет 74 м.кв: 2 спальни и большая кухня-гостинная 23,5 кв. метра с выходом на участок, санузел и котельная, второй этаж мансардный 26,2 м.кв с высотой потолка 2 метра, где легко оборудовать еще одну комнату или зону отдыха. Высота потолка первого этажа 2,85 метра.
Участок ровный 5 сот + есть придомовая территория. Новая асфальтированная дорога до дома.
Стоимость дома указана в черновом варианте. По желанию можно дозаказать предчистовую отделку ( разводка теплого пола и электрики по всему дому, механизированная стяжка, штукатурка стен, установка подрозетников), останется только выполнить косметический ремонт на свой вкус и цвет.
Удачное место расположение. 20 мин до Нижнего Новгорода и мин 10 до Кстово. Также ходят рейсовые автобусы.
Подходит под семейную и IT ипотеку, оказываем помощь в одобрении.
Звоните, договоримся о показе.
Продажа дома (деревня Зелецино, школьная)Кстовский район, Нижегородская область
6 450 000 руб.
| № | 2970033 |
|---|---|
| Район | Кстовский |
| Адрес | деревня Зелецино, школьная |
| Объект | дом |
| Площадь | 99,3 / / 23,5 |
| Площадь участка | 5 соток |
| Количество этажей | Уточнить |
| Материал стен | кирпич |
Контакты:
Соловьева Ирина Владимировна
+7-910-392-
Подробное описание:
деревня Зелецино на карте
Другие калькуляторы
Оценка своих возможностей
Оцените, квартиру какой стоимости вы можете купить
Калькулятор рефинансирования
Оцените, выгодно ли рефинансировать ипотеку
Калькулятор досрочного погашения
Посчитайте экономию при досрочном погашении кредита
Продажа дома (деревня Зелецино, школьная)















