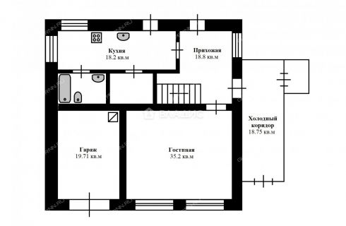
Код объекта: 1835754.Для тех, кто хочет жить в городе, но мечтает о своем доме с участком, предлагаем просторный теплый дом 187кв.м из белого кирпича на участке 6,6 сот (+6 соток не оформлены).Идеально подойдет для большой дружной семьи, которая готова воплотить в жизнь ремонт своей мечты.В доме 5 просторных комнат(одна на первом этаже, четыре на втором этаже), на первом этаже высота потолков 2,6 м, на втором этаже комнаты с высокими потолками 2,9 м.На первом этаже:- общая комната 35,2 кв.м- прихожая 18,8 кв.м- кухня 28,2 кв.м- санузел 5,0 кв.м- теплый гараж с входом с улицы 19,71 кв.мНа втором этаже:- комната 20,9 кв.м- комната 17,6 кв.м- комната 19,5 кв.м- комната 35,5 кв.м (есть выход на мансардный этаж)Отопление - газовый котел.Вода - свой колодец с питьевой водой (вода в дом заведена по средствам насосной станции).Канализация - свой септик.Инфраструктура отличная! В 4 минутах ходьбы автобусная остановка (ходят рейсовые автобусы), 11 минут ходьбы до трамвайной остановки.В шаговой доступности Гнилицкая православная гимназия, Основная школа №16, Детский сад №101, Церковь в честь Рождества Богородицы, Магнит, Авокадо, Бристоль, филиал 40 больницы.
Продажа дома на посёлок Гнилицы, ул. Лышнова, д. 48Автозаводский район, Нижний Новгород
13 500 000 руб.
| № | 2958154 |
|---|---|
| Район | Автозаводский |
| Адрес | посёлок Гнилицы, ул. Лышнова, д. 48 |
| Объект | дом |
| Площадь | 187 / 128,7 / 28,2 |
| Площадь участка | 6,6 сотки |
| Количество этажей | 1 |
| Материал стен | кирпич |
Контакты:
Чеснокова Марина Алексеевна
+7-964-697-
Подробное описание:
Телефон
нет
Интернет
нет
Отопление
есть
Электричество
есть
Водопровод
есть
Газ
есть
Канализация
есть
Наличие бани/сауны
нет
Ипотека
да
Дом д. 48 на ул. Лышнова
Другие калькуляторы
Оценка своих возможностей
Оцените, квартиру какой стоимости вы можете купить
Калькулятор рефинансирования
Оцените, выгодно ли рефинансировать ипотеку
Калькулятор досрочного погашения
Посчитайте экономию при досрочном погашении кредита
Продажа дома на посёлок Гнилицы, ул. Лышнова, д. 48



























