Предлагаем Вам 2‑этажный дом вдали от шума и городской суеты, но в пределах Нижнего Новгорода, в поселке Селекционной станции, который можно приобрести по льготной семейной или IT ипотеке.
О Доме
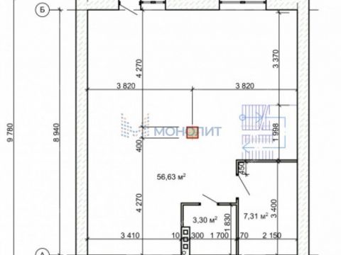
Площадь дома 132 м² на ровном прямоугольном земельном участке площадью 600 -800 м².
- Фундамент свайно-ростверковый монолитный ж/б с сечением 500*500мм глубиной 2500мм.
- Стены из газосиликатного блоков с утеплителем 100 мм и облицовочного кирпича 120 мм.
- Кровля двухскатная на брусе 50*200, покрытая профильной металлочерепицей «Монтерра». Утепление чердачного перекрытия минвата 200 мм
- Межэтажное перекрытие железобетонное.
- Окна ПВХ 5-ти камерный профиль 70мм с двойным стеклопакетом и немецкой фурнитурой
- Первый этаж: просторный холл, кухня‑гостиная, спальня, санузел
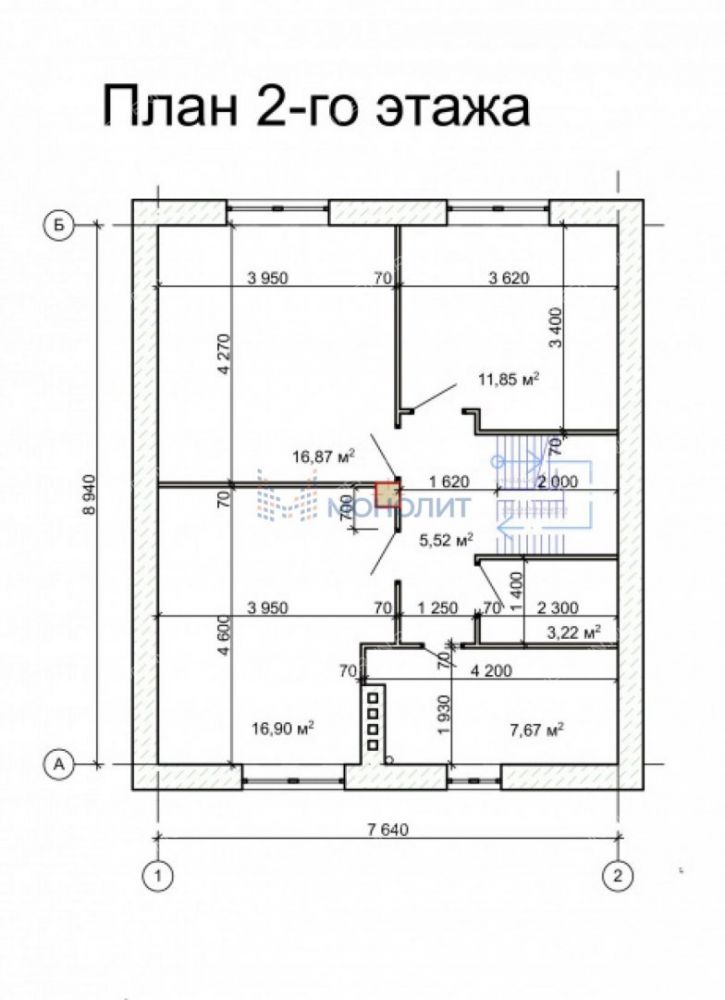
- Второй этаж: 3 спальни и раздельный санузел.
- Бетонная отмостка вокруг дома.
Коммуникации заведены в дом
- Газ.
- Электричество 15 кВт,
- Водопровод – центральный,
- Канализация – центральная.
В доме выполнена предчистовая отделка White Box:
- Система отопления с двухконтурным газовым котлом, счетчиком, теплым полом на 1-м этаже и радиаторами отопления на 2-м,
- Полусухая бетонно-песчаная стяжка на обоих этажах,
- Межкомнатные перегородки из ГКЛ (два слоя) и машинная штукатурка стен,
- Оконные откосы выполнены из сэндвич-панелей,
- ПВХ подоконники,
- Лестница межэтажная из сосновых пород,
- Разводка электроснабжения со щитом, автоматами, розетками и выключателями,
- Разводка канализации и водоснабжения от точек ввода до котла и сантехнических приборов,
- Монтаж унитаза и раковины в с/у 1-го этажа.
Дом продается с отделкой White Box по цене 10 7500 000 руб. и подходит под льготные семейную и IT ипотеку от аккредитованного застройщика.
Инфраструктура
Посёлок Селекционной станции (Селекция) расположен в Кстовском районе Нижегородской области и является развивающимся районом, поэтому в нем есть все необходимое для жизни:
- школа и детский сад,
- почта, магазины, аптеки, ателье, отделение банка, ПВЗ маркетплейсов и пр.
- остановка общественного транспорта. Между поселком и Приокским районом Нижнего Новгорода курсирует автобус №53
Мы оказываем помощь в оформлении ипотеки от всех ведущих банков по выгодным ставкам.
Полный комплекс услуг при покупке ИЖС.
В Подарок - Сертификат с 3-х летней гарантией на юридическое сопровождение.
Агентство недвижимости «Монолит» профессионально помогает с оформлением ипотеки: сбор и подача всех необходимых документов, оперативное рассмотрение заявки, помощь в получении сниженной процентной ставки, осуществляем юридическое сопровождение сделки. Оказываем весь комплекс услуг по покупке ИЖС в режиме одного окна (страховка, оценка, выездная регистрация, военная ипотека, маткапитал).
Номер объекта: #41/1787151/11523
Продажа дома (посёлок Селекционной станции, 9-я Изумрудная улица, 26)Кстовский район, Нижегородская область
10 750 000 руб.
| № | 2969582 |
|---|---|
| Район | Кстовский |
| Адрес | посёлок Селекционной станции, 9-я Изумрудная улица, 26 |
| Объект | дом |
| Площадь | 132 / |
| Площадь участка | 6 соток |
| Количество этажей | 2 |
| Материал стен | блоки |
Контакты:
Стрелков Андрей
+7-920-034-
Подробное описание:
посёлок Селекционной станции на карте
Другие калькуляторы
Оценка своих возможностей
Оцените, квартиру какой стоимости вы можете купить
Калькулятор рефинансирования
Оцените, выгодно ли рефинансировать ипотеку
Калькулятор досрочного погашения
Посчитайте экономию при досрочном погашении кредита
Продажа дома (посёлок Селекционной станции, 9-я Изумрудная улица, 26)




























