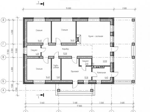
Арт. 103958833 <br> Продается одноэтажный кирпичный дом в г. Кстово, мкр. Престижный! Дом готов, не строительство! <br> Адрес: ул. Тихая, 18 <br> Общая площадь: 141,5 кв.м <br> Земельный участок: 10 соток <br> Особенности дома: <br>- Фундамент: буро-наливной, глубина 800 мм, ширина 500 мм, сваи через каждые 2000 мм по периметру, глубина 2000 мм. <br>- Стены: газосиликатный блок (625*400*250, марка Poritep D400), внутренние межкомнатные стены (625*150*250). <br>- Облицовка: кирпич марки Staford, производитель Керма. <br>- Кровля: металл толщиной 0.5 мм с отливами, снегозадержателями и комплектующими от фирмы Гранд Лайн. <br> Коммуникации: <br>- Переливной септик из двух бетонных колец диаметром 2 м (продукция Книле). <br>- Электричество: 15 кВт, подведено бронекабелем под землей. <br>- Вода: скважина глубиной 30 метров. <br>- В комплекте: газовый котел Baxi. <br>Этот дом — идеальное место для комфортной жизни! Не упустите шанс стать владельцем этого замечательного объекта. Звоните для получения дополнительной информации и организации просмотра!
Продажа дома (Престижный мкр, Тихая ул., 18)Кстовский район, Нижегородская область
7 700 000 руб.
| № | 2955009 |
|---|---|
| Район | Кстовский |
| Адрес | Престижный мкр, Тихая ул., 18 |
| Объект | дом |
| Площадь | 141 / 42 |
| Площадь участка | 10 соток |
Контакты:
Юшина Любовь
+7-908-752-
Подробное описание:
Телефон
нет
Интернет
нет
Отопление
есть
Электричество
есть
Водопровод
есть
Газ
есть
Канализация
есть
Наличие бани/сауны
нет
Торг уместен
да
Ипотека
да
Кстовский район на карте
Другие калькуляторы
Оценка своих возможностей
Оцените, квартиру какой стоимости вы можете купить
Калькулятор рефинансирования
Оцените, выгодно ли рефинансировать ипотеку
Калькулятор досрочного погашения
Посчитайте экономию при досрочном погашении кредита























