Продается двухэтажный дом с качественным ремонтом.
Площадь 298 кв.м., земельный участок 7,53 сот., квадратной формы.
Дом продается с мебелью и техникой.
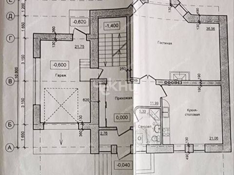
1 этаж:
Кухня 21 кв.м., холл-прихожая 12 кв.м., гостинная 37 кв.м., санузел 5 кв.м.
Выход в гараж и в подвальное помещение.
2 этаж:
Красивая, качественная деревянная лестница.
3 комнаты (32+21+22 кв.м.)
Гардеробная 5 кв.м.
Санузел (ванна) 9 кв.м.
Выход на чердачное помещение, люк со складной мет. лестницей.
Подвальное помещение (под всем домом) с системой вентиляции:
Бойлерная, мастерская, кладовая, прачечная, помещение свободного назначения.
Гараж:
Площадь 22 кв.м. Автоматические секционные ворота.
Проект дома выполнен с соблюдением всех строительных норм.
Ремонт выполнен из дорогих современных материалов.
Материалы:
Фундамент: ж/б. ленточный. Отмостка по периметру брусчатка по бетонной подготовке.
Перекрытия: ж/б, армированные, монолитные.
Стены: кирпич.
Перегородки и внутренние стены: кирпич.
Крыша: мет.черепица по дер. каркасу, разноуровневая, ломаная. С системой водоотведения и снегозадержания. Утеплитель - мин вата(250 мм)
Окна: ПВХ, профиль с двухкамерными стеклопакетами, откосы-утепленные сэндвич-панелями.
Входные двери" Мастерские Белякова".
Межкомнатные двери: "София", "Браво".
Эл. проводка: медная в гофрированной трубе. Резервный генератор.
Сантехническая разводка: металлопластиковые трубы с фитингами.
Отопление: стальные финские, с нижним переключением.
Теплые полы: водяное отопление 1 и 2 этаж. Включение отдельно для каждой зоны в доме.
Скважина с вкусной водой (проводили анализ).
Септик двухуровневый.
Видеонаблюдение, охрана. Эл. приводы к въездным распашным воротам, открывание с пульта.
Земельный участок облагорожен. Плодовые деревья, кустарники, хвойные деревья, розарий.
Беседка, теплица, детская площадка.
Инфраструктура:
Хорошая транспортная развязка, до Н.Новгорода 5 км., рядом остановка авт. и ж/д станция.
Школа, дет.сад в 5 мин. пешком. Бассейн "Олимп" на нашей улице.
Магазины: Пятерочка, Бристоль. Озон, ВБ. Автомойка. Аптека, фитнес клуб.
Рядом лес, озеро.
Звоните, этот дом стоит посмотреть и купить.
Продажа дома (рабочий посёлок Большое Козино, улица Пушкина, 37)Балахнинский муниципальный округ, Нижегородская область
27 400 000 руб.
| № | 2966695 |
|---|---|
| Район | Балахнинский муниципальный |
| Адрес | рабочий посёлок Большое Козино, улица Пушкина, 37 |
| Объект | дом |
| Площадь | 298 / 115 / 21 |
| Площадь участка | 753 сотки |
| Материал стен | кирпич |
Контакты:
Янюшева Ольга Андреевна
+7-920-252-
Подробное описание:
Дом д. 37 на ул. Пушкина
Другие калькуляторы
Оценка своих возможностей
Оцените, квартиру какой стоимости вы можете купить
Калькулятор рефинансирования
Оцените, выгодно ли рефинансировать ипотеку
Калькулятор досрочного погашения
Посчитайте экономию при досрочном погашении кредита





































