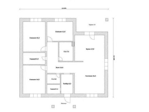
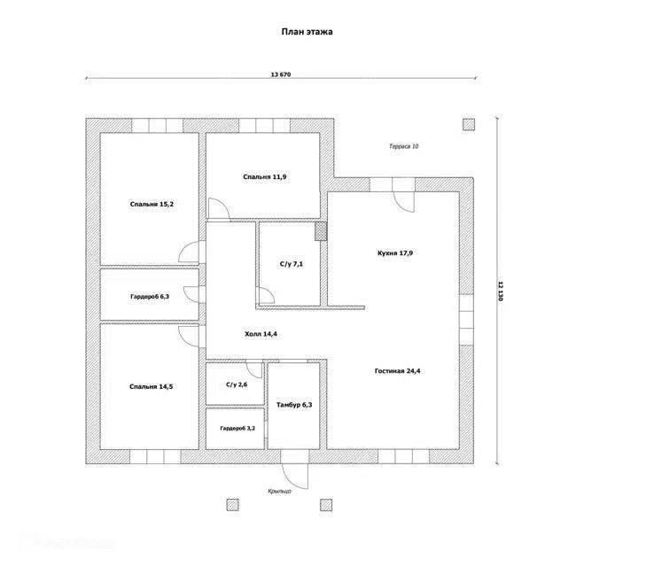
Арт. 114336961 ДОМ ГОТОВ!!! Предлагается к продаже готовый дом в д. Малое Козино из керамического кирпича с черновой отделкой. Преимущества покупки дома : * категория земли - земли населённых пунктов * расположен в живописном месте на высоком берегу Волги *удобные подъездные пути *близость к Н. Новгороду * ровный участок 10 соток *функциональная планировка: общая площадь- 128,2 кв. м, большая кухня 18 кв. м, 4 просторные комнаты, два санузла, гардеробная, котельная *мягкая кровля, окна из качественного ПВХ *к дому пристроена терраса * электрические мощности - 10 кВт, вода - собственная скважина, канализация- септик *отопление газовое. Быстрый выход на сделку, полное сопровождение. Одобрим под семейную ипотеку. Звоните, покажем в удобное для Вас время! Возможна организация отделки " под ключ".Привлекательная цена- 9 млн. Дом построен и готов к эксплуатации.Адрес дома рп. Малое Козино, тер. Волжская пойма , строение 5/7
Продажа дома (рабочий посёлок Малое Козино, 5/7)Балахнинский муниципальный округ, Нижегородская область
12 000 000 руб.
| № | 2957830 |
|---|---|
| Район | Балахнинский муниципальный |
| Адрес | рабочий посёлок Малое Козино, 5/7 |
| Объект | дом |
| Площадь | 128,2 / |
| Площадь участка | 10 соток |
| Количество этажей | 1 |
| Материал стен | кирпич |
Контакты:
Мащенко Нина
+7-920-005-
Подробное описание:
Отопление
есть
Водопровод
есть
Газ
есть
Канализация
есть
рабочий посёлок Малое Козино на карте
Другие калькуляторы
Оценка своих возможностей
Оцените, квартиру какой стоимости вы можете купить
Калькулятор рефинансирования
Оцените, выгодно ли рефинансировать ипотеку
Калькулятор досрочного погашения
Посчитайте экономию при досрочном погашении кредита
Продажа дома (рабочий посёлок Малое Козино, 5/7)









