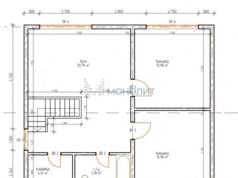
Продается в Нижегородской области в экологически чистом месте - Сокольский район, Горьковское море, деревня Афонино, новый двухэтажный дом общей площадью 194 м кв. На первом этаже дома находиться просторная спальня-гостиная и кухня-гостиная, а также хозяйственные блоки. На втором этаже хол и две комнаты, так же оба этажа предполагают сан/узлы и душевые . Дом построен из каркасов и утеплен эковатой под давлением, снаружи
облицован Хаубергом. в дом заведен газ и электричество .Местоположение данного объекта характеризуется особой живописностью, деревня находиться на северо-западе Нижегородской области, в зоне хвойно-широколиственных лесов, на правом берегу реки Лаймины, на первой линии, что дает большое количество свежего и чистого воздуха для жителей данной деревни. . Если вы устали от городской суеты и хотите жить на природе - это место для вас. Земельный участок составляет11.57 сот земли, что позволяет для своего удовольствия выращивать цветы, ягоды и что вашей душе угодно.
Агентство недвижимости «Монолит» профессионально помогает с оформлением ипотеки: сбор и подача всех необходимых документов, оперативное рассмотрение заявки, помощь в получении сниженной процентной ставки, осуществляем юридическое сопровождение сделки. Оказываем весь комплекс услуг по покупке ИЖС в режиме одного окна (страховка, оценка, выездная регистрация, военная ипотека, маткапитал).
Номер объекта: #41/1629870/11523
Продажа дома (рабочий посёлок Сокольское)Сокольский городской округ, Нижегородская область
13 500 000 руб.
| № | 2958756 |
|---|---|
| Район | Сокольский городской округ |
| Адрес | рабочий посёлок Сокольское |
| Объект | дом |
| Площадь | 194 / |
| Площадь участка | 11,57 сотки |
| Количество этажей | 2 |
| Материал стен | дерево |
Контакты:
Китаева Светлана
+7-920-034-
Подробное описание:
рабочий посёлок Сокольское на карте
Другие калькуляторы
Оценка своих возможностей
Оцените, квартиру какой стоимости вы можете купить
Калькулятор рефинансирования
Оцените, выгодно ли рефинансировать ипотеку
Калькулятор досрочного погашения
Посчитайте экономию при досрочном погашении кредита
Продажа дома (рабочий посёлок Сокольское)



















