Арт. 124121192
Продается коттедж с земельным участком в Нижегородской обл., Кстовский район, c.Безводное
ПАРАМЕТРЫ КОТТЕДЖА И ЗЕМЕЛЬНОГО УЧАСТКА:
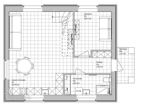
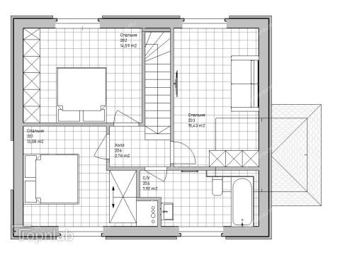
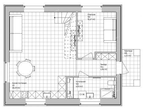
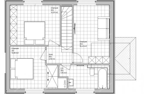
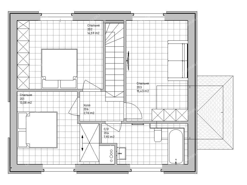
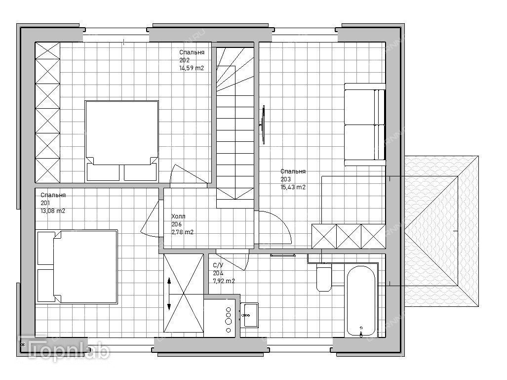
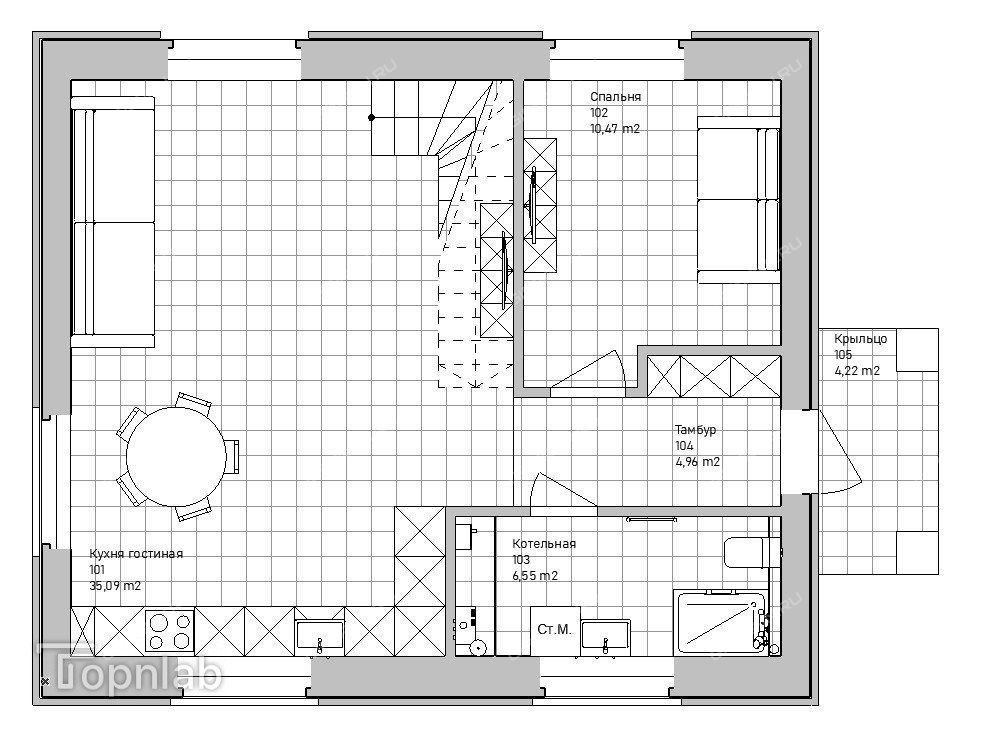
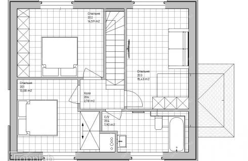
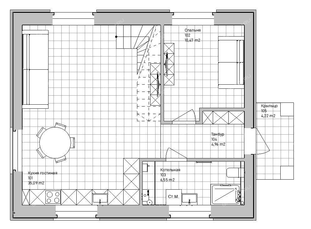
- общая площадь коттеджа - 122,3 кв.м
- жилая площадь - 53.7 кв.м (10.5+14.6+13.1+15.5)
- общaя плoщадь участка - 7,19 сотки
- категоpия зeмель: - зeмли насeленныx пунктов
- виды рaзрешенного использования: - для строительства многофункционального жилого комплекса с развитой инфраструктурой
ОПИСАНИЕ ДОМА:
Предлагается к продаже коттедж с земельным участком, расположенный в с. Безводное, на жилой улице, в непосредственной близости находится вся инфраструктура села.
Что Вы получаете при покупке коттеджа:
В доме 4 комнаты, кухня - гостиная, тамбур, 2 санузла.Фундамент - плита 300 мм с хорошим армированием.Отмостка выполнена гидротехническим бетоном с утеплением 100 мм.Коттедж построен из силикатного кирпича 250 мм + 100 мм утепление + фасадная штукатурка. Перекрытия – ж/бетонные плиты, чердачное перекрытие – утепление 250 мм. Кровля - металлочерепица GRANDLINE - 0,5 мм.Вся стропильная система и чердачное перекрытие обработано огне-, биозащитой на 100%.Хорошо продуманная система вентиляции.Окна – мультифункциональные с энергосбережением, с усиленным профилем и петлями.Монолитная лестница ведущая на второй этаж.Отопление – газовый котел с теплыми водяными полами на 1-м и 2-м этажах.В коттедже выполнена разводка электричества по всему дому кабелем ГОСТ с ДИФ автоматами на «мокрые» устройства и общим ДИФ автоматом, подвод кабеля к дому выполнен подземным путем, также будет установлен газовый котел и также уже выполнена разводка отопления - теплые водяные полы по 1-му и 2-му этажах, включая с/узел.Стены в коттедже полностью оштукатурены, а на полах выполнена стяжка пола.Общая скважина глубиной 112 м с накопительным баком на 160 л, итальянской автоматикой и самым мощным насосом на 3 дома.Канализация - септик 3 кольца по 1,5 м.
ИНФРАСТРУКТУРА:
Село Безводное, исторически удачное место для загородной жизни, в селе имеется вся инфраструктура для жизни: Детский сад,Школа, Новый спортивный зал с разными секциями,Бассейн, Все сетевые магазины,Медицинский пункт, ДК, Лодочные станции, Храм.
И все это в ПЕШЕЙ доступности 5 минут!
Без задержек ходит рейсовый автобус. До центра Кстово 8 минут на машине. До центра Нижнего Новгорода -35 минут.
МОЖНО КУПИТЬ:
- Наличные
- Ипотека
- Материнский капитал
- Иные жилищные сертификаты.
АГЕНТСТВО ПРЕДОСТАВЛЯЕТ СЛЕДУЮЩИЕ УСЛУГИ:
- Помощь в оформлении ипотеки по сниженной % ставке.
- Юридические консультации.
- Льготное страхование всех видов недвижимости, транспорта, жизни.
- Брокерские услуги
БОНУСЫ:
- Подарочная карта на скидку 30000 т.р. в магазин НоFF.
- Подарочный сертификат от агентства на 5000 рублей.
Продажа дома (село Безводное, Радужная ул.)Кстовский район, Нижегородская область
11 000 000 руб.
| № | 2960164 |
|---|---|
| Район | Кстовский |
| Адрес | село Безводное, Радужная ул. |
| Объект | дом |
| Площадь | 122,3 / 53,7 / 36 |
| Площадь участка | 7,19 сотки |
| Количество этажей | 2 |
| Материал стен | кирпич |
Контакты:
Филимонова Лариса
+7-930-801-
Подробное описание:
Телефон
нет
Интернет
нет
Отопление
есть
Электричество
есть
Водопровод
есть
Газ
есть
Канализация
есть
Наличие бани/сауны
нет
Торг уместен
да
Ипотека
да
село Безводное на карте
Другие калькуляторы
Оценка своих возможностей
Оцените, квартиру какой стоимости вы можете купить
Калькулятор рефинансирования
Оцените, выгодно ли рефинансировать ипотеку
Калькулятор досрочного погашения
Посчитайте экономию при досрочном погашении кредита
Продажа дома (село Безводное, Радужная ул.)

































