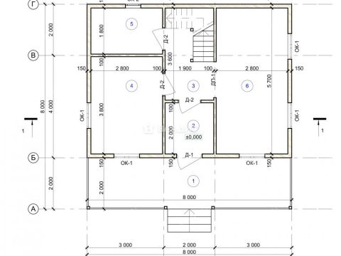
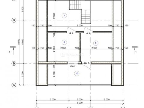
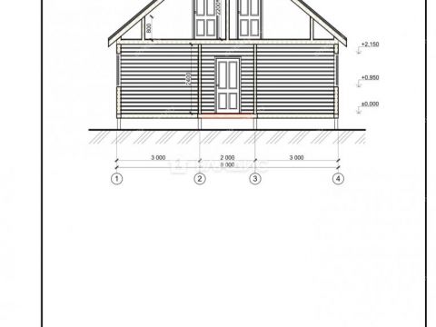
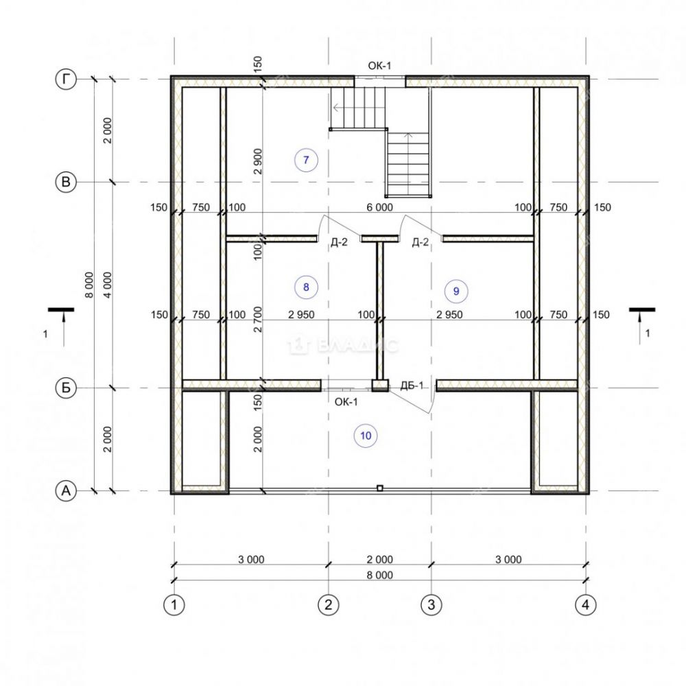
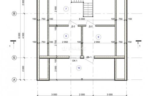
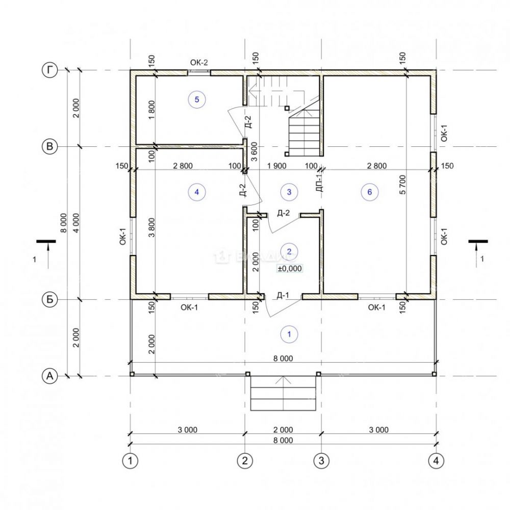
Код объекта: 1991472.Уникальное предложение для любителей загородной жизни — продаётся уютный дом в живописном селе Ефимьево, Нижегородская область. Дом построен в 2019 году из бруса, общая площадь — 105 кв. м, жилая — 26,5 кв. м, кухня — 16 кв. м. Три комнаты с площадью 10,7 кв. м, 7,9 кв. м и 7,9 кв. м предлагают достаточно пространства для комфортной жизни.о доме:Фундамент: винтовые сваи 2,5 м диаметром 108 мм.Материал стен:- внешние профилированный D-образный брус естественной сушки 150 мм, пропитка PINOTEX Орегон;- внутренние профилированный брус 100 мм, пропитка PINOTEX прозрачная.Брус собран на берёзовые нагели с джутовым волокном.Полы: шпунтованная доска 27 мм.Окна ПВХ однокамерные с монтажом на ройки.Кровля: ондулинКоммуникации:- электричество 15 кВт;- скважина 52 м;- септик 3 кольца;- газ на границе участка;- волоконно-оптический кабель от оператора связи на границе участка.Отопление в доме отсутствует, но газ проходит по границе участка, можно провести.На участке 10,75 соток есть всё для отдыха: баня и бассейн. Высажены плодовые деревья.Подъезд к участку засыпан щебнем, что обеспечивает хороший доступ в любое время года. Это идеальное место для тех, кто ищет спокойствие загородной жизни, но при этом не хочет быть слишком далеко от города — расстояние до города всего 10 км. Не упустите шанс стать владельцем этого прекрасного дома.Звоните нам прямо сейчас, чтобы узнать больше и записаться на просмотр. Мы гарантируем безопасную сделку и юридическую поддержку нашим Клиентам. Поможем одобрить ипотеку с сниженной ставкой.
Продажа дома (село Ефимьево, Фруктовая улица, 17)Богородский муниципальный округ, Нижегородская область
7 499 000 руб.
| № | 2965988 |
|---|---|
| Район | Богородский муниципальный |
| Адрес | село Ефимьево, Фруктовая улица, 17 |
| Объект | дом |
| Площадь | 105 / 26,5 / 16 |
| Площадь участка | 10,75 сотки |
| Количество этажей | 2 |
| Материал стен | дерево |
Контакты:
Стеблева Юлия Олеговна
+7-964-697-
Подробное описание:
Телефон
нет
Интернет
нет
Отопление
нет
Электричество
есть
Водопровод
есть
Газ
нет
Канализация
есть
Наличие бани/сауны
нет
Ипотека
да
село Ефимьево на карте
Другие калькуляторы
Оценка своих возможностей
Оцените, квартиру какой стоимости вы можете купить
Калькулятор рефинансирования
Оцените, выгодно ли рефинансировать ипотеку
Калькулятор досрочного погашения
Посчитайте экономию при досрочном погашении кредита
Продажа дома (село Ефимьево, Фруктовая улица, 17)







































