Предлагается к продаже исключительный умный дом, словно сошедший со страниц журнала об идеальной загородной жизни. Расположенный в тихом, охраняемом поселке, вблизи живописного села Каменки Богородского района, всего в получасе езды от Нижнего Новгорода по арзамасской трассе, этот дом станет вашей личной гаванью уюта и спокойствия.
Здесь вас ждет ровный, ухоженный земельный участок и просторная терраса, где можно наслаждаться рассветами и закатами, вдыхая свежий загородный воздух. Переступив порог дома, вы ощутите атмосферу тепла и комфорта здесь остается почти все, что вы видите на фотографиях: стильная мебель, современная кухня, функциональная бытовая техника. Просто возьмите ключи и начинайте новую, счастливую жизнь!
Забудьте о заботах! О доме уже позаботились: переливной двойной септик (7 куб.м), собственная скважина с насосом, защищенным от зимних морозов, система вентиляции, создающая комфортный микроклимат (включается в спальне, есть дополнительные клапаны для притока свежего воздуха). Отопление осуществляется электронными конвекторами, интегрированными в систему "умный дом" и управляемыми через "Алису" тепло всегда будет там, где вам нужно, и тогда, когда вам нужно. Более того, свет имеется на фасаде и на террасе, который можно также подключить к Алисе, задав нужное Вам включение по расписанию.
Предусмотрена возможность подключения газа выводка уже подведена к участку, и это не потребует больших затрат. В прихожей установлен бак-насос на 100 литров и бойлер, которые также подключены к системе "умный дом" через умные розетки. Автоматические счетчики, два интернет-оператора с проверенным роутером все продумано до мелочей.
Надежная крыша из металла Grand Line кликфальц и утепление минеральной ватой Технониколь (250 мл) гарантируют тепло и тишину в любое время года.
Металические боковые фасады также Grand Line
На ровном участке имеется подсобное помещение с инструментами все это станет вашим!
Коммунальные расходы:
3500 тр - ежемесячный взнос (видео наблюдение, охрана, вывоз мусора, работа по благоустройству поселка)
Электроэнергия: при включенном 24/7 бойлере и обогреве (3-4 электрических конвектора) - 4000 тр и тогда температура составит 24-25 градусов.
Поселок это ваша крепость: пропускной режим, круглосуточная охрана, камеры видеонаблюдения, идеальный асфальт до самого дома. В селе Каменки находятся школа, детский сад и сетевые магазины все необходимое для комфортной жизни совсем рядом.
Один взрослый собственник, никаких ипотек и обременений юридическая чистота сделки гарантирована. Не упустите свой шанс станьте обладателем этого прекрасного умного дома!
Продажа дома (село Каменки, Ахматовой, 12)Богородский муниципальный округ, Нижегородская область
9 300 000 руб.
| № | 2959226 |
|---|---|
| Район | Богородский муниципальный |
| Адрес | село Каменки, Ахматовой, 12 |
| Объект | дом |
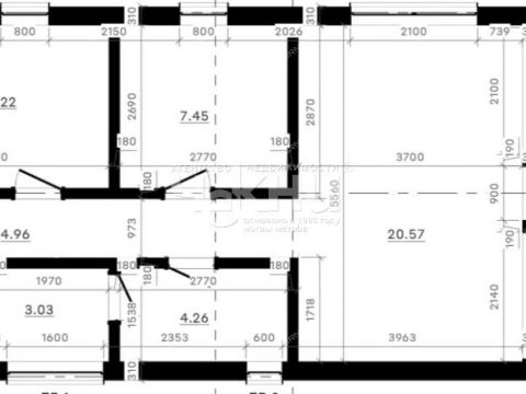
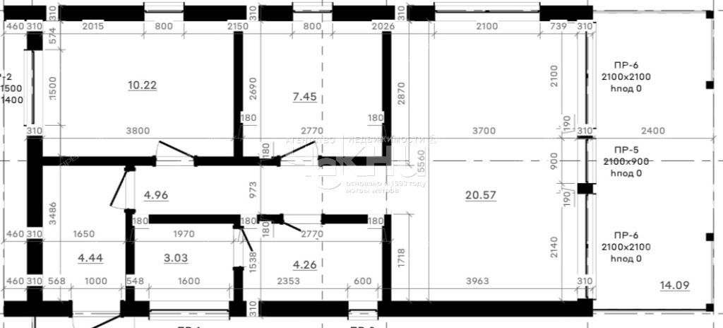
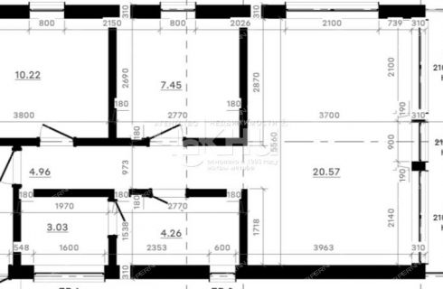
| Площадь | 75,8 / |
| Площадь участка | 10 соток |
| Материал стен | дерево |
Контакты:
Коноваленко Антон Александрович
+7-999-395-
Подробное описание:
село Каменки на карте
Другие калькуляторы
Оценка своих возможностей
Оцените, квартиру какой стоимости вы можете купить
Калькулятор рефинансирования
Оцените, выгодно ли рефинансировать ипотеку
Калькулятор досрочного погашения
Посчитайте экономию при досрочном погашении кредита














































