Номер объекта: 1843043. Вашему вниманию предлагается дом на стадии строительства, в 20 км от города в живописном Дальнеконстантиновском районе, в охраняемом коттеджном поселке с шлагбаумом. Этот дом — идеальный вариант для тех, кто мечтает о собственном уютном уголке, окруженном природой и с развитой инфраструктурой!
Основные характеристики:
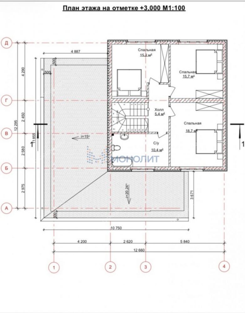
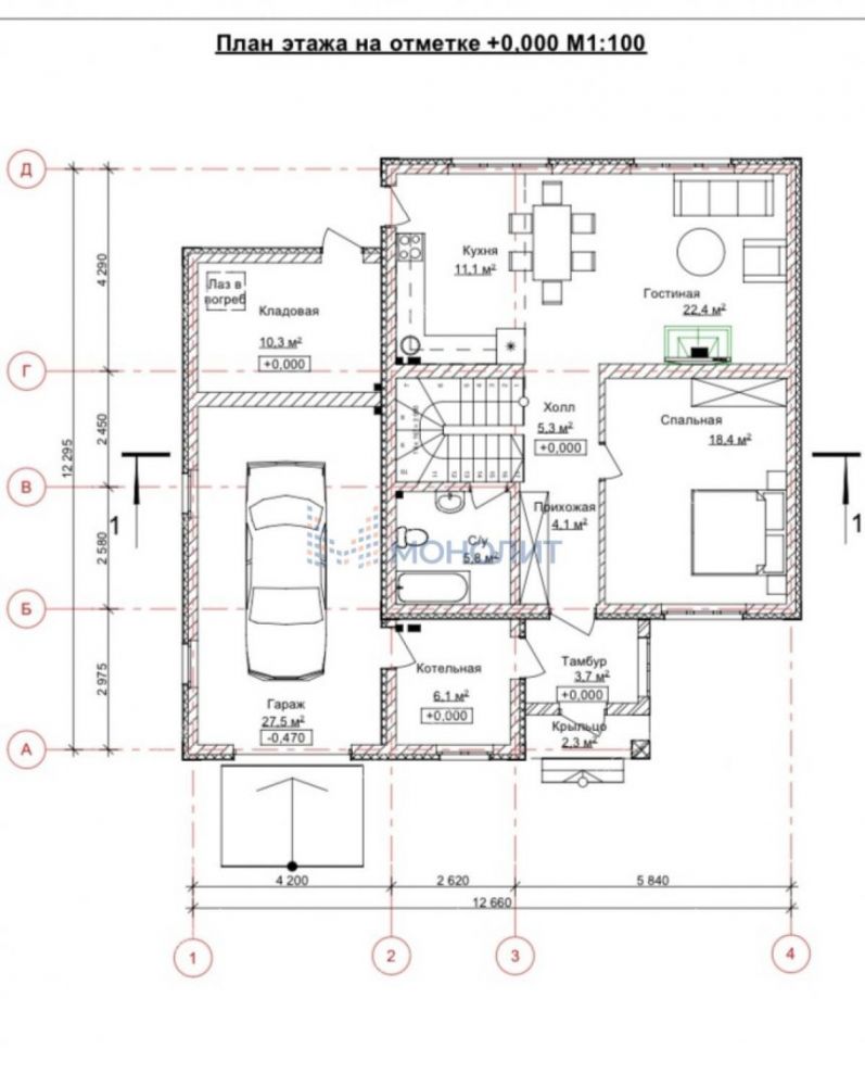
-Площадь дома: 156 м²
-Площадь участка: 20 соток
-Материал стен: керамзитно-бетонный блок (300 мм), влагостойкий
-Фундамент: ж/б монолит глубиной 3 метра
-Перекрытие деревянное, обработано влагозащитным составом
-Гидроизоляция по фундаменту
-Электричество: 15 кВт
-Вода: с общего водоснабжения (бесплатно)
-Газ: на границе участка, разрешение на подключение оплачено
-Дополнительно: гараж, погреб, баня и хозблок на территории
Преимущества:
Дом строился в 2023 году по индивидуальному проекту от ВЛМ-Строй, все акты в наличии.
Строительство выполнено с учетом розы ветров и солнечного движения — в гостиной вы будете наслаждаться солнечными лучами утром и вечером на противоположной стороне. По запросу высылаю фотографии этапов строительства, каждый этап контролировался заказчиком. Полностью готовый проект передается новым владельцам для завершения строительства.
Рядом находятся магазин, школа и детский сад, что делает жизнь здесь комфортной для семей с детьми.
Поселок охраняемый, что обеспечивает безопасность и спокойствие.
Не упустите возможность завершить строительство своего идеального дома в живописном месте! Звоните для получения дополнительной информации и организации просмотра в любое время. Ваш новый дом ждет вас!
Агентство недвижимости «Монолит» профессионально помогает с оформлением ипотеки: сбор и подача всех необходимых документов, оперативное рассмотрение заявки, помощь в получении сниженной процентной ставки, осуществляем юридическое сопровождение сделки. Оказываем весь комплекс услуг по покупке ИЖС в режиме одного окна (страховка, оценка, выездная регистрация, военная ипотека, маткапитал).
Продажа дома (Серебряные ключи (деревня Бугры) тер. ТСН, -, 95)Дальнеконстантиновский район, Нижегородская область
4 900 000 руб.
| № | 2972639 |
|---|---|
| Район | Дальнеконстантиновский |
| Адрес | Серебряные ключи (деревня Бугры) тер. ТСН, -, 95 |
| Объект | дом |
| Площадь | 156 / |
| Площадь участка | 20 соток |
| Количество этажей | 2 |
| Материал стен | блоки |
Контакты:
Махова Анастасия
+7-920-034-
Подробное описание:
Дальнеконстантиновский район на карте
Другие калькуляторы
Оценка своих возможностей
Оцените, квартиру какой стоимости вы можете купить
Калькулятор рефинансирования
Оцените, выгодно ли рефинансировать ипотеку
Калькулятор досрочного погашения
Посчитайте экономию при досрочном погашении кредита
Продажа дома (Серебряные ключи (деревня Бугры) тер. ТСН, -, 95)


















