О коттедже
Продается современные четырехуровневые коттеджи площадью 230 кв. м в престижном коттеджном поселке Прибрежная слобода Нижегородского района, построенный в 2024 году, Дома расположены на участке размером 6,5 соток. Готовых коттеджей два, третий достраивается. Дома отличаются внешней отделкой.
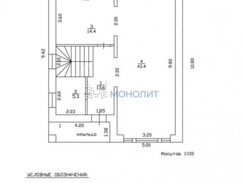
На цокольном этаже находятся котельная и подсобные помещения свободной планировки.
На первом этаже расположены: кухня, гостиная, и санузел.
На втором этаже расположены три спальни и санузел.
На плоской крыше дома расположена терраса, на которой можно обустроить зону барбекю. Из окна дома и с крыши открываются шикарные виды на Волгу.
В основании дома находится ленточный фундамент, глубиной 1,5 м, пол выполнен из бетона, перекрытие из железобетонных плит, стены - силикатный кирпич. Фасад дома комбинированный, с утеплителем 100 мм. У одного дома снаружи - декоративная штукатурка, у второго - на первом этаже облицован кирпичом, на втором - декоративная штукатурка.
Окна ПВХ изготовлены из качественного профиля с двухкамерными стеклопакетами, входная дверь с терморазрывом.С нулевого уровня на крышу ведет бетонная забежная лестница. Высота потолков 3 метра. Участок абсолютно ровный, облагорожен: засажен газонной травой. Вокруг дома - бетонная отмостка.Территория обнесена качественным дизайнерским забором, имеется калитка и ворота с откатным механизмом. Парковочные места и дорожка от калитки до двери вымощены брусчаткой.
В дом заведены все коммуникации: газ, водоснабжение и канализация – центральные, электричество – 15 кВт. Это обеспечивает комфортное проживание и удобство использования различных систем в доме.
Дом построен по проекту с соблюдением всех норм и требований аккредитованным профессиональным застройщиком с огромным опытом.
Транспортная доступность:
Дом расположен в пешей доступности от остановок общественного транспорта, с которых можно добраться в разные части города. До исторического центра города на транспорте 5-10 минут. в пешей доступности от ул. Родионова, на которой находятся: остановки общественного транспорта, магазины, аптеки, школа, детский сад, гипермаркет «Лента».
Дома продается от юридического лица и подходят под все виды ипотек.
Разумный торг при осмотре.
Мы являемся партнерами самых известных и стабильных банков: ПАО Сбербанк России, Банк ВТБ ПАО, Райффайзен банк АО.
Мы оказываем весь комплекс услуг по покупке ИЖС в режиме одного окна, осуществляем юридическое сопровождение сделки и 3 года после неё. Деятельность агентства застрахована.
- Оnlinе консультация юристов и ипотечных брокеров
- Оnlinе показы ИЖС
- Электронная регистрация сделок,,
Агентство недвижимости «Монолит» профессионально помогает с оформлением ипотеки: сбор и подача всех необходимых документов, оперативное рассмотрение заявки, помощь в получении сниженной процентной ставки, осуществляем юридическое сопровождение сделки. Оказываем весь комплекс услуг по покупке ИЖС в режиме одного окна (страховка, оценка, выездная регистрация, военная ипотека, маткапитал).
Номер объекта: #41/1605973/11523
Продажа дома на сл. Прибрежная, д. 56Нижегородский район, Нижний Новгород
34 900 000 руб.
| № | 2942027 |
|---|---|
| Район | Нижегородский |
| Адрес | сл. Прибрежная, д. 56 |
| Объект | дом |
| Площадь | 230 / |
| Площадь участка | 6,5 сотки |
| Количество этажей | 3 |
| Материал стен | кирпич |
Контакты:
Стрелков Андрей
+7-920-034-
Подробное описание:
Прибрежная слобода на карте
Другие калькуляторы
Оценка своих возможностей
Оцените, квартиру какой стоимости вы можете купить
Калькулятор рефинансирования
Оцените, выгодно ли рефинансировать ипотеку
Калькулятор досрочного погашения
Посчитайте экономию при досрочном погашении кредита
Продажа дома на сл. Прибрежная, д. 56












































