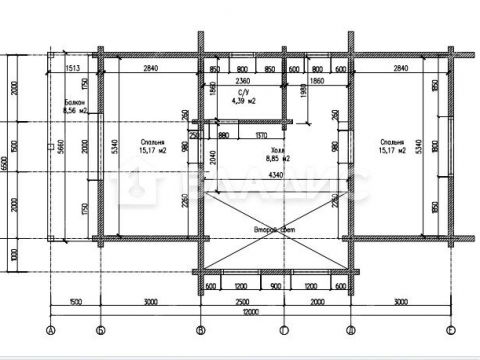
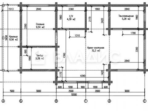
Код объекта: 1326532.Ищете дом в 30 минутах от Нижнего Новгорода? Сельская ипотека под 3%. Премиальный клеёный брус, закрытый коттеджный посёлок.На просмотре объекта вы сможете наполнится свежей энергией лесного массива и прочувствовать безопасное проживание круглый год. Коттеджный пoсeлoк "Серебряные ключи Парк"- это современный развивающийся коттеджный посёлок со своей закрытой территорией, охраной, уборкой и видеонаблюдением. В 5 км находится детский сад и школа, ходит школьный автобус. Рядом 5 активно развивающихся поселков, д.Бугры, д.Каменки.Размеры и площадь дома.Общая площадь дома 127,8м2. Два этажа. Второй свет.Первый этаж состоит из просторной кухни-гостиной 32,3м2, комната 9,5м2, тех. помещение и санузел.Второй этаж мансардный: две комнаты по 15,2м2, санузел, балкон с выходом из спальни с панорамным остеклением. Из дома открывается великолепный вид на лес и поле. Технология строительства и материал постройки.- Фундамент жб сваи 150*150 6 метров- Дом из премиального клееного бруса 185*160, брус профилированный , камерной сушки , собран соблюдая все технологии. Изготовитель бруса компания «ЛесКом». Торцы бруса обработаны и защищены. -Дом полностью отшлифован и покрыт защитной масляной пропиткой в два слоя. - Весь дом и обвязочный брус проложен межвенцевым утеплителем 5 мм- Кровля мягкая черепица немецкого производителя Дёкке. Кровля выполнена с соблюдением всех технологий, состоит из 5-ти слоев .Утеплитель кровли фирма Кнауф (тоже немецкая) толщина утеплителя 200 мм.- Полы и перекрытия выполнены из толстой фанеры 21 мм, проложен утеплитель Роквул 200 мм. Полы ровные и чистые.- Окна фирмы АрТек , двойной стеклопакет 40 мм , профиль 70 мм. Окна тонированы, с зеркальным эффектом с внешней стороны. На втором этаже выход на веранду оборудован панорамными окнами и купе-образной дверью (практичный, удобный и дорогой механизм )КоммуникацииЭлектричество в доме(сделана разводка и освещение), центральное водоснабжение заведено в дом, сделана разводка воды, септик, газ в процессе( договор подписан) Полностью проведено отопление, 12 радиаторов, установлен котёл, есть горячая вода.Земельный участокЗемельный участок ровный, правильной формы, 12,3 сотки, сделано межевание.По документамПорядок с документами, один взрослый собственник, никто не прописан, подходит под различные виды расчёта.Рассмотрим обмен на квартиру в Нижнем Новгороде.Мы гарантируем безопасную сделку и юридическую поддержку нашим Клиентам. Поможем одобрить ипотеку с сниженной ставкой. Звоните прямо сейчас, чтобы узнать больше деталей и назначить просмотр!
Продажа дома (ТСН Серебряные ключи Парк, 61)Дальнеконстантиновский район, Нижегородская область
8 900 000 руб.
| № | 2937618 |
|---|---|
| Район | Дальнеконстантиновский |
| Адрес | ТСН Серебряные ключи Парк, 61 |
| Объект | дом |
| Площадь | 127,8 / 39,9 / 32,3 |
| Площадь участка | 12,3 сотки |
Контакты:
Соболев Виталий Николаевич
+7-964-697-
Подробное описание:
Телефон
нет
Интернет
нет
Отопление
нет
Электричество
есть
Водопровод
нет
Газ
нет
Канализация
нет
Наличие бани/сауны
нет
Ипотека
да
Дальнеконстантиновский район на карте
Другие калькуляторы
Оценка своих возможностей
Оцените, квартиру какой стоимости вы можете купить
Калькулятор рефинансирования
Оцените, выгодно ли рефинансировать ипотеку
Калькулятор досрочного погашения
Посчитайте экономию при досрочном погашении кредита




















































