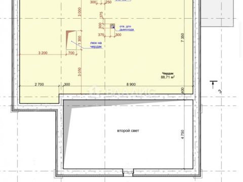
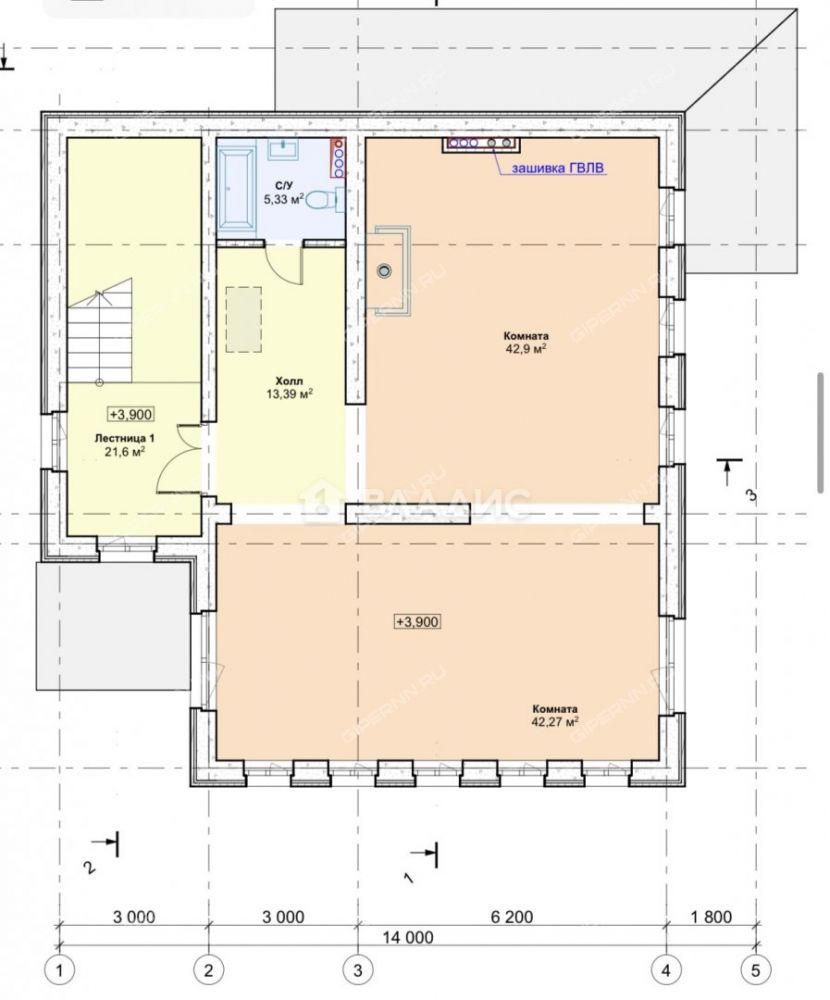
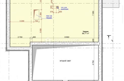
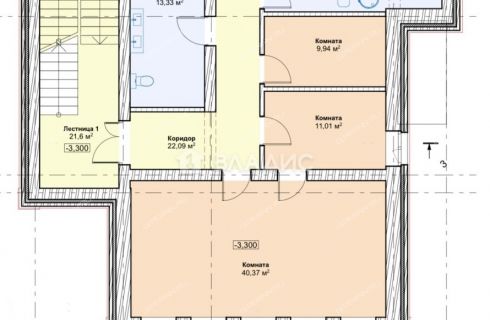
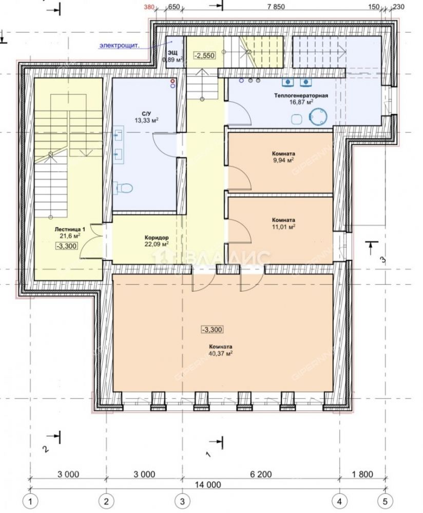
Код объекта: 1906522.Уникальный проект в центре города, состоящий из двух современных домов, стилизованных под традиционную Нижегородскую архитектуру! Дома площадью 400 и 300 кв.м. в процессе строительства, в соответствии с проектом. Расположены в зоне комплекса строений и благоустройства территории нового IТ кампусов «Неймарк» и «Квантовая долина». Новая пешеходная улица с мостами и благоустроенными скверами. Согласно плана развития города, от кампуса будет курсировать фуникулер на строящуюся современную набережную.В шаговой доступности все достопримечательности города и места туристического притяжения. Вариант дальнейшего использования домов, зависит лишь от фантазии нового владельца. Располагаются на земельном участке с кадастровым номером 52:18:0060152:448. Не являются объектами культурного наследия!!! При строительстве использованы только современные технологии и качественные строительные материалы. По запросу предоставлю технические характеристики, проект и перечень используемых материалов. Канализация и водоснабжение центральные - выполнено, жироуловитель, газоснабжение центральное - выполнено, отопление - теплые полы и радиаторы от газового котла Вахi и сантехразводка полипропилен, нержавейка/медь. ГВС от газового бойлера. Приточно/вытяжные системы вентиляции, системы кондиционирования всех помещений. Автоматика «Умный дом», видеонаблюдение. Электрика 130 кВт 380В 0,4 кВА. Спутниковое ТВ. Высокоскоростной оптоволоконный интернет. Благоустроенная территория, парковка для автомобилей. Окончание строительства I-е полугодие 2026 года. На стадии строительства возможны ЛЮБЫЕ изменения по требованиям нового собственника. К обсуждению вариантов приобретение готовы подойти гибко и рассмотреть различные варианты!!! Возможна продажа от юр.лица с выделением НДС или от некоммерческой организации.
Продажа дома на ул. Большие Овраги, д. 7Нижегородский район, Нижний Новгород
200 000 000 руб.
| № | 2960625 |
|---|---|
| Район | Нижегородский |
| Адрес | ул. Большие Овраги, д. 7 |
| Объект | дом |
| Площадь | 700 / 570 / 43 |
| Площадь участка | 6 соток |
| Количество этажей | 3 |
| Материал стен | железобетон |
Контакты:
Собко Александр Вадимович
+7-906-615-
Подробное описание:
Телефон
нет
Интернет
нет
Отопление
есть
Электричество
есть
Водопровод
есть
Газ
есть
Канализация
есть
Наличие бани/сауны
нет
Дом д. 7 на ул. Большие Овраги
Другие калькуляторы
Оценка своих возможностей
Оцените, квартиру какой стоимости вы можете купить
Калькулятор рефинансирования
Оцените, выгодно ли рефинансировать ипотеку
Калькулятор досрочного погашения
Посчитайте экономию при досрочном погашении кредита
Продажа дома на ул. Большие Овраги, д. 7


















