Арт. 128335408
Продается роскошный дом в самом сердце города. (город Нижний Новгород, Советский район, улица Рыбинская, дом 24А).Идеальное сочетание простора, комфорта и престижа. Этот трехэтажный дом с цокольным этажом общей площадью 375,9 кв.м создан для жизни и инвестиций.
Надежность и качество:
Стены: Керамический кирпич с 15-сантиметровым утеплителем и облицовкой клинкерным кирпичом – гарантия долговечности и отличной теплоизоляции. Фундамент и перекрытия: Монолитная плита и монолитные перекрытия обеспечивают максимальную прочность конструкции. Кровля: Современная металлочерепица.
Все для вашего комфорта:
Коммуникации: Центральные, включая 15 кВт трехфазного электричества. Отопление: Газовый котел.
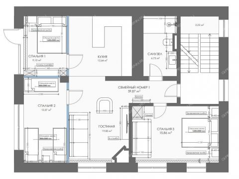
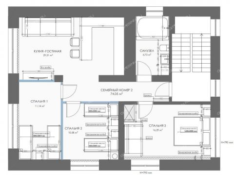
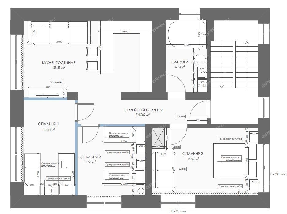
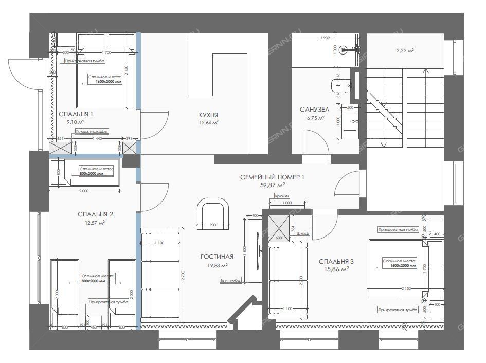
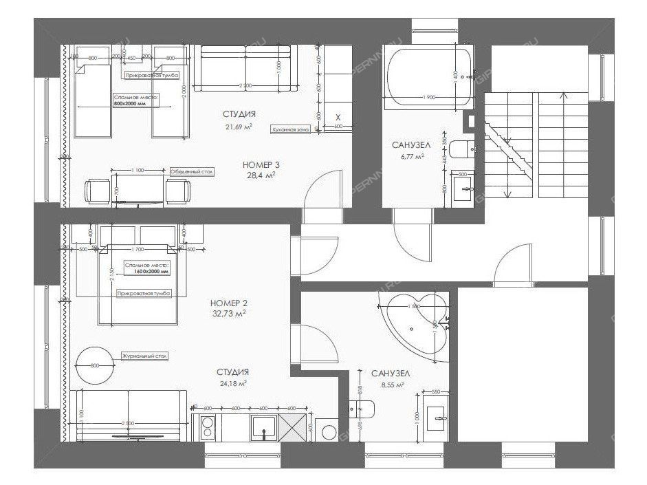
Уникальная планировка и приватность: Особая конструкция лестницы позволяет свободно перемещаться между этажами, сохраняя приватность. На каждом этаже расположены санузлы и кондиционеры. Кухонные зоны с техникой легко демонтируются при необходимости.
Особые детали: Высота потолков: 3,30 метра создают ощущение простора. На первом этаже уютный керамический камин, который станет центром притяжения! Лестница и двери выполнены из натурального дерева и массива соответственно, подчеркивая статус дома. Цоколь идеально подходит для организации зоны хранения и постирочной, а так же есть котельная комната. Вся мебель и техника остается новым собственникам. В доме много света и свободного пространства. Широкие подоконники, импортные радиаторы. Использованы только высококачественные и дорогие материалы, каждая деталь продумана со вкусом.
Современные технологии: Система "умный дом", видеонаблюдение (1 этаж и входная группа), теплые полы.
Земельный участок: 5 соток ИЖС, огорожен забором. Имеется погреб (3х3х3 м) с деревянной лестницей и вентиляцией – отличное место для хранения. Зона отдыха (стол и лавочки). Парковка на территории.
Средние коммунальные платежи – всего около 12 000 рублей. Этот дом – идеальный выбор как для комфортного личного проживания, так и для выгодных инвестиций. Чистая продажа, один собственник, никаких подводных камней, полная сумма в договоре!
Приглашаем на просмотр – фотографии не передают всей красоты и уюта этого дома!
Прилегающие улицы: Ванеева, Надежды Сусловой, Высоковский проезд, Ошарская, Республиканская, Агрономическая, Белинского, Генкиной, Полтавская.
Продажа дома на ул. Рыбинская, д. 24АСоветский район, Нижний Новгород
55 000 000 руб.
| № | 2963625 |
|---|---|
| Район | Советский |
| Адрес | ул. Рыбинская, д. 24А |
| Объект | дом |
| Площадь | 375,9 / 150 |
| Площадь участка | 5,25 сотки |
| Количество этажей | 3 |
| Материал стен | кирпич |
Контакты:
Никишина Оксана
+7-920-032-
Подробное описание:
Телефон
нет
Интернет
нет
Отопление
есть
Электричество
есть
Водопровод
есть
Газ
есть
Канализация
есть
Наличие бани/сауны
нет
Торг уместен
да
Ипотека
да
Рыбинская улица на карте
Другие калькуляторы
Оценка своих возможностей
Оцените, квартиру какой стоимости вы можете купить
Калькулятор рефинансирования
Оцените, выгодно ли рефинансировать ипотеку
Калькулятор досрочного погашения
Посчитайте экономию при досрочном погашении кредита
Продажа дома на ул. Рыбинская, д. 24А













































