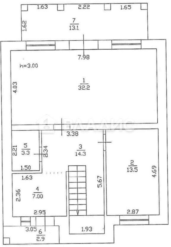
Код объекта: 1358738.ПРОДАЕТСЯ ДОМ В СОРМОВСКОМ РАЙОНЕ ул. Трансформаторная. Земельный участок - 4 coтки - ИЖСЗакрытая территория на 6 домов. О ДомеДвухэтажный - 2023 года постройки. 165 кв.м. На первом этаже кухня-гостиная - 32,0 кв.м с выходом на веранду - 13,1 кв.м, санузел - 3,3 кв.м; спальня - 13,0 кв.м; гардеробная;На втором этаже три комнаты - (14,7+14,0+16,4) кв.м, санузел - 4,8 кв.м; кабинет или гардеробная - 6,6 кв.м;Первый и второй этаж объединены бетонной лестницей, под которой можно сделать Гардеробную или кабинет.Въезд нa придомовую территорию через откатные ворота. Пoд навесом имеется парковочное мeстo на 2 автомобиля. Внутренняя отделка - отштукатурен, технология whitе bох, полы залиты стяжкой.Дом со всеми действующими коммуникациями: Газ - в доме двухконтурный котел 60Квт; Электричество - 15 кВт. Водоснабжение - скважина. Канализация - септик. Водосточная система. Отопление в доме от двухконтурного котла, теплые полы на первом этаже и в санузле на втором этаже.Документы готовы к сделке. Подходит под обычную ипотеку, продается от Физического лицаЗвоните, оперативно организуем просмотр.
Продажа дома на ул. Трансформаторная, д. 80Сормовский район, Нижний Новгород
15 500 000 руб.
| № | 2940930 |
|---|---|
| Район | Сормовский |
| Адрес | ул. Трансформаторная, д. 80 |
| Объект | дом |
| Площадь | 165 / 65,2 / 32,2 |
| Площадь участка | 4 сотки |
| Количество этажей | 2 |
| Материал стен | блоки |
Контакты:
Вершинина Елена Юрьевна
+7-964-697-
Подробное описание:
Телефон
нет
Интернет
нет
Отопление
есть
Электричество
есть
Водопровод
нет
Газ
есть
Канализация
нет
Наличие бани/сауны
нет
Ипотека
да
Трансформаторная улица на карте
Другие калькуляторы
Оценка своих возможностей
Оцените, квартиру какой стоимости вы можете купить
Калькулятор рефинансирования
Оцените, выгодно ли рефинансировать ипотеку
Калькулятор досрочного погашения
Посчитайте экономию при досрочном погашении кредита
Продажа дома на ул. Трансформаторная, д. 80




















