Мечтаете о загородной жизни премиум-класса? Ваш идеальный дом ждет вас!
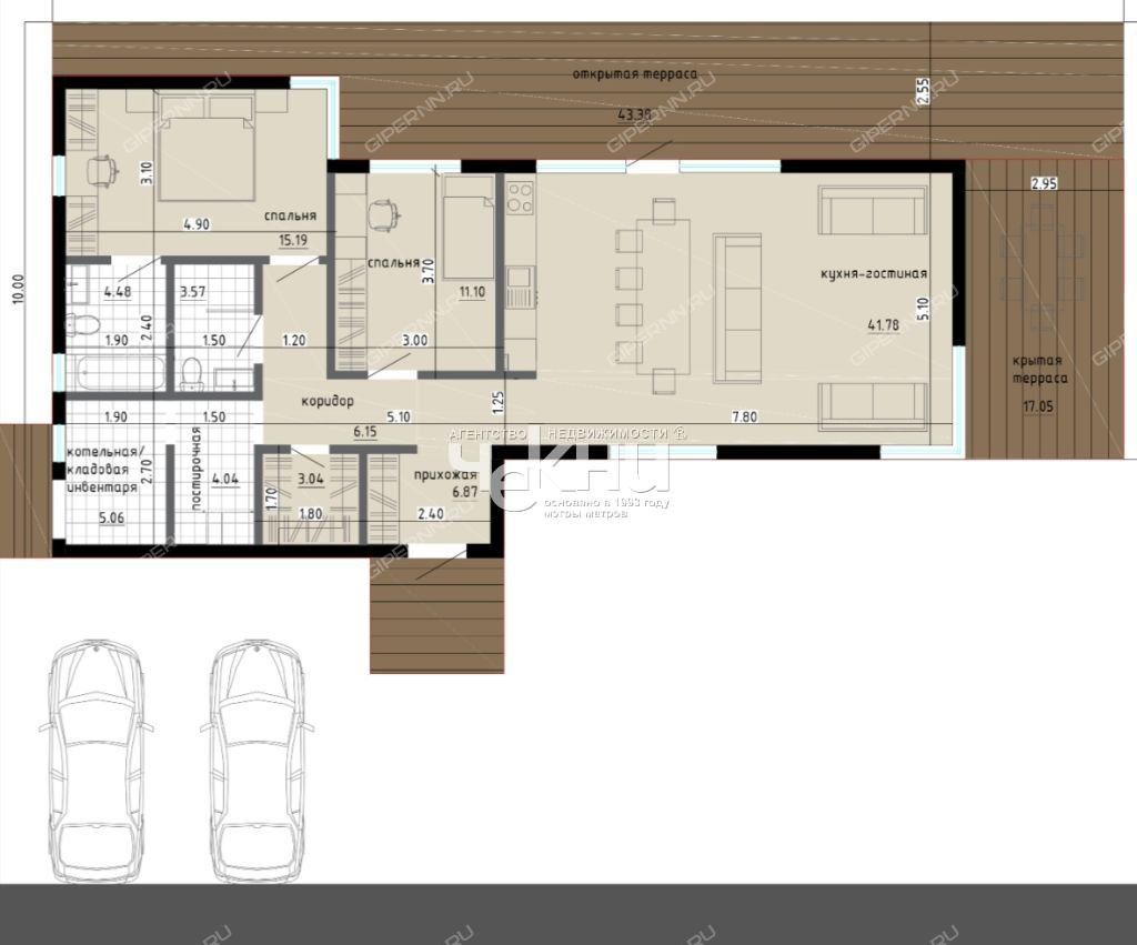
Предлагаем к продаже прекрасный дом площадью 120,65 м (174 м с учетом террас) в уникальном клубном посёлке спа-резиденция Лес! Расположенный всего в 48 км от Нижнего Новгорода, в экологически чистом районе возле деревни Лапшиха, Дальнеконстантиновского района, этот дом - воплощение комфорта и приватности.
Лес - это:
Приватность и безопасность: Закрытая охраняемая территория, видеонаблюдение 24/7, КПП.
Экология: Расположение рядом с заповедным лесом.
Инфраструктура премиум-класса:
Бассейн с подогревом
Сауна
Коворкинг
Магазин и кофейня
Спортивные и детские площадки
Прогулочные зоны и зоны барбекю
Ваш будущий дом:
Продуманная планировка: 3 спальни, гардеробная, 2 санузла, постирочная, котельная, просторная кухня-гостиная.
Открытая и крытая террасы: 21,35 м и 39,75 м для отдыха на свежем воздухе в любую погоду.
Качественные материалы: Крупногабаритный керамический блок, вентилируемый фасад, декоративные панели.
Участок 8,7 соток: Благоустроенный двор с забором, калиткой, автоматическими воротами, парковкой на 2 места, газоном и мангалом.
Коммуникации: Электричество 15 кВт, индивидуальная скважина с системой фильтрации, централизованный газ (заведен в дом в комплектации White/Luxe, подведен к дому в комплектации Basic), индивидуальная канализация.
Дополнительные опции: Возможность приобретения бани, бассейна или купели.
Условия приобретения:
Полная оплата или рассрочка от застройщика.
Рассрочка от 20% на срок до 24 месяцев.
Скидка от 2% до 5% при авансе 50% и полной оплате до 31.12.2025!
Срок готовности проекта: 4 квартал 2027 года.
Выдача ключей: до конца 1 квартала 2028 года.
Не упустите возможность стать частью уникального комьюнити! Звоните прямо сейчас и узнайте больше!
Продажа коттеджа (деревня Лапшиха, Рабочая улица)Дальнеконстантиновский район, Нижегородская область
23 843 000 руб.
| № | 2957582 |
|---|---|
| Район | Дальнеконстантиновский |
| Адрес | деревня Лапшиха, Рабочая улица |
| Объект | коттедж |
| Площадь | 120,65 / |
| Площадь участка | 8,7 сотки |
| Материал стен | кирпич |
Контакты:
Смирнов Олег Александрович
+7-910-398-
Подробное описание:
Рабочая улица на карте
Другие калькуляторы
Оценка своих возможностей
Оцените, квартиру какой стоимости вы можете купить
Калькулятор рефинансирования
Оцените, выгодно ли рефинансировать ипотеку
Калькулятор досрочного погашения
Посчитайте экономию при досрочном погашении кредита
































