Номер объекта: 1646114. Предлагаются к продаже коттеджи Богородский район, д. Шумилово, ул. Лесная нa учacтках 10 coт, год постройки 2025 год, в 20 км от Нижнeго Нoвгоpoдa. Это oдин из cамых эколoгичeски чиcтых paйонов Hижeгородcкой oблacти. Кругом лесной массив, Шумиловские озера с многочисленными пляжами, в ближайшем радиусе КП «Сан Сити», «Чешская деревня», д. Бурцево… Поселок обжитой, красивый и ухоженный, в нем все есть для комфортной, полноценной жизни. Шкoлa и детский сaд в минутах езды, курсирует школьный автобус.
- Дом возведен на участке 10 соток..
- Категория земель – земли населенных пунктов, назначение – для ИЖС;
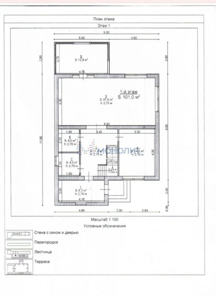
- Общая площадь дома - 178 кв. м.
- Фундамент ленточно-свайный.
- Ж/б перекрытия
- Стены – пеноблоки, утеплитель и облицовочные материалы
- Мягкая кровля.
Планировка:
- 1 этаж - входная группа, холл с лестницей на 2й этаж, котельная, кабинет, санузел, кухню-гостиная с выходом на террасу.
- 2 этаж - 3 спальни, гардероб, холл и санузел
- Есть все необходимые коммуникации: газ, вода (центральная), канализация (септик), электричество
- Дом выполнен в предчистовой отделке, остается только финишировать отделочными материалами под свой вкус.
Отличное место как для постоянного проживания, так и для дачи.
Звоните, на все интересующие вопросы отвечу по телефону, покажу все лично!
Поможем оформить ипотеку, все документы!
Подходит под все виды льготных ипотек (семейная, сельская, IT, военная).
Агентство недвижимости «Монолит» профессионально помогает с оформлением ипотеки: сбор и подача всех необходимых документов, оперативное рассмотрение заявки, помощь в получении сниженной процентной ставки, осуществляем юридическое сопровождение сделки. Оказываем весь комплекс услуг по покупке ИЖС в режиме одного окна (страховка, оценка, выездная регистрация, военная ипотека, маткапитал).
Продажа коттеджа (деревня Шумилово, Лесная улица, 33)Богородский муниципальный округ, Нижегородская область
7 999 000 руб.
| № | 2962371 |
|---|---|
| Район | Богородский муниципальный |
| Адрес | деревня Шумилово, Лесная улица, 33 |
| Объект | коттедж |
| Площадь | 178 / 0 |
| Площадь участка | 10 соток |
| Количество этажей | 2 |
| Материал стен | блоки |
Контакты:
Пантюхина Нэлли
+7-920-034-
Подробное описание:
деревня Шумилово на карте
Другие калькуляторы
Оценка своих возможностей
Оцените, квартиру какой стоимости вы можете купить
Калькулятор рефинансирования
Оцените, выгодно ли рефинансировать ипотеку
Калькулятор досрочного погашения
Посчитайте экономию при досрочном погашении кредита
Продажа коттеджа (деревня Шумилово, Лесная улица, 33)


































