Уважаемые покупатели!
Предлагаем вашему вниманию уникальное предложение – продажа современного дома площадью 160 кв.м с земельным участком в 7.5 соток, расположенного в живописном, озеленённом месте, вдали от городского шума и суеты. Подходит под все льготные и ипотечные программы.
Основные характеристики:
Общая площадь и технические параметры:
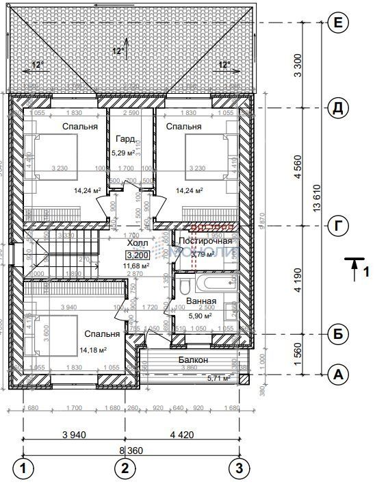
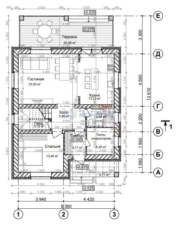
Общая площадь жилого дома – 160 м².
Жилая площадь – 79,26 м².
Высота помещений первого этажа – 2,90 м.
Высота помещений мансардного этажа – от 2,00 м до 2,70 м.
Площадь земельного участка: 7.5 соток
Гостиная: 23,20м
Кухня: 13,23м
Количество Спален: 4 - 13,40м; 14,24м; 14,24м; 14,18м.
Санузел: 2 - 3,68м и 5,90м
Гардеробная: 5,29м
Котельная: 5,29м
Постирочная: 3,79м
Конструктивное решение:
1. Фундамент - согласно геологическим изысканиям.
2. Наружные ограждающие конструкции - газосиликатный блок толщиной 400мм
с утеплителем толщиной 50мм, вентзазором и облицовкой керамическим кирпичом толщиной 85мм.
3. Внутренние стены - газосиликатный блок толщиной 300 мм (вентканалы - керамический кирпич толщиной 380мм).
4. Перегородки - газосиликатный блок толщиной 100мм.
5. Крыша скатная. Конструкция крыши - деревянные стропила.
Покрытие - металлочерепица.
6. Межэтажные перекрытия - деревянные балки;
7. Окна - ПВХ Rehau Blitz или аналоги; 2-х камерный стеклопакет (три стекла) с ламинацией снаружи.
Водоотливы по окнам.
Дверь: Дверь входная металлическая утепленная.
8. Лестница - монолитный ж/б.
Состояние объекта:
Дом построен из качественных материалов, что обеспечивает долговечность и комфорт. Мы предлагаем льготную ипотеку, что делает приобретение недвижимости ещё более доступным.
Инженерные и экономические показатели:
Водоснабжение – производится из скважины.
Канализация – автономная, с устройством септика и системой биологической самоочистки.
Вентиляция – приточно-вытяжная с естественным побуждением, с вентканалами в кирпичных стенах.
Электроснабжение – от поселковой электросети.
Отопление – автономное, от газового котла, размещенного в теплогенераторной.
Горячее водоснабжение – также автономное от газового котла.
Благоустройство:
Отмостка по периметру здания выполнена из асфальто-бетона (не менее 1 м).
Озеленение участка выполняется по желанию заказчика.
Агентство недвижимости «Монолит» профессионально помогает с оформлением ипотеки: сбор и подача всех необходимых документов, оперативное рассмотрение заявки, помощь в получении сниженной процентной ставки, осуществляем юридическое сопровождение сделки. Оказываем весь комплекс услуг по покупке ИЖС в режиме одного окна (страховка, оценка, выездная регистрация, военная ипотека, маткапитал).
Номер объекта: #41/1629028/11523
Продажа коттеджа (посёлок Черемисский, -, -)Кстовский район, Нижегородская область
17 000 000 руб.
| № | 2959348 |
|---|---|
| Район | Кстовский |
| Адрес | посёлок Черемисский, -, - |
| Объект | коттедж |
| Площадь | 160 / |
| Площадь участка | 7,5 сотки |
| Количество этажей | 2 |
| Материал стен | блоки |
Контакты:
Романова Ася
+7-920-034-
Подробное описание:
посёлок Черемисский на карте
Другие калькуляторы
Оценка своих возможностей
Оцените, квартиру какой стоимости вы можете купить
Калькулятор рефинансирования
Оцените, выгодно ли рефинансировать ипотеку
Калькулятор досрочного погашения
Посчитайте экономию при досрочном погашении кредита
Продажа коттеджа (посёлок Черемисский, -, -)













