Добрый день!
Предлагаю Вашему вниманию интересный вариант! Все строилось для себя без экономии на качестве!
На участке площадью 15 соток построены два коттеджа. Оба дома построены в одном стиле .
1. Гостевой дом площадью 58 кв.м., с просторной верандой 36 кв.м. (6х6 м), 2021 г постройки. Полностью готовый к проживанию. На 1-м этаже кухня гостиная 16 кв.м. + санузел + баня на дровах вся обшита липой, на 2-м этаже две изолированных комнаты (10 и 12 кв.м.) + гардеробная. В доме выполнены железобетонные перекрытия. Отопление газовое (радиаторы), Высота потолков на первом этаже 2,5 м, на втором этаже 2,3 м
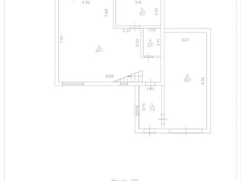
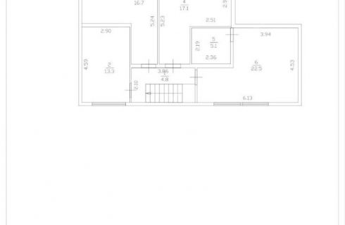
2. Коттедж общей площадью 220 кв.м. 2025 года постройки без отделки, с гаражом 30,7 кв.м. (автоматические ворота) и террасой 27 кв.м. (балкон). На первом этаже кухня-столовая 49,7 кв.м.; комната 9,7 кв.м., санузел 3,7 кв.м., прихожая 7,3 кв.м. На втором этаже: четыре комнаты (13,3+ 16,7 +17,1 +22,5 кв.м.), из большой комнаты выход на террасу, и санузел.Дом построен из газосиликатных блоков, межэтажные перекрытия (плита полностью залита), фундамент дома теплая железобетонная плита (по шведской технологии), крыша односкатная- утепление 200. На первом этаже смонтирован теплый пол (водяной), на втором этаже в перспективе также (материал куплен). Высота потолков в помещениях первого этажа 3,2 м, второго этажа 2,9 м.
На участке есть мангальная зона + тандыр
Улица Спортивная, тихая и уютная, асфальт до дома, отличное освещение, зимой все идеально чистят.
Вся инфраструктура районного цента в шаговой доступности: Храм в честь Святителя и Чудотворца Николая; ФОК "Энергия" (ледовая арена, бассейн, спортзалы и футбольное поле); сеть продовольственных магазинов, два детских сада (Солнышко, Колосок); поликлиника; больница; автостанция
Расстояние от г.Нижнего Новгорода (Щербинки) - 50 км., Арзамас - 45 км., Кстово - 38 км., Перевоз - 37 км., Богородск 48 км.
Звоните - покажем в удобное для Вас время!!!
Продажа коттеджа (рабочий посёлок Дальнее Константиново, Спортивная улица, 25)Дальнеконстантиновский район, Нижегородская область
17 500 000 руб.
| № | 2954664 |
|---|---|
| Район | Дальнеконстантиновский |
| Адрес | рабочий посёлок Дальнее Константиново, Спортивная улица, 25 |
| Объект | коттедж |
| Площадь | 278 / |
| Площадь участка | 15 соток |
| Количество этажей | Уточнить |
| Материал стен | блоки |
Контакты:
Васильева Елена Владимировна
+7-950-601-
Подробное описание:
Спортивная улица на карте
Другие калькуляторы
Оценка своих возможностей
Оцените, квартиру какой стоимости вы можете купить
Калькулятор рефинансирования
Оцените, выгодно ли рефинансировать ипотеку
Калькулятор досрочного погашения
Посчитайте экономию при досрочном погашении кредита
Продажа коттеджа (рабочий посёлок Дальнее Константиново, Спортивная улица, 25)


















































