Арт. 112908908
Продается коттедж с земельным участком в Кстовском районе, Нижегородской области,
в селе Великий Враг, по адресу: Олимпийская улица, дом 20.
Общая площадь коттеджа — 150,9 кв. м,
участка — 10 соток.
Земля предназначена для индивидуального жилищного строительства (ИЖС).
ОПИСАНИЕ ДОМА:
Предлагаем к продаже уютный двухэтажный коттедж, расположенный вдали от городской суеты.
Дом в отличном состоянии, с качественным ремонтом.
Установлены французские окна, натяжные потолки, светильники, новые межкомнатные двери,
входная бронированная дверь.
Пол выполнен из керамогранита, ламината и керамической плитки.
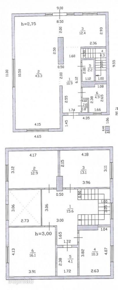
1 этаж:
Входная группа: холл - 10.9 кв. м, гардеробная.
Просторная кухня-гостиная (55.7кв. м) со встроенной техникой.
Гостевой санузел 2.2 кв. м. с отделкой плиткой.
Электрический камин.
Новая застекленная веранда.
Котельная - 4. 9 кв. м.
К дому пристроен гараж 11 кв. м х 4 кв. м.
2 этаж:
Три комнаты (12.9+ 13.1+ 16.1кв. м)., гардеробная - 4.1 кв. м.
Ванная комната - 10.3 кв. м.
При строительстве дома применён архитектурный приём "Второй свет", в связи с этим гостинная кажется более светлой, воздушной, красиво сочетается с панорамным остеклением.
Придомовая территория выложена тротуарной плиткой.
Вместительная парковка (80 кв. м).
Откатные автоматические ворота.
Забор по периметру участка с кирпичными столбами и металлическим штакетником.
Участок ухоженный, ровный, поднят черноземом, засеян газоном. На участке цветники, туи, плодовые
деревья и кустарники. Имеется теплица.
В доме остается большая часть мебели,
садовый инвентарь.
Крыша - металлочерепица, ливневая система, снегозадержатели.
Стены железобетонные, утеплённые.
Фундамент — железобетонный, монолитный.
На участке построена баня, погреб.
В коттеджном поселке - асфальтированные дороги и освещенные улицы.
Будем рады показать Вам наш уютный дом.
Пожалуйста, предупредите о своем приезде заранее.
Спасибо за понимание.
Взрослый собственник.
Документы готовы.
Готовы рассмотреть обмен на 3-х комнатную квартиру в новом доме с ремонтом.
ИНФРАСТРУКТУРА:
-В шаговой доступности сетевые магазины.
-Остановки общественного транспорта.
-ТРЦ.
-Школы.
-Детские сады.
-Почты.
-Отделения банков.
МОЖНО КУПИТЬ:
- Наличные
- Ипотека
- Материнский капитал
- Иные жилищные сертификаты.
АГЕНТСТВО ПРЕДОСТАВЛЯЕТ СЛЕДУЮЩИЕ УСЛУГИ:
- Помощь в оформлении ипотеки по сниженной % ставке.
- Юридические консультации.
- Льготное страхование всех видов недвижимости, транспорта, жизни.
- Брокерские услуги.
БОНУСЫ:
- Подарочная карта на скидку 30000 т. р. в магазин НоFF.
- Подарочный сертификат от агентства на 5000 рублей.
Продажа коттеджа (село Великий Враг, Олимпийская улица, 20)Кстовский район, Нижегородская область
18 000 000 руб.
| № | 2956195 |
|---|---|
| Район | Кстовский |
| Адрес | село Великий Враг, Олимпийская улица, 20 |
| Объект | коттедж |
| Площадь | 150,9 / 85,4 / 12,4 |
| Площадь участка | 10 соток |
| Количество этажей | 2 |
| Материал стен | кирпич |
Контакты:
Мальцева Татьяна
+7-930-801-
Подробное описание:
Телефон
нет
Интернет
нет
Отопление
есть
Электричество
есть
Водопровод
есть
Газ
есть
Канализация
есть
Наличие бани/сауны
есть
Ипотека
да
Олимпийская улица на карте
Другие калькуляторы
Оценка своих возможностей
Оцените, квартиру какой стоимости вы можете купить
Калькулятор рефинансирования
Оцените, выгодно ли рефинансировать ипотеку
Калькулятор досрочного погашения
Посчитайте экономию при досрочном погашении кредита
Продажа коттеджа (село Великий Враг, Олимпийская улица, 20)

















































