Мечтаете о собственном доме в черте города по цене квартиры? Возможно, это лучшее предложение для вас!
Продается 2х этажный таунхаус (дуплекс) из кирпича 2016 г постройки в Советском районе Н.Новгорода на ул. Импульсная, д. 13Б (в районе ТИЗ Новопокровское).
Дом состоит из 2х жилых этажей площадью 132 кв.м, из цокольного этажа (+60 кв.м), и чердака. Дом расположен на участке 2,65 соток (по документам), дополнительно - ещё около 3 соток (перед домом до дороги).
И 2,6 сот сзади дома (продается отдельно).
В доме сделан ремонт по индивидуальному дизайн-проекту.
На 1м этаже - просторная кухня-гостиная (35.6 кв.м), гостевая комната с гардеробным шкафом (13.5 кв.м), санузел и котельная. Кухонный гарнитур и техника остаются в подарок. Из гостинной имеется выход на задний двор. По всему первому этажу - теплый пол.
сантехника и бытовая техника LG, Electrolux, Geberit, OWL 1975
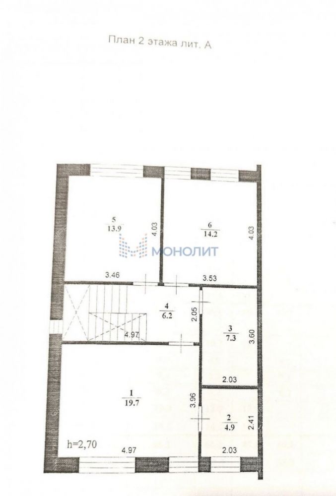
На 2м этаже - 2 комнаты (по 13.9 и 14.2 кв.м), спальня с гардеробом (19.7 и 4.9 кв.м) и просторный санузел с подогревом полов (7 кв.м). Лестница Fakro на чердак: утепленная выдвижная
На чердаке по желанию новых владельцев можно оборудовать кабинет, игровую зону или комнату для гостей (20 кв.м). Цокольный этаж (60 кв.м), утепленный отапливаемый, имеет выход на улицу, можно оборудовать спортивный зал, сауну, мастерскую.
Дом оборудован всеми коммуникациями:
- центральное газоснабжение (котел Beretta) и электроснабжение,
- водоснабжение - скважина (40м), вода хорошая, насосное оборудование Wilo, Watts, фильт Atoll,бойлер Nibe,радиаторы Rommer
- канализация - двойной септик (откачка 1 раз в год, 4000₽)
- интернет оптоволокно Ростелеком
- счета за электричество в среднем 1500₽ в мес
- счета за газ от 700₽ летом до 3500₽ зимой в мес
Технические характеристики дома:
- стены: керамические блоки Кетра лайт (красный кирпич), утеплитель (базальтовые маты), облицовочный кирпич,
- фундамент, межэтажные перекрытия, лестница: монолитные железобетонные,
- кровля - металлочерепица Монтеррей,
- пластиковые окна Rehau,
- охранная сигнализация
Дорога до дома асфальтированная, очищается круглогодично.
Рядом с домом можно оборудовать беседку, мангал и 3 парковочных места.
До центра города - 20 мин на авто. Ближайшие школы, детские сады и ТЦ расположены в 7ми мин езды на авто - в м/р-не Кузнечиха, Цветы, Анкудиновский парк.
Подходит под ипотеку. Один взрослый собственник. Альтернат подобран. Аргументированный торг
Звоните! Возможно, именно Ваша мечта станет реальностью!
Агентство недвижимости «Монолит» профессионально помогает с оформлением ипотеки: сбор и подача всех необходимых документов, оперативное рассмотрение заявки, помощь в получении сниженной процентной ставки, осуществляем юридическое сопровождение сделки. Оказываем весь комплекс услуг по покупке ИЖС в режиме одного окна (страховка, оценка, выездная регистрация, военная ипотека, маткапитал).
Номер объекта: #41/1744553/11523
Продажа таунхауса на ул. Импульсная, д. 13БСоветский район, Нижний Новгород
18 500 000 руб.
| № | 2967495 |
|---|---|
| Район | Советский |
| Адрес | ул. Импульсная, д. 13Б |
| Объект | таунхаус |
| Площадь | 132 / |
| Площадь участка | 2,65 сотки |
| Количество этажей | 2 |
| Материал стен | кирпич |
Контакты:
Волкова Ирина
+7-920-034-
Подробное описание:
Дом д. 13Б на ул. Импульсная
Другие калькуляторы
Оценка своих возможностей
Оцените, квартиру какой стоимости вы можете купить
Калькулятор рефинансирования
Оцените, выгодно ли рефинансировать ипотеку
Калькулятор досрочного погашения
Посчитайте экономию при досрочном погашении кредита
Продажа таунхауса на ул. Импульсная, д. 13Б









































