Предлагаем вам приобрести готовый бизнес — комфортабельный хостел в одной из центральных частей города. Объект полностью оборудован, не требует дополнительных вложений, имеет стабильную клиентскую базу и налаженные бизнес процессы.
Нежилое отдельно стоящее кирпичное здание (КН 52:19:0303047:130)
• Местоположение: Нижегородская обл., г. Бор, ул. Лихачева, д.5а
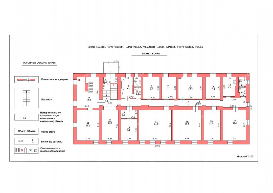
• Общая площадь здания: 435,3 кв.м.
• Общая площадь земельного участка (КН 52:19:0303047:19), на котором расположено здание: 628,0 кв.м.
• Количество этажей: 2 этажа
• Расчетное количество возможного одновременного пребывания людей: 91 койко-место (с возможностью расширения до 120 койко-мест)
1 этаж - 40 человек, 2 этаж – 51 человек.
• Количество номеров: 20 номеров
1 этаж – 8 номеров, 2 этаж – 12 номеров.
• Статус: действующий бизнес с положительной динамикой доходов.
• Год последнего капитального ремонта: 2018 год
• Год последнего косметического ремонта: 2024 год
Инфраструктурные преимущества.
• Общая кухня столовая, расположенная на 1 этаже;
• На каждом этаже расположены общие санузлы и душевые, некоторое номера имеют собственные санузлы и душевые;
• Бесплатный Wi Fi на всей территории хостела;
• Система видеонаблюдения и контроля доступа;
• Индивидуальная система отопления;
• Собственная огороженная придомовая территория;
• Имеются индивидуальные номера для проживая повышенной комфортности;
• Удобная транспортная развязка.
Продажа готового бизнеса: Отдельно стоящее здание (гостиница)городской округ Бор, Нижегородская область
38 000 000 руб.
| № | 2961808 |
|---|---|
| Район | городской округ Бор |
| Адрес | город Бор, улица Лихачёва, 5а |
| Объект | Отдельно стоящее здание (гостиница) |
| Сфера деятельности | гостиницы |
Контакты:
Роман Юрьевич
+7-910-796-
Подробное описание:
Дом д. 5а на ул. Лихачёва
Продажа готового бизнеса: Отдельно стоящее здание (гостиница)

















