Номер объекта: 1600032. В продаже по переуступке шикарная 2+ квартира в центре города с удобной транспортной развязкой, расположенная по адресу: пересечение улиц Ереванская и Дальняя, дом 52 (по ген. плану)
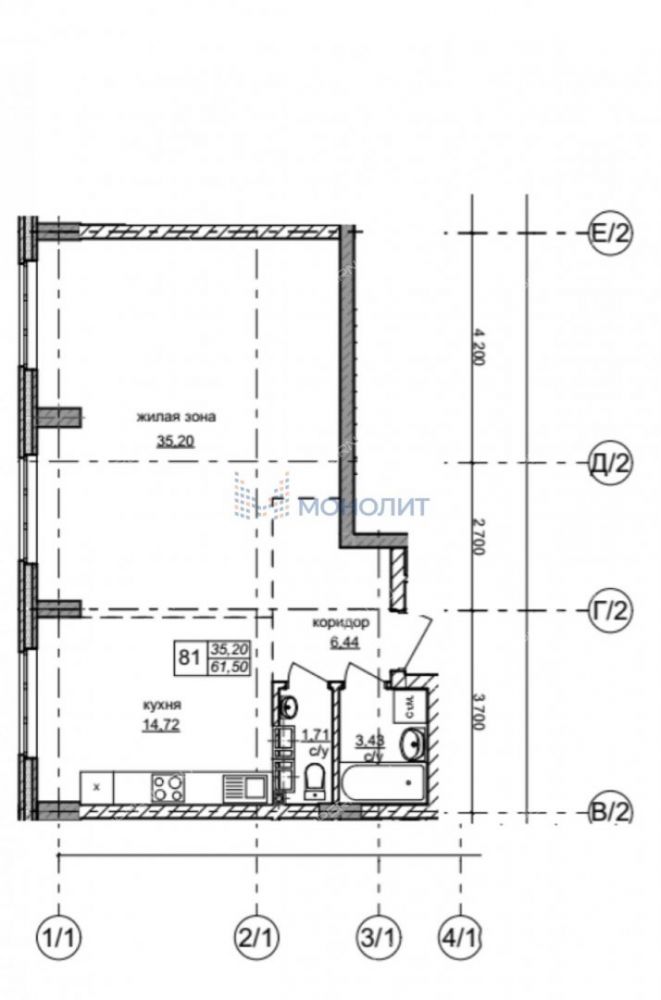
Общая площадь 61.5 кв.м. Кухня-гостиная 15 кв.м. Детская 15.2 кв.м. Спальня 20 кв.м.
Квартира свободной планировки позволит вам воплотить в жизнь любые идеи дизайна.
Фасад здания выполнен из многослойных бетонных панелей, облицованных прочным клинкерным кирпичом.
На территории личный заповедник и приватная зеленая территория. Современные игровые и спортивные зоны
для взрослых и детей, закрытая территория для своих, зарядка для электромобилей, бесключевая система доступа, комплексное видеонаблюдение.
В собственности также имеется одно парковочное место и кладовая.
Один взрослый собственник. Чистая продажа.
В шаговой доступности вся развитая инфраструктура: детские сады, школы, торговые и развлекательные центры, набережная, удобная транспортная развязка.
Рядом расположены улицы: улица Максима Горького, улица Одесская, улица Белинского, улица Ямская, улица Барминская, улица Дальняя, улица Ереванская
Агентство недвижимости «Монолит» профессионально помогает с оформлением ипотеки: сбор и подача всех необходимых документов, оперативное рассмотрение заявки, помощь в получении сниженной процентной ставки, осуществляем юридическое сопровождение сделки. Оказываем весь комплекс услуг по покупке квартиры в режиме одного окна (страховка, оценка, выездная регистрация, военная ипотека, маткапитал, подбор новостроек).
Продажа 2-комнатной квартиры в новостройке на ул. Барминская, д. 1АСоветский район, Нижний Новгород
16 800 017 руб.
| № | 2972534 |
|---|---|
| Район | Советский |
| Адрес | ул. Барминская, д. 1А |
| Комнат | 2 комнаты |
| Площадь | 61,5 / 35,2 / 15 |
| Этаж / этажность | 5 / 9 |
| Срок сдачи | 2023 г. сдан |
| Материал стен | поризованный керамический блок |
| Высота потолков | 3,22 м |
Контакты:
Сало Наталья
+7-920-034-
Подробное описание:
Дом 1А на ул. Барминская
| Район | Советский район |
|---|---|
| Адрес | ул. Барминская, д. 1А |
| Год постройки | 2023 |
| Этажность | 17 |
| Материал стен | керамический блок |
| Высота потолков | 3,22 м (средняя) |
| Средняя цена за м2 | 285 456 руб. |
| Подъездов | 5 |
| Квартир | 146 |
| Лифт | 5 |
| Парковка | наземная, подземная |
| Школа по прописке | Лицей №28, Лицей №28 |
Почта
Почта России838м
Магазины
КуулКлевер МясновЪ Отдохни118м
Cake and Cofee by Di251м
Магнит339м
Spar364м
Павловская курочка534м
Школы
Лицей № 28917м
Гимназия № 25 им. А.С. Пушкина975м
Медицина
Поликлиника № 5662м
Детские сады
Детский сад № 135318м
Детский сад № 139635м
Детский сад № 19713м
Детский сад № 248856м
Другие калькуляторы
Оценка своих возможностей
Оцените, квартиру какой стоимости вы можете купить
Калькулятор рефинансирования
Оцените, выгодно ли рефинансировать ипотеку
Калькулятор досрочного погашения
Посчитайте экономию при досрочном погашении кредита
Продажа 2-комнатной квартиры в новостройке на ул. Барминская, д. 1А


















