Номер объекта: 1868431. Жилой комплекс «N1 Первый дом в Нижнем» стал ярким дополнением к качественному жилью города бизнес-класса, который расположен в Канавинском районе в границах улиц Октябрьской Революции, Григорьева, Вольская, Витебская.
Архитектура, воплощенная в проектах застройщика UDS, отражает современные тенденции в строительстве и оформлении жилых пространств. Комплекс состоит из 454 квартир в домах переменной этажности от 6 до 25 этажей.
Удобные планировки от 23 до 120м2. позволяют максимально эффективно использовать имеющееся пространство, создавая комфортные условия для жизни.
Современные технологии строительства, такие как монолитный железобетонный каркас и фасад из керамического кирпича, обеспечивают долговечность и энергоэффективность домов. Квартиры с предчистовой отделкой предоставляют возможность жильцам реализовать свои дизайнерские идеи, выбирая отделку по собственному вкусу.
Близость к станциям метро и развитая городская инфраструктура делают «N1 Первый дом в Нижнем» идеальным вариантом для семей с детьми и активных горожан. Наличие коммерческих помещений на первом этаже способствует созданию уютной атмосферы и повышает удобство для жителей. Комплекс находится напротив парка 1 Мая, который будет полностью обновлен и благоустроен.
В доме предусмотрен 2х уровневый подземный паркинг. Все продумано до мелочей для комфортной жизни в новом доме. Сдача 1 кв. 2027г. Продажа квартир по ФЗ-214 через счета эскроу, подходит под все виды льготных ипотечных программ.
Не упустите возможность стать частью этого уникального проекта, который начнет принимать своих жильцов уже в первом квартале 2027 года.
Агентство недвижимости «Монолит» профессионально помогает с оформлением ипотеки: сбор и подача всех необходимых документов, оперативное рассмотрение заявки, помощь в получении сниженной процентной ставки, осуществляем юридическое сопровождение сделки. Оказываем весь комплекс услуг по покупке квартиры в режиме одного окна (страховка, оценка, выездная регистрация, военная ипотека, маткапитал, подбор новостроек).
Продажа 2-комнатной квартиры в новостройке на ул. Октябрьской Революции, 56Канавинский район, Нижний Новгород
12 042 618 руб.
| № | 2972961 |
|---|---|
| Район | Канавинский |
| Адрес | ул. Октябрьской Революции, 56 |
| Комнат | 2 комнаты |
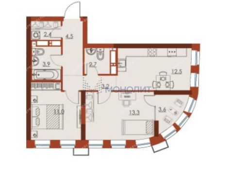
| Площадь | 57,1 / 24,3 / 12,5 |
| Этаж / этажность | 24 / 25 |
| Срок сдачи | 1 кв. 2027 г. |
| Материал стен | монолитный железобетон |
| Высота потолков | Уточнить |
Контакты:
Петрова Дарья
+7-920-034-
Подробное описание:
Балкон
есть
улица Октябрьской Революции на карте
Другие калькуляторы
Оценка своих возможностей
Оцените, квартиру какой стоимости вы можете купить
Калькулятор рефинансирования
Оцените, выгодно ли рефинансировать ипотеку
Калькулятор досрочного погашения
Посчитайте экономию при досрочном погашении кредита
Продажа 2-комнатной квартиры в новостройке на ул. Октябрьской Революции, 56
















