Сейчас кипит стройка, но совсем скоро — это будет уютный, камерный дом из качественных материалов, созданный для жизни, а не просто для проживания.
Проект реализует надежный застройщик ООО СЗ «Дом на Мурашкинской» — группа компаний «Дирекция по строительству» — что гарантирует точный срок сдачи квартир.
Еще немного и эти стены превратятся в место, где каждая деталь будет говорить об одном — вы по-настоящему дома!
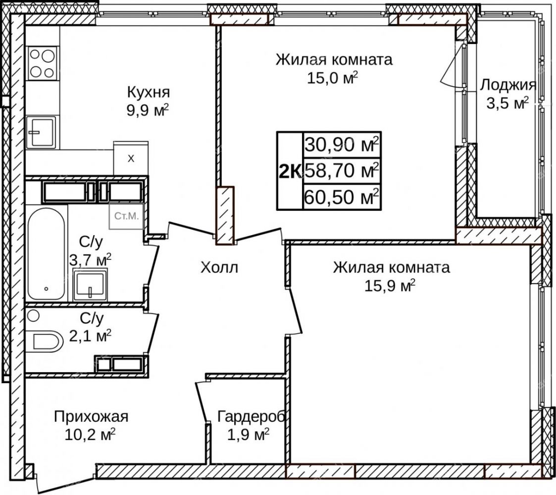
Продажа 2-комнатной квартиры в новостройке в ЖК Новое Ольгино, дом 1Приокский район, Нижний Новгород
7 986 000 руб.
| № | 2967683 |
|---|---|
| Район | Приокский |
| Адрес | ЖК Новое Ольгино, дом 1 |
| Комнат | 2 комнаты |
| Площадь | 60,5 / 30,9 / 9,9 |
| Этаж / этажность | 13 / 23 |
| Срок сдачи | 4 кв. 2027 г. |
| Материал стен | Уточнить |
| Высота потолков | Уточнить |
Контакты:
Городские кварталы «Новое Ольгино»
8-831-428-
Подробное описание:
Мусоропровод
нет
Дом в ЖК Новое Ольгино, дом 1
Другие калькуляторы
Оценка своих возможностей
Оцените, квартиру какой стоимости вы можете купить
Калькулятор рефинансирования
Оцените, выгодно ли рефинансировать ипотеку
Калькулятор досрочного погашения
Посчитайте экономию при досрочном погашении кредита
Продажа 2-комнатной квартиры в новостройке в ЖК Новое Ольгино, дом 1











