Шухово Новостройка
4 дома 8 - этажных в два этапа
Сейчас строят 2 дома
Основные моменты:
- аохитектура
- кирпич, который сохраняет тепло и шумоизоляция
- французские балконы
-безбарьерная среда (не используются ступеньки, сразу лифт)
- колясочное помещение
- своя котельная, в квартире сами жильцы регулируют отопление,)
- пречистовая отделка
- дизайнерские цены с МДФ отделкой внутри
- разводка отопительной системы по полу
- закрытый двор с системой видеонаблюдения
- детская площадка, Беговая дорожка, велосипедная дорожка
- электрические плиты
- горячее водоснабжение до квартиры, центральная канализация и водоснабжение, подоконники, отливы, откосы, наличники
- полотенце осушитель
- трубка домофона
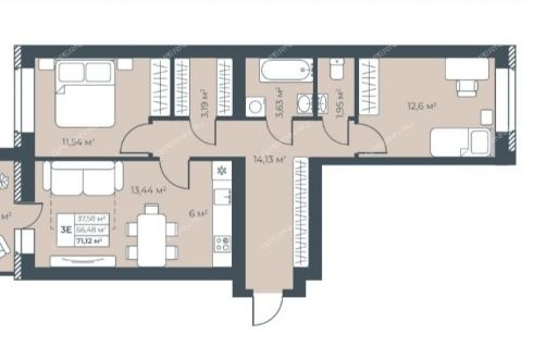
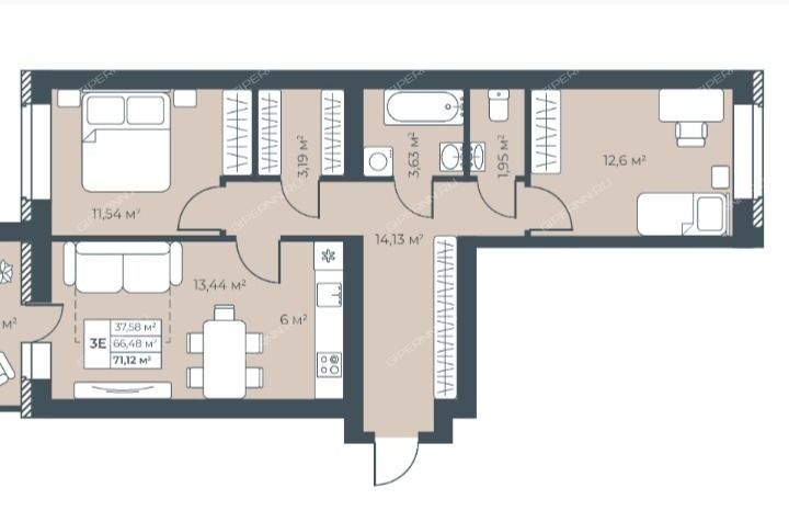
1 комнатная от 18- 44 кв. м
2 комнатные от 36 - 64 кв. м
3 комнатные от 61- 72 кв.м
Цены на квартиру каждый день меняются, звоните уточняйте
Номер объекта: #41/537514/18311
Продажа 3-комнатной квартиры в новостройке на инженера Шухова кв-л (город Выкса)городской округ Выкса, Нижегородская область
6 165 179 руб.
| № | 2935270 |
|---|---|
| Район | городской округ Выкса |
| Адрес | город Выкса, инженера Шухова кв-л |
| Комнат | 3 комнаты |
| Площадь | 71,12 / 36 / 10 |
| Этаж / этажность | 5 / 8 |
| Срок сдачи | 2 кв. 2027 г. |
Контакты:
Марина
+7-920-255-
Подробное описание:
Лоджия
есть
город Выкса на карте
Другие калькуляторы
Оценка своих возможностей
Оцените, квартиру какой стоимости вы можете купить
Калькулятор рефинансирования
Оцените, выгодно ли рефинансировать ипотеку
Калькулятор досрочного погашения
Посчитайте экономию при досрочном погашении кредита


















