Продаю просторную однокомнатную квартиру с ремонтом и мебелью. Отлично подойдет для одного человека или пары.
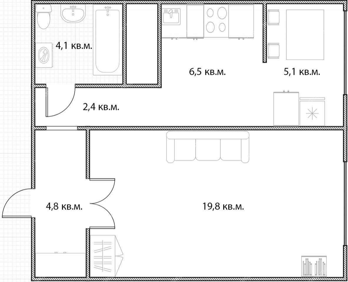
Светлая и уютная квартира с большой комнатой площадью почти 20 кв.м и изолированной кухней, разделённой на две функциональные зоны: удобную рабочую зону для готовки и полуизолированную обеденную зону для комфортных приёмов пищи.
Квартира находится на 14-м этаже, откуда открывается красивый вид на город, который, скорее всего, не перекроют новые дома. Так что сидя за столом на кухне можно любоваться городом с высоты)
Дом расположен в стороне от шумных дорог, а высота этажа обеспечивает тишину и спокойствие.
В квартире выполнен качественный косметический ремонт — можно сразу заехать и жить. Продаётся вместе со всей мебелью и техникой, представленной на фотографиях.
Дом оборудован одним подъездом, работает удобный пандус, есть два грузовых и один пассажирский лифт.
Квартира приобреталась на этапе котлована и с момента постройки находится в собственности одного владельца. Никто не прописан. Выписка из ЕГРН есть на руках. Квартира приобретена вне брака, не находится в залоге, не имеет притязаний со стороны третьих лиц.
Коммунальные платежи составляют на данный момент примерно 5,5 тысяч рублей с учетом счетчиков. Дома в ЖК обслуживаются собственной управляющей компанией.
Инфраструктура отличная: в радиусе 500 метров расположены 4 детских сада, 2 школы, училище олимпийского резерва, несколько кафе, кофейня, магазин SPAR и отделения банков.
В 10-15 минутах пешком — лесопарк Щёлоковский хутор.
До ближайшей автобусной остановки — около 450 метров (5-7 минут пешком).
Я собственник. При сделке напрямую без агентов готов сделать скидку) Риэлторам просьба беспокоить, если у вас уже есть конкретный покупатель)
Продажа 1-комнатной квартиры на б-р 60-летия Октября, д. 21 к2Советский район, Нижний Новгород
7 690 000 руб.
| № | 2962069 |
|---|---|
| Район | Советский |
| Адрес | б-р 60-летия Октября, д. 21 к2 |
| Комнат | 1 комната |
| Площадь | 42,7 / 19,8 / 11,6 |
| Этаж / этажность | 14 / 26 |
| Год постройки | 2017 |
| Материал стен | панель |
| Высота потолков | 2,8 м |
Контакты:
Владислав
+7-920-062-
Подробное описание:
Тип жилья
другой
Тип комнат
раздельные
Ремонт
типовой
Санузел
совмещенный
Лифт
пассажирский, грузовой
Мебель в комнатах
есть
Мебель на кухне
есть
Кухонная плита
электрическая
Горячая вода
центральное водоснабжение
Парковка
во дворе
Торг уместен
да
Ипотека
да
Дом 21 к2 на б-р 60-летия Октября
| Район | Советский район |
|---|---|
| Адрес | б-р 60-летия Октября, д. 21 к2 |
| Год постройки | 2017 |
| Этажность | 26 |
| Материал стен | панель |
| Высота потолков | 2,8 м (средняя) |
| Средняя цена за м2 | 215 412 руб. |
| Подъездов | 1 |
| Квартир | 150 |
Почта
Почта России479м
Почта России514м
Почта России624м
Магазины
Бристоль136м
Eurospar139м
Пятерочка258м
Бристоль258м
Сытная лавка258м
Школы
Школа № 187428м
Школа № 187444м
Школа № 49540м
Школа № 54727м
Школа № 24766м
Медицина
Детская городская поликлиника № 48539м
Детская городская поликлиника № 48539м
Поликлиника713м
Детская городская поликлиника № 48753м
Детские сады
Детский сад № 415223м
Детский сад № 466371м
Петушок551м
Кузнечик577м
Ростки582м
Другие калькуляторы
Оценка своих возможностей
Оцените, квартиру какой стоимости вы можете купить
Калькулятор рефинансирования
Оцените, выгодно ли рефинансировать ипотеку
Калькулятор досрочного погашения
Посчитайте экономию при досрочном погашении кредита
Продажа 1-комнатной квартиры на б-р 60-летия Октября, д. 21 к2
























