Код объекта: 1565599. Вашему вниманию, однокомнатная квартира европланировки с большой квадратурой в новом и развивающимся жилом комплекте "Савин Парк"!Почему стоит выбрать именно эту квартиру?✅ Расположение: деревня Утечино, улица Небесная, 1. Удобное расположение позволяет быстро добраться до центра города за 20 минут и до кстово за 18 минут. ✅ Дома «Савин парка» образуют кварталы: внутренние дворы — это уютные парки, а снаружи — пешеходный бульвар, спортивные площадки, детские сады и школа.Застройщик заранее продумал, где жителям будет удобно гулять, отдыхать, играть, заниматься спортом и болтать с соседями. ✅ Год постройки: 2024. Дом построен из качественных материалов, что гарантирует его долговечность и надёжность. Монолитный каркас, железобетонные перекрытия.Отопление: центральное.Площадь: общая — 38,2 кв. м, жилая — 12,2 кв. м, кухня-гостинная — 17,5 кв. м. Высота потолков — 2,62 м. Ремонт: white box. Квартира готова к чистовой отделке, что позволит вам воплотить свои дизайнерские идеи.В квартире совместный санузел и корзины для кондиционеров.✅ Огромным преимуществом являются увеличенные оконные проемы - 1790 мм. В квартире всегда будет много света.✅Квартира расположена на 6-м этаже 25-этажного дома. В доме есть пассажирский и грузовой лифты, а также наземная парковка. Окна квартиры выходят на улицу, что обеспечивает хорошее освещение и вид.✅ Прогулочные дорожки с освещением.✅ Дом сдан. Ключи получены.✅ В проекте также предусмотрено строительство еще двух детских садов и современной школы на 1400 учеников, а также поликлиники. На первых этажах будут расположены разнообразные магазины, кафе, салоны красоты, пункты выдачи, аптеки. Всю необходимую инфраструктуру Вы получите на территории комплекса.Не упустите свой шанс стать обладателем этой уютной квартиры! Позвоните нам прямо сейчас, чтобы узнать больше и договориться о просмотре!Мы гарантируем безопасную сделку и юридическую поддержку нашим клиентам. Поможем одобрить ипотеку с сниженной ставкой. Чистая продажа, подходит под любой вид расчёта!
Продажа 1-комнатной квартиры на ул. Небесная, д. 1 (дер. Утечино)Кстовский район, Нижегородская область
4 999 999 руб.
| № | 2946703 |
|---|---|
| Район | Кстовский |
| Адрес | деревня Утечино, улица Небесная, 1 |
| Комнат | 1 комната |
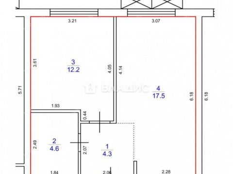
| Площадь | 38,6 / 12,2 / 17,5 |
| Этаж / этажность | 6 / 25 |
Контакты:
Зайрденов Дамир Раисович
+7-964-835-

Подробное описание:
Тип жилья
другой
Тип комнат
раздельные
Ремонт
требуется ремонт
Санузел
совмещенный
Лифт
пассажирский
Мусоропровод
нет
Наличие охраны
нет
Ипотека
да
Дом 1 на ул. Небесная
| Деревня | Утечино, Кстовский район |
|---|---|
| Адрес | ул. Небесная, д. 1 |
| Год постройки | 2024 |
| Этажность | 25 |
| Материал стен | панель |
| Высота потолков | 2,62 м (средняя) |
| Подъездов | 1 |
| Квартир | 314 |
Другие калькуляторы
Оценка своих возможностей
Оцените, квартиру какой стоимости вы можете купить
Калькулятор рефинансирования
Оцените, выгодно ли рефинансировать ипотеку
Калькулятор досрочного погашения
Посчитайте экономию при досрочном погашении кредита







