В продаже 1К - квартира с просторной кухней в развивающемся ЖК Савин парк!
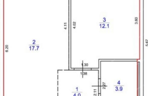
Общая площадь - 37,7 кв.м.
Просторная кухня - гостиная 17,7 кв.м.
Комната - 12,1 кв.м.
Качественный ремонт от застройщика, отделка под ключ, ванная комната в кафеле.
Двое взрослых собственника, чистая продажа, покупалась по ДДУ от застройщика.
Продажа 1-комнатной квартиры на ул. Небесная, д. 3 (дер. Утечино)Кстовский район, Нижегородская область
6 750 000 руб.
| № | 2968377 |
|---|---|
| Район | Кстовский |
| Адрес | деревня Утечино, улица Небесная, 3 |
| Комнат | 1 комната |
| Площадь | 37,7 / 12,1 / 17,7 |
| Этаж / этажность | 20 / 25 |
| Год постройки | 2025 |
| Материал стен | панель |
| Высота потолков | 2,62 м |
Контакты:
Костюнина Наталья Сергеевна
+7-910-058-
Подробное описание:
Тип жилья
другой
Дом 3 на ул. Небесная
| Деревня | Утечино, Кстовский район |
|---|---|
| Адрес | ул. Небесная, д. 3 |
| Год постройки | 2025 |
| Этажность | 25 |
| Материал стен | панель |
| Высота потолков | 2,62 м (средняя) |
| Подъездов | 1 |
| Квартир | 318 |
Другие калькуляторы
Оценка своих возможностей
Оцените, квартиру какой стоимости вы можете купить
Калькулятор рефинансирования
Оцените, выгодно ли рефинансировать ипотеку
Калькулятор досрочного погашения
Посчитайте экономию при досрочном погашении кредита
Продажа 1-комнатной квартиры на ул. Небесная, д. 3 (дер. Утечино)










