Предлагается к продаже
1- комн.квартира в ЖК Июль ул. Июльских Дней, 11
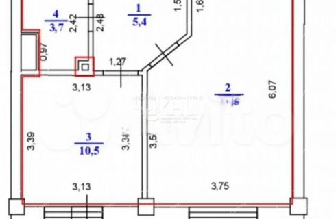
Общая площадь квартиры составляет - 41 метр.
Квартира - видовая, из окна открывается незабываемый вид из окна на город, квартира - светлая и очень теплая.
В квартире есть лоджия, она выходит из кухни.
Квартира без чистовой отделки, но
при этом в квартире уже установлены некоторые элементы, которые обеспечивают базовую готовность к дальнейшему ремонту.
Свободная продажа; собственность оформлена.
1 взрослый собственник , никто не прописан.
Квартира без долгов и обременений, что позволяет оперативный и быстрый выход на сделку.
Что включено в квартиру без отделки в ЖК Июль:
- идеально ровный пол,
- межкомнатные перегородки;
- стекление (включая лоджию);
- металлическая входная дверь с замками;
горизонтальная разводка отопления;
радиаторы отопления
счётчики электроэнергии в коридоре.
Что отсутствует:
чистовая отделка стен, потолка.
откосы и подоконники;
сантехническое оборудование.
Электричество проведено до щитка в подъезде.
Дополнительные характеристики квартир:
высота потолков 2,75 м;
ЖК Июль это 12-этажный монолитно-кирпичный дом комфорт-класса.
В комплексе предусмотрены:
детские и спортивные площадки, коммерческие помещения.
Рядом: расположен в Ленинском районе, с развитой инфраструктурой.
РЖД, в нескольких минутах ходьбы от станции метро Ленинская.
Продажа 1-комнатной квартиры на ул. Июльских Дней, д. 11Ленинский район, Нижний Новгород
9 500 000 руб.
| № | 2969851 |
|---|---|
| Район | Ленинский |
| Адрес | ул. Июльских Дней, д. 11 |
| Комнат | 1 комната |
| Площадь | 41 / 19 / 8 |
| Этаж / этажность | 11 / 12 |
| Год постройки | 2025 |
| Материал стен | блок+утеплитель |
| Высота потолков | 2,75 м |
Контакты:
Фоминская Мария Викторовна
+7-915-945-
Подробное описание:
Тип жилья
другой
Дом 11 на ул. Июльских Дней
| Район | Ленинский район |
|---|---|
| Адрес | ул. Июльских Дней, д. 11 |
| Год постройки | 2025 |
| Этажность | 12 |
| Материал стен | блок |
| Высота потолков | 2,75 м (средняя) |
| Средняя цена за м2 | 196 877 руб. |
| Подъездов | 4 |
| Квартир | 205 |
| Лифт | 4 пассажирских, 4 грузопассажирских |
| Парковка | подземная |
Почта
Почта России201м
Почта России987м
Магазины
Бристоль107м
Пятерочка137м
Бристоль201м
Ореховский201м
Продуктовый магазин242м
Школы
Школа № 101148м
Школа № 97150м
Школа № 101160м
Школа № 62870м
Медицина
Поликлиника № 10647м
Поликлиника № 1964м
Детские сады
Детский сад № 11313м
Другие калькуляторы
Оценка своих возможностей
Оцените, квартиру какой стоимости вы можете купить
Калькулятор рефинансирования
Оцените, выгодно ли рефинансировать ипотеку
Калькулятор досрочного погашения
Посчитайте экономию при досрочном погашении кредита























