Продается видовая просторная 1-комнатная квартира на 19 этаже в ЖК бизнес-класса Мегаполис.
Панорамное остекление позволит наслаждаться красотой городских просторов и обеспечит много естественного света и удовольствие от проживания.
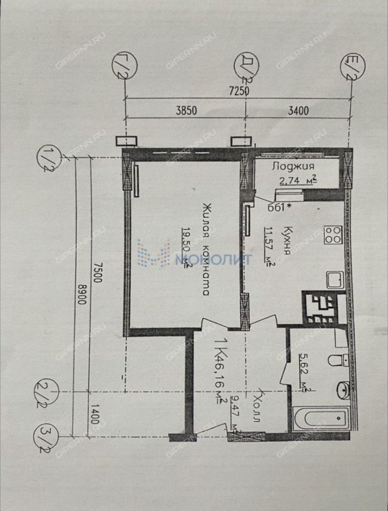
Общая площадь - 49 кв.м с учетом лоджии.
В квартире установлен кондиционер и выполнен современный ремонт с отделкой из качественных материалов, на полу - водостойкий ламинат 33 класса, в санузле - керамгранит. Вся сантехника - итальянской фирмы Roca, стиральная машина Bosch.
Квартира имеет функциональную планировку.
- Уютная кухня-гостиная 14 кв.м. с панорамными окнами .
Установлен качественный кухонный гарнитур с каменной столешницей и встроенной техникой от надежных производителей (индукционная плита и холодильник Siemens, посудомоечная машина Bosch, духовой шкаф с уникальной системой самоочистки и микроволновая печь Electrolux, вытяжка Korting).
- Просторная комната площадью 20 кв.м.
Прихожая - 9.5 кв.м., санузел - 5.6 кв.м.
Шикарное расположение дома : с одной стороны природа - Волжский откос и набережная, с другой стороны - вся необходимая инфраструктура,
- 1 минута до остановки Деловая и ТРЦ Фантастика,
- в шаговой доступности гипермаркет Лента, , салоны красоты, детские сады и школы.
Всего 10 минут до Кремля.
ЖК бизнес-класса с большой благоустроенной территорией, с детской и спортивной площадкой (футбол, баскетбол, турники).
- закрытый огороженный двор без машин
- видеонаблюдение по всему периметру дома
- круглосуточная охрана
- ландшафтный дизайн
- зеленые зоны с дорожками и лавочками
- отдельная площадка для выгула собак
- частный детский сад на территории ЖК
- презентабельный холл с дизайнерской отделкой
- четыре высокоскоростных лифта
- 3х уровневый подземный паркинг, куда можно спуститься на лифте из жилой части.
Квартира полностью готова к комфортному проживанию или cдачe в аренду. Вся мебель и техника остается для вас.
Рядом располагаются улицы: Деловая, Бринского, Казанское шоссе, Нижегородский район.
Агентство недвижимости «Монолит» профессионально помогает с оформлением ипотеки: сбор и подача всех необходимых документов, оперативное рассмотрение заявки, помощь в получении сниженной процентной ставки, осуществляем юридическое сопровождение сделки. Оказываем весь комплекс услуг по покупке квартиры в режиме одного окна (страховка, оценка, выездная регистрация, военная ипотека, маткапитал, подбор новостроек).
Номер объекта: #41/1641969/11523
Продажа 1-комнатной квартиры на ул. Родионова, д. 192 к5Нижегородский район, Нижний Новгород
13 790 000 руб.
| № | 2960595 |
|---|---|
| Район | Нижегородский |
| Адрес | ул. Родионова, д. 192 к5 |
| Комнат | 1 комната |
| Площадь | 49 / 20 / 12 |
| Этаж / этажность | 19 / 22 |
| Год постройки | 2014 |
| Материал стен | блок+утеплитель |
| Высота потолков | 2,7 м |
Контакты:
Ганина Евгения
+7-920-034-
Подробное описание:
Тип жилья
другой
Санузел
совмещенный
Балкон
есть
Дом 192 к5 на ул. Родионова
| Район | Нижегородский район |
|---|---|
| Адрес | ул. Родионова, д. 192 к5 |
| Год постройки | 2014 |
| Этажность | 22 |
| Материал стен | блок |
| Высота потолков | 2,7 м (средняя) |
| Средняя цена за м2 | 203 586 руб. |
| Подъездов | 1 |
| Квартир | 160 |
| Школа по прописке | Средняя школа №102 с углубленным изучением отдельных предметов |
| ДУК и ТСЖ | Мегаполис |
Магазины
Бристоль321м
У Палыча321м
Спортмастер381м
DNS381м
Эльдорадо381м
Школы
Средняя школа № 102 с углубленным изучением отдельных предметов656м
Медицина
Поликлиника351м
Нижегородский областной клинический противотуберкулезный диспансер574м
Нижегородский областной клинический противотуберкулезный диспансер574м
Нижегородский областной клинический онкологический диспансер775м
Детские сады
Оленёнок722м
Детский сад № 5785м
Другие калькуляторы
Оценка своих возможностей
Оцените, квартиру какой стоимости вы можете купить
Калькулятор рефинансирования
Оцените, выгодно ли рефинансировать ипотеку
Калькулятор досрочного погашения
Посчитайте экономию при досрочном погашении кредита
Продажа 1-комнатной квартиры на ул. Родионова, д. 192 к5





































