Продается квартира на пл. Сенной в доме бизнес-класса ЖК "Дельвиг" с паркингом!
Продается квартира в черновой отделке свободной планировки, общей площадью 61,8 кв.м, на 9 этаже 17-тиэатжного дома по адресу: ул. Большая Печёрская, д. 89. 
ЖК "Дельвиг" - дом бизнес-класса, построенный в 2025 году в стиле "ар-деко", с закрытой безопасной территорией, озелененным двором, детской и спортивной площадкой. В доме имеется двухуровневая подземная автостоянка, на которую можно спустить на лифте из своего подъезда, а также попасть со двора. На территории ведется видеонаблюдение. 
✅ Пять главных преимуществ квартиры:
🔹  свободная планировка - возможность спроектировать уютную двухкомнатную квартиру или роскошную однокомнатную квартиру евроформата с кухней-гостиной, достойная высота потолков - 2,9 кв.м;
🔹  отапливаемая лоджия - возможность демонтировать перегородку и увеличить пространство комнаты или сделать рабочую зону;
🔹  раздельный санузел - в меньшем санузел можно расположить туалет или постирочную, или оборудовать гардероб;
🔹  подземный паркинг - возможность приобрести вместе с квартирой удобное место на подземном паркинге; 
🔹  расположение - 5 мин пешком - до пл. Сенная, 5 мин  на авто - до пл.Минина и Пожарского, в 2026 г - открытие станции метро "Сенная", в перспективе - солидное соседство - строительство на соседней площадке Правительственного квартала. 
Квартира прекрасно подойдет как для проживания одного человека, так и для семейной пары с ребенком, а также будет отличным вариантом для инвестиций с целью сдачи в аренду.
Общая площадь квартиры с лоджией - 61,8 кв.м. Вид из окон открывается на пл.Сенную и захватывает вид на Волгу. 
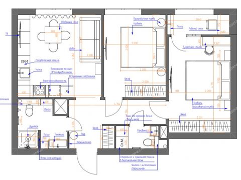
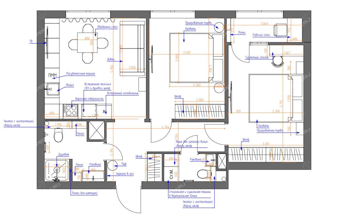
Если Вам необходимо спроектировать две изолированные комнаты, то планировка может быть следующей: кухня-гостиная - 16,4 кв.м, комната - 12,6 кв.м, комната - 14,2 кв.м с отапливаемой лоджией - 3 кв.м, два санузла - 5 и 2,3 кв.м, прихожая - 8,3 кв.м. С планировкой Вы можете ознакомиться среди фотографий объявления. Бонусом Вы сможете получить в подарок готовый дизайн-проект двухкомнатной квартиры. 
ЖК "Дельвиг" располагается в престижном районе с развитой инфраструктурой. 5 мин пешком - до пл. Сенная, 10 мин - до Верхне-Волжской набережной и основных высших учебных заведений города. Путь до пл. Минина и Кремля займет 10 мин на автомобиле. Ближайшие школы: Гимназия 13, школы 30, 35. Ближайшие торговые центры: ТЦ "Счастье", LP Fashion Gallery, ТЦ "Ганза", ТЦ "Фантастика". Спортивные клубы: Gold's Fitness, Физкульт.
Вместе с квартирой Вы можете приобрести дополнительно место на подземном паркинге за отдельную плату - 3 000 000 руб. До парковки Вы можете спуститься на лифте из своего подъезда. Место расположено очень удобно - прямо напротив лифта. 
Один взрослый собственник, прямая продажа полная цена в договоре. Звоните, чтобы не упустить это выгодное предложение!
        Продажа 2-комнатной квартиры на ул. Большая Печёрская, д. 89Нижегородский район, Нижний Новгород
                        16 000 000 руб.                                            
                    | № | 2960011 | 
|---|---|
| Район | Нижегородский | 
| Адрес | ул. Большая Печёрская, д. 89 | 
| Комнат | 2 комнаты | 
| Площадь | 61,8 / 26,8 / 16,4 | 
| Этаж / этажность | 9 / 17 | 
| Год постройки | 2024 | 
| Материал стен | кирпич | 
| Высота потолков | 3 м | 
Контакты:
                
            Надежда        
                +7-930-288-
Подробное описание:
                        Тип жилья                    
                    
                        другой                    
                
                        Тип комнат                    
                    
                        раздельные                    
                
                        Ремонт                    
                    
                        требуется ремонт                    
                
                        Санузел                    
                    
                        раздельный                    
                
                        Лоджия                    
                    
                        есть                    
                
                        Лифт                    
                    
                        пассажирский, грузовой                    
                
                        Кухонная плита                    
                    
                        электрическая                    
                
                        Горячая вода                    
                    
                        центральное водоснабжение                    
                
                        Ипотека                    
                    
                        да                    
                 
            Дом 89 на ул. Большая Печёрская
| Район | Нижегородский район | 
|---|---|
| Адрес | ул. Большая Печёрская, д. 89 | 
| Год постройки | 2024 | 
| Этажность | 17 | 
| Материал стен | кирпич | 
| Высота потолков | 3 м (средняя) | 
| Средняя цена за м2 | 247 216 руб. | 
| Подъездов | 5 | 
| Квартир | 343 | 
| Лифт | 9 пассажирских, 5 грузовых | 
| Парковка | наземная, подземная | 
| Школа по прописке | Школа №30 им. Л.Л. Антоновой | 
Почта
Почта России440м
Почта России680м
Магазины
Пятерочка350м
Магнит Косметик350м
Акконд388м
Малинка504м
Spar Express531м
Школы
Гимназия № 13424м
Школа № 30 им. Л.Л. Антоновой544м
Средняя  школа № 186717м
Школа № 35846м
Медицина
Поликлиника № 7166м
Поликлиника № 7166м
Детская городская поликлиника № 22629м
Детские сады
Оленёнок229м
Детский сад № 42691м
Детский сад № 29779м
Детский сад № 445847м
Детский сад № 120851м
        Другие калькуляторы
    
    
                Оценка своих возможностей                
        Оцените, квартиру какой стоимости вы можете купить
            
                Калькулятор рефинансирования                
        Оцените, выгодно ли рефинансировать ипотеку
            
                Калькулятор досрочного погашения                
        Посчитайте экономию при досрочном погашении кредита
            Продажа 2-комнатной квартиры на ул. Большая Печёрская, д. 89
                             
             
             
             
             
             
             
             
             
             
             
             
             
             
             
             
             
             
             
             
             
             
             
             
             
             
             
             
             
             
             
             
             
             
             
        









































