Продаю эксклюзивную квартиру в новом доме (сдан в 2023г). Квартира с собственной террасой (эксплуатируемая кровля), на которой
можно разместить зону отдыха, либо зимний сад. Очень интересное предложение для тех, кто ценит оригинальность и современный подход
к планированию жилья. Имеется готовый проект этой квартиры.
Развитая инфраструктура, отличная транспортная развязка, магазины, ПВЗ, школы, детсады, медицинские учреждения и т.д.
Рядом ТРЦ «Фантастика», гипермаркет «Лента» и пр.
Закрытая дворовая территория с круглосуточным видеонаблюдением, концепция "двор без машин", охрана, подземная и наземная парковки,
детская и спортивная площадки.
Есть возможность приобрести ситибоксы на цокольном этаже дома.
Квартира без отделки, выполнена стяжка пола, электрика введена в квартиру до счетчика, газовая плита установлена, вид во двор.
Ипотека льготная ( семейная, IT ) возможна.
Чистая продажа, вся сумма в договоре.
Просмотр в дневное время.
Продажа 2-комнатной квартиры на ул. Деловая, д. 22Нижегородский район, Нижний Новгород
11 752 069 руб.
| № | 2960042 |
|---|---|
| Район | Нижегородский |
| Адрес | ул. Деловая, д. 22 |
| Комнат | 2 комнаты |
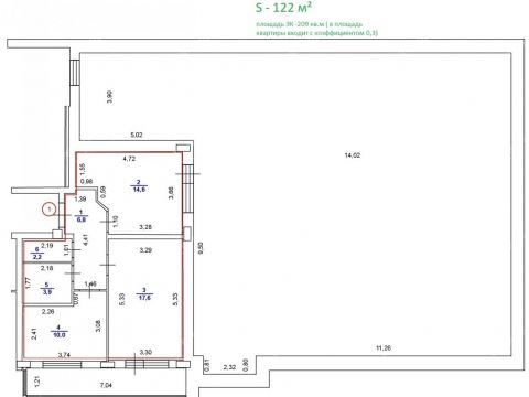
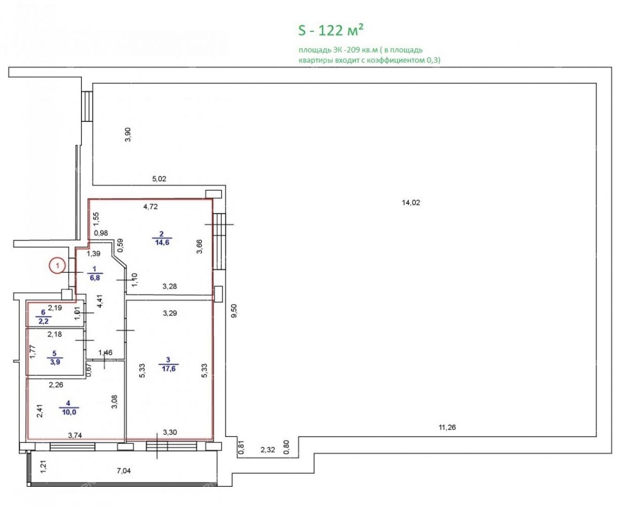
| Площадь | 122 / 32,2 / 10 |
| Этаж / этажность | 3 / 10 |
| Год постройки | 2023 |
| Материал стен | блок+утеплитель |
| Высота потолков | 2,7 м |
Контакты:
Алексей
+7-987-394-
Подробное описание:
Тип жилья
другой
Тип комнат
раздельные
Санузел
раздельный
Балкон
есть
Лоджия
2
Лифт
грузовой
Кухонная плита
газовая
Горячая вода
центральное водоснабжение
Парковка
подземная
Торг уместен
да
Ипотека
да
Дом 22 на ул. Деловая
| Район | Нижегородский район |
|---|---|
| Адрес | ул. Деловая, д. 22 |
| Год постройки | 2023 |
| Этажность | 10 |
| Материал стен | блок |
| Высота потолков | 2,7 м (средняя) |
| Средняя цена за м2 | 190 432 руб. |
| Подъездов | 7 |
| Квартир | 370 |
| Лифт | 7 |
| Парковка | наземная, подземная |
| Школа по прописке | Средняя школа №102 с углубленным изучением отдельных предметов |
Почта
Почта России895м
Магазины
Спортмастер213м
DNS213м
Эльдорадо213м
Ашан213м
Кантата213м
Школы
Средняя школа № 102 с углубленным изучением отдельных предметов292м
Медицина
Нижегородский областной клинический онкологический диспансер409м
Поликлиника580м
Нижегородский областной клинический противотуберкулезный диспансер662м
Нижегородский областной клинический противотуберкулезный диспансер662м
Детские сады
Оленёнок467м
Детский сад № 5508м
Детский сад № 33844м
Детский сад № 447848м
Другие калькуляторы
Оценка своих возможностей
Оцените, квартиру какой стоимости вы можете купить
Калькулятор рефинансирования
Оцените, выгодно ли рефинансировать ипотеку
Калькулятор досрочного погашения
Посчитайте экономию при досрочном погашении кредита


























