Продается уникальная двухкомнатная квартира в премиальном ЖК Атлант Сити!
Эта великолепная квартира сочетает в себе стиль, комфорт и функциональность. Просторная кухня-гостиная с панорамными окнами открывает потрясающий вид на реку и город, создавая атмосферу уюта и спокойствия.
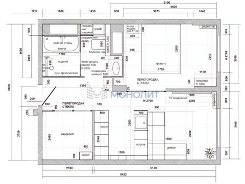
Интерьер.
Квартира выполнена по уникальному дизайн-проекту с перламутровой итальянской штукатуркой Spiver на всех стенах
имитирующая большой камень. Пол выложен широкоформатным гранитом, качественные деревянные стеклопакеты обеспечивают комфорт, энергоэффективность и абсолютную шумоизоляцию. Каждая деталь продумана до мелочей: зоны разделяются раздвижными парящими из потолка подвесными дверями, а теневые плинтусы добавляют элегантности.Большая гардеробная комната обеспечит порядок и удобство для хранения вещей.
Уютная ванная комната с теплыми полами и теплой стеной с душем и ванной . Ниша для хранения вещей и стиральной машины и бойлера скрытой за раздвижными дверями. Ванная разделена уникальной раздвижной дверью, представляющей собой двухстороннее затемненное зеркало, что позволяет использовать его как изнутри, так и снаружи.
Вся мебель выполнена на заказ и сделана в уникальном стиле, помимо этого каждая ниша, мебель и деталь несёт свой функционал, предназначенный для удобства
Кухня:
Современный кухонный гарнитур с встроенной техникой, включая холодильник и морозильную камеру Smeg отдельные, микроволновую духовку и измельчитель MaiKiri, — идеальное решение для комфортной жизни и кулинарных экспериментов. Система фильтрации воды гарантирует высокое качество питьевой воды.
Комфорт и безопасность:
На первом этаже расположена уютная зона для отдыха с детскими площадками, готовящейся гриль-зоной и озеленением, где вы сможете комфортно отдыхать под открытым небом. Всё это пространство изолировано и принадлежит только жителям данного ЖК. Попасть в дом можно только по электронному ключу, а также вызвать лифт и добраться до своего этажа. На первом этаже находится консьерж, который проведет ваших гостей до зоны лифтов и подскажет, как добраться до вас. Большая зона парковки ограждена, что обеспечивает дополнительную безопасность.
Не упустите возможность стать владельцем этой уникальной квартиры! Звоните для записи на просмотр!
Агентство недвижимости «Монолит» профессионально помогает с оформлением ипотеки: сбор и подача всех необходимых документов, оперативное рассмотрение заявки, помощь в получении сниженной процентной ставки, осуществляем юридическое сопровождение сделки. Оказываем весь комплекс услуг по покупке квартиры в режиме одного окна (страховка, оценка, выездная регистрация, военная ипотека, маткапитал, подбор новостроек).
Номер объекта: #41/1629713/11523
Продажа 2-комнатной квартиры на ул. Владимира Высоцкого, д. 1Нижегородский район, Нижний Новгород
21 500 000 руб.
| № | 2951813 |
|---|---|
| Район | Нижегородский |
| Адрес | ул. Владимира Высоцкого, д. 1 |
| Комнат | 2 комнаты |
| Площадь | 52 / 30 / 15 |
| Этаж / этажность | 17 / 22 |
| Год постройки | 2021 |
| Материал стен | кирпич |
| Высота потолков | Уточнить |
Контакты:
Спутницкий Дмитрий
+7-920-034-
Подробное описание:
Тип жилья
другой
Санузел
совмещенный
Балкон
есть
Дом 1 на ул. Владимира Высоцкого
| Район | Нижегородский район |
|---|---|
| Адрес | ул. Владимира Высоцкого, д. 1 |
| Год постройки | 2021 |
| Этажность | 22 |
| Материал стен | кирпич |
| Средняя цена за м2 | 288 765 руб. |
| Подъездов | 2 |
| Квартир | 303 |
Магазины
Нектар233м
Спортмастер328м
DNS328м
Эльдорадо328м
Ашан328м
Школы
Средняя школа № 102 с углубленным изучением отдельных предметов832м
Медицина
Поликлиника252м
Нижегородский областной клинический онкологический диспансер547м
Другие калькуляторы
Оценка своих возможностей
Оцените, квартиру какой стоимости вы можете купить
Калькулятор рефинансирования
Оцените, выгодно ли рефинансировать ипотеку
Калькулятор досрочного погашения
Посчитайте экономию при досрочном погашении кредита
Продажа 2-комнатной квартиры на ул. Владимира Высоцкого, д. 1





































