В продаже просторная 2-комнатная квартира в новом доме 2025 года постройки (ЖК Новый город), по адресу: г. Нижний Новгород, ул. Вязниковская, д. 43.
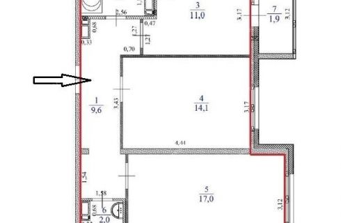
Квартира без отделки, с большими изолированными комнатами, двумя санузлами (совмещенный санузел и туалет), с лоджией из кухни. Кухня большая, квадратная, 11 кв.м. Планировка очень удачная. Из окон прекрасный вид.
Подъезд сквозной, выходы с двух сторон.
Прямая продажа. Ключи - после полного расчета.
Продажа 2-комнатной квартиры на ул. Вязниковская, д. 43Канавинский район, Нижний Новгород
7 000 000 руб.
| № | 2962236 |
|---|---|
| Район | Канавинский |
| Адрес | ул. Вязниковская, д. 43 |
| Комнат | 2 комнаты |
| Площадь | 58 / 31,1 / 11 |
| Этаж / этажность | 8 / 9 |
| Год постройки | 2025 |
| Материал стен | панель |
| Высота потолков | 2,7 м |
Контакты:
Симагина Анна Геннадьевна
+7-920-256-
Подробное описание:
Тип жилья
другой
Дом 43 на ул. Вязниковская
Почта
Почта России591м
Магазины
Пятерочка177м
Каравай219м
Пятерочка219м
Хорошее дело219м
Сытная лавка219м
Школы
Школа № 181464м
Медицина
Поликлиника № 1724м
Другие калькуляторы
Оценка своих возможностей
Оцените, квартиру какой стоимости вы можете купить
Калькулятор рефинансирования
Оцените, выгодно ли рефинансировать ипотеку
Калькулятор досрочного погашения
Посчитайте экономию при досрочном погашении кредита
Продажа 2-комнатной квартиры на ул. Вязниковская, д. 43






















