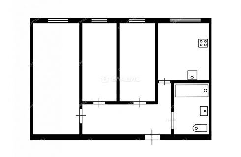
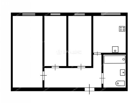
Код объекта: 1606572. Уникальное предложение в городском округе Нижний Новгород: продаётся уютная трёхкомнатная квартира в деревне Ржавка по адресу 251Б. Просторная квартира площадью 59 кв. м с изолированными комнатами и косметическим ремонтом идеально подойдёт для семей, ищущих комфорт и уединение.Кирпичная кладка стен обеспечивает хорошую тепло- и звукоизоляцию. Высота потолков 3 метра создаёт ощущение простора и свободы. Квартира расположена на первом этаже одноэтажного дома, что удобно для семей с детьми и пожилых людей.Благодаря своей котельной в квартире всегда будет тепло, а окна, выходящие на улицу, позволяют наслаждаться видом и свежим воздухом.Вместе с квартирой новому хозяину достается плодородный участок, на котором можно собирать богатый урожай или устроить зону отдыха (не оформлен). Любителям садоводства для хранения заготовок будет большим плюсом огромный подвал, площадью, равной квартире.Маленький размер коммунальных платежей, всего 2-3 тысячи рублей в месяц, позволит значительно сэкономить семейный бюджет.Не упустите шанс стать владельцем этой уютной квартиры! Позвоните нам прямо сейчас, чтобы узнать больше и записаться на просмотр.Мы гарантируем безопасную сделку и юридическую поддержку нашим Клиентам. Поможем одобрить ипотеку с сниженной ставкой.
Продажа 3-комнатной квартиры на 251Б (дер. Ржавка)Кстовский район, Нижегородская область
5 300 000 руб.
№ | 2957712 |
---|---|
Район | Кстовский |
Адрес | деревня Ржавка, 251Б |
Комнат | 3 комнаты |
Площадь | 59 / 35,8 / 8,5 |
Этаж / этажность | 1 / 1 |
Год постройки | 1994 |
Материал стен | кирпич |
Высота потолков | 3 м |
Контакты:
Подробное описание:
Тип комнат
раздельные
Ремонт
типовой
Санузел
совмещенный
Мусоропровод
нет
Наличие охраны
нет
Ипотека
да
деревня Ржавка на карте
Другие калькуляторы
Оценка своих возможностей
Оцените, квартиру какой стоимости вы можете купить
Калькулятор рефинансирования
Оцените, выгодно ли рефинансировать ипотеку
Калькулятор досрочного погашения
Посчитайте экономию при досрочном погашении кредита
Продажа 3-комнатной квартиры на 251Б (дер. Ржавка)
























