Арт. 130094605
Продается 3х комнатная квартира находящаяся по адресу г.Кстово, улица Полевая.д.8
ПАРАМЕТРЫ КВАРТИРЫ:
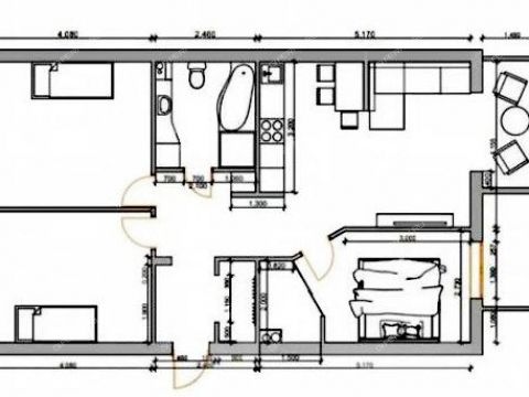
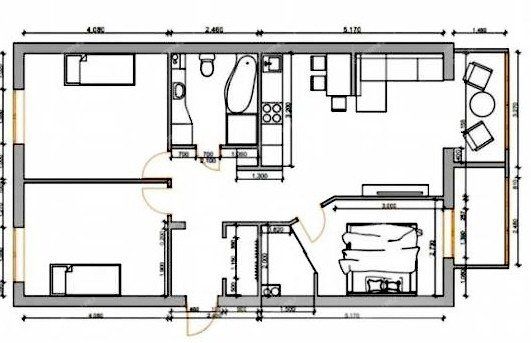
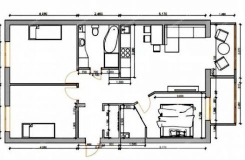
- общая площадь 88 м2
- жилая площадь 42 м2
- площадь кухни 25 м2
ОПИСАНИЕ КВАРТИРЫ:
Квартира расположена на 9-ом этаже 10-и этажного кирпичного жилого дома.
Квартира светлая, просторная, с удобной планировкой, комнаты изолированные, большая кухня- гостиная, санузел совмещён.
Отличный вариант для комфортной жизни!
ИНФРАСТРУКТУРА:
- Школа
- Детский сад
- Торговый центр
- Магазины, аптеки и др.;
- Автобусная остановка.
МОЖНО КУПИТЬ:
- Наличные
- Ипотека
- Материнский капитал
- Военная ипотека
- Иные жилищные сертификаты
АГЕНСТВО ПРЕДОСТАВЛЯЕТ СЛЕДУЮЩИЕ УСЛУГИ:
- Помощь в оформлении ипотеки по сниженной % ставке
- Юридические консультации
- Льготное страхование всех видов недвижимости, транспорта, жизни
Брокерские услуги
БОНУСЫ
- Подарочная карта на скидку 50 000 в магазине HoFF.
- Подарочный сертификат от агентства на 5000 рублей.
Продажа 3-комнатной квартиры на ул. Полевая, д. 8 (г. Кстово)Кстовский район, Нижегородская область
12 620 000 руб.
| № | 2967502 |
|---|---|
| Район | Кстовский |
| Адрес | город Кстово, Полевая улица, 8 |
| Комнат | 3 комнаты |
| Площадь | 88 / 49 / 25 |
| Этаж / этажность | 9 / 10 |
| Год постройки | 2013 |
| Материал стен | монолитный железобетон |
| Высота потолков | 2,75 м |
Контакты:
Елена Девятьярова
+7-930-714-
Подробное описание:
Тип жилья
другой
Ремонт
дизайнерский проект
Санузел
совмещенный
Лоджия
есть
Лифт
пассажирский
Мусоропровод
нет
Наличие охраны
нет
Ипотека
да
Дом 8 на ул. Полевая
| Город | Кстово, Кстовский район |
|---|---|
| Адрес | ул. Полевая, д. 8 |
| Год постройки | 2013 |
| Этажность | 10 |
| Материал стен | монолитный железобетон |
| Высота потолков | 2,75 м (средняя) |
| Подъездов | 2 |
| Квартир | 79 |
Почта
Почта России594м
Почта России822м
Почта России878м
Почта России913м
Почта России990м
Магазины
Магнит у дома313м
Магнит388м
Пятерочка446м
Бристоль448м
Звениговский461м
Другие калькуляторы
Оценка своих возможностей
Оцените, квартиру какой стоимости вы можете купить
Калькулятор рефинансирования
Оцените, выгодно ли рефинансировать ипотеку
Калькулятор досрочного погашения
Посчитайте экономию при досрочном погашении кредита
Продажа 3-комнатной квартиры на ул. Полевая, д. 8 (г. Кстово)























