Эксклюзивное предложение 3-х комнатная квартира 111,2 м² с ремонтом White Box в престижном ЖК «Покровский» комфорт-класса
· Класс: Комфорт
· Отделка: White Box (готова к чистовой)
· Площади:
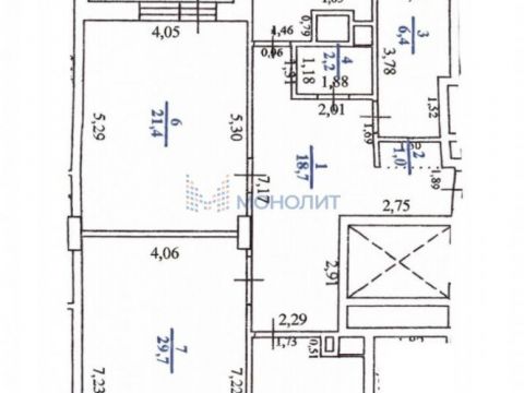
· Общая: 111,2 м²
· Жилая: 65,83 м²
· Кухня: 12,6 м²
· Санузлы: раздельные (6,4 м² + 2,2 м²)
· Лоджия: 4,1 м²
· Планировка: Квартира на две стороны, светлая, с раздельными санузлами.
· Локация: Центр города, пешеходная зона. Рядом улицы Белинского, Костина, Максима Горького, площадь Лядова. Вся инфраструктура в шаговой доступности.
· Дополнительно: Возможность покупки парковочного места в данном доме.
Свяжитесь для просмотра и более точной информации по объекту!
Агентство недвижимости «Монолит» профессионально помогает с оформлением ипотеки: сбор и подача всех необходимых документов, оперативное рассмотрение заявки, помощь в получении сниженной процентной ставки, осуществляем юридическое сопровождение сделки. Оказываем весь комплекс услуг по покупке квартиры в режиме одного окна (страховка, оценка, выездная регистрация, военная ипотека, маткапитал, подбор новостроек).
Номер объекта: #41/1709713/11523
Продажа 3-комнатной квартиры на ул. Большая Покровская, д. 78Нижегородский район, Нижний Новгород
26 000 000 руб.
| № | 2964594 |
|---|---|
| Район | Нижегородский |
| Адрес | ул. Большая Покровская, д. 78 |
| Комнат | 3 комнаты |
| Площадь | 111,2 / 66,2 / 12,6 |
| Этаж / этажность | 3 / 9 |
| Год постройки | 2022 |
| Материал стен | блок+утеплитель |
| Высота потолков | 2,75 м |
Контакты:
Парфенов Роман
+7-920-034-
Подробное описание:
Тип жилья
другой
Лоджия
есть
Дом 78 на ул. Большая Покровская
| Район | Нижегородский район |
|---|---|
| Адрес | ул. Большая Покровская, д. 78 |
| Год постройки | 2022 |
| Этажность | 9 |
| Материал стен | блок |
| Высота потолков | 2,75 м (средняя) |
| Средняя цена за м2 | 232 124 руб. |
| Подъездов | 4 |
| Квартир | 125 |
| Лифт | 2, 2 |
| Парковка | подземная |
| Школа по прописке | Школа №3 |
| ДУК и ТСЖ | ООО "ДУК ПОКРОВСКАЯ" |
Почта
Почта России676м
Почта России680м
Магазины
Бристоль экспресс170м
Круассан Дорэ176м
Акконд187м
Перекрёсток211м
М.Видео211м
Школы
Школа № 3503м
Лицей № 28526м
Гимназия № 25 им. А.С. Пушкина582м
Лицей № 28607м
Медицина
Поликлиника № 5549м
Детская городская поликлиника № 39 г. Нижнего Новгорода733м
Отделение общей врачебной практики756м
Нижегородский областной наркологический диспансер847м
Поликлиника856м
Детские сады
Детский сад № 161251м
Детский сад № 248334м
Детский сад № 139363м
Детский сад № 183477м
Детский сад № 19665м
Другие калькуляторы
Оценка своих возможностей
Оцените, квартиру какой стоимости вы можете купить
Калькулятор рефинансирования
Оцените, выгодно ли рефинансировать ипотеку
Калькулятор досрочного погашения
Посчитайте экономию при досрочном погашении кредита
Продажа 3-комнатной квартиры на ул. Большая Покровская, д. 78





































